New Homes » Kansai » Osaka prefecture » Takatsuki
 
| | Osaka Takatsuki 大阪府高槻市 |
| Hankyu Kyoto Line "Takatsuki" 12 minutes Shimotanabe park walk 12 minutes by bus 阪急京都線「高槻市」バス12分下田部団地歩12分 |
| ◆ All four sections of the subdivision! ◆ Corner lot! ◆ Good per sun! ◆ Land with about 30.25 square meters! ◆ 4LDK! ◆ Free design! Takatsuki ・ In residence looking for Kinki housing of the community in Shimamoto! ◆全4区画の分譲地!◆角地!◆陽当たり良好!◆土地約30.25坪付!◆4LDK!◆自由設計!高槻・島本での住まい探しは地域密着のキンキハウジングで! |
| ◆ Recommended point ◆ All four sections of the subdivision! Hankyu a 12-minute bus stop walk 12 minutes by bus from Takatsuki-shi Station! Per day per corner lot ・ Ventilation is good! Land about 30.25 square meters! 4LDK! Free design! Super within a 10-minute walk ・ hospital ・ Elementary and junior high schools ・ Nitori ・ There is Yamada Denki! This is useful life! ◆ Property Looking For, Please leave detailed Kinki housing to local information and peripheral market ◆ We support looking for your ideal abode with full force. If you wish the local tour please feel free to contact! It is open from 8 am ◆おすすめポイント◆全4区画の分譲地!阪急高槻市駅よりバス12分バス停徒歩12分!角地につき日当たり・風通し良好です!土地約30.25坪!4LDK!自由設計!徒歩10分圏内にスーパー・病院・小中学校・ニトリ・ヤマダ電機がございます!生活便利です!◆物件探しは、地域情報や周辺相場に詳しいキンキハウジングにお任せ下さい◆お客様の理想の住まい探しを全力でサポート致します。現地見学をご希望でしたらお気軽にご連絡下さい!朝8時から営業しています |
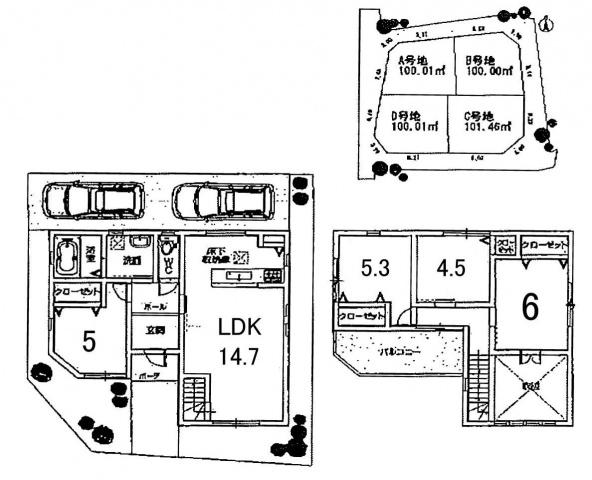
Features pickup 特徴ピックアップ | | 2 along the line more accessible / Super close / Yang per good / Flat to the station / Or more before road 6m / Corner lot / City gas / Building plan example there 2沿線以上利用可 /スーパーが近い /陽当り良好 /駅まで平坦 /前道6m以上 /角地 /都市ガス /建物プラン例有り | Price 価格 | | 18.6 million yen 1860万円 | Building coverage, floor area ratio 建ぺい率・容積率 | | 60% ・ 200% 60%・200% | Sales compartment 販売区画数 | | 1 compartment 1区画 | Land area 土地面積 | | 100.01 sq m (30.25 tsubo) (Registration) 100.01m2(30.25坪)(登記) | Driveway burden-road 私道負担・道路 | | Nothing, North 6.7m width, West 6.7m width 無、北6.7m幅、西6.7m幅 | Land situation 土地状況 | | Vacant lot 更地 | Address 住所 | | Osaka Takatsuki Kitaohi cho 大阪府高槻市北大樋町 | Traffic 交通 | | Hankyu Kyoto Line "Takatsuki" 12 minutes Shimotanabe park walk 12 minutes by bus JR Tokaido Line "Takatsuki" 15 minutes Shimotanabe park walk 12 minutes by bus 阪急京都線「高槻市」バス12分下田部団地歩12分 JR東海道本線「高槻」バス15分下田部団地歩12分
| Related links 関連リンク | | [Related Sites of this company] 【この会社の関連サイト】 | Person in charge 担当者より | | In order for you to find the residence of the ideal to the person in charge Sae Ohara customers, And at the same time quickly it delivers the information of the property, We try to introduce an easy-to-understand its appeal. Since there are a number of properties to our HP, There also please visit. 担当者大原小枝お客様に理想の住まいを見つけて頂くために、物件の情報をいち早くお届けすると同時に、その魅力を分かりやすくご紹介することを心掛けています。当社のHPにも数多くの物件がありますので、そちらもご覧ください。 | Contact お問い合せ先 | | TEL: 0800-603-8321 [Toll free] mobile phone ・ Also available from PHS Caller ID is not notified Please contact the "saw SUUMO (Sumo)" If it does not lead, If the real estate company TEL:0800-603-8321【通話料無料】携帯電話・PHSからもご利用いただけます 発信者番号は通知されません 「SUUMO(スーモ)を見た」と問い合わせください つながらない方、不動産会社の方は
| Land of the right form 土地の権利形態 | | Ownership 所有権 | Building condition 建築条件 | | With 付 | Time delivery 引き渡し時期 | | Consultation 相談 | Land category 地目 | | Residential land 宅地 | Use district 用途地域 | | One dwelling 1種住居 | Overview and notices その他概要・特記事項 | | Contact: Sae Ohara, Facilities: Public Water Supply, This sewage, City gas 担当者:大原小枝、設備:公営水道、本下水、都市ガス | Company profile 会社概要 | | <Mediation> governor of Osaka (2) the first 051,913 No. Kinki housing (Ltd.) Yubinbango569-0802 Osaka Takatsuki Kitazono cho 16-22 <仲介>大阪府知事(2)第051913号近畿ハウジング(株)〒569-0802 大阪府高槻市北園町16-22 |
 Local land photo
現地土地写真
Compartment view + building plan example区画図+建物プラン例  Building plan example, Land price 18.6 million yen, Land area 100.01 sq m , Building price 13,817,000 yen, Building area 86.31 sq m
建物プラン例、土地価格1860万円、土地面積100.01m2、建物価格1381万7000円、建物面積86.31m2
 Local photos, including front road
前面道路含む現地写真
 Local land photo
現地土地写真
 Local photos, including front road
前面道路含む現地写真
Other Environmental Photoその他環境写真  2677m to Hankyu Takatsuki-shi Station
阪急高槻市駅まで2677m
 Local land photo
現地土地写真
 Local photos, including front road
前面道路含む現地写真
 2936m until JR Takatsuki Station
JR高槻駅まで2936m
Shopping centreショッピングセンター  Until Cain Mall Takatsuki 1456m
カインズモール高槻まで1456m
Supermarketスーパー  Okuwa 942m to Takatsuki Otsuka shop
オークワ高槻大塚店まで942m
Home centerホームセンター  975m to Nitori Takatsuki store
ニトリ高槻店まで975m
 Yamada Denki Tecc Land 1120m to Takatsuki Otsuka head office
ヤマダ電機テックランド高槻大塚本店まで1120m
Junior high school中学校  1068m to Takatsuki Municipal Tenth Junior High School
高槻市立第十中学校まで1068m
Primary school小学校  679m to Takatsuki Municipal Takenouchi Elementary School
高槻市立竹の内小学校まで679m
Hospital病院  Specific medical corporation Kenwakai Ueda Shimotanabe to hospital 868m
特定医療法人健和会うえだ下田部病院まで868m
You will receive this brochureこんなパンフレットが届きます  More Information with a map ・ We will receive the funding plan, etc.!
地図付の詳細資料・資金計画書等をお送りします!
Location
|