New Homes » Kansai » Osaka prefecture » Takatsuki
 
| | Osaka Takatsuki 大阪府高槻市 |
| Hankyu Kyoto Line "Sojiji Temple" walk 7 minutes 阪急京都線「総持寺」歩7分 |
| ■ Recommended point ■ It is a quiet former Hankyu subdivision of the southeast corner lot! ■ Land about 42.35 square meters! ■ Your selection is also effortlessly comfortable because it is a south balcony! ■ Storage space is outstanding! ■おすすめポイント■東南角地の閑静な旧阪急分譲地です!■土地約42.35坪!■南側バルコニーですのでお選択も楽々快適です!■収納スペース抜群です! |
| [Housing exhibition fair - & Remodeling Fair -] ◆ Also held this year! ◆ January 11 (Sat) ~ 13 days (holiday) is, Happy privilege full of 3 days ☆ ・ I want to know now the "consumption tax increase and loan deduction", Individual consultations free of charge to the experts ・ Listing also Hokusetsu simultaneously exhibited 1,100! ・ Balloon art and also present plan Why do not you find the fun house? , 2 along the line more accessible, Yang per good, Siemens south road, A quiet residential area, LDK15 tatami mats or more, Around traffic fewer, Corner lotese-style room, Face-to-face kitchen, 2-story, Southeast direction, South balcony, The window in the bathroom, Ventilation good, City gas 【住宅展示フェア―&リフォームフェア―】◆今年も開催!◆1月11日(土) ~ 13日(祝)は、嬉しい特典いっぱいの3日間☆・今知っておきたい「消費増税やローン控除」を、専門家に無料で個別相談・物件情報も北摂1100件を一斉展示!・バルーンアートやプレゼント企画も 楽しく住まい探しをしませんか?即入居可、2沿線以上利用可、陽当り良好、南側道路面す、閑静な住宅地、LDK15畳以上、周辺交通量少なめ、角地、和室、対面式キッチン、2階建、東南向き、南面バルコニー、浴室に窓、通風良好、都市ガス |
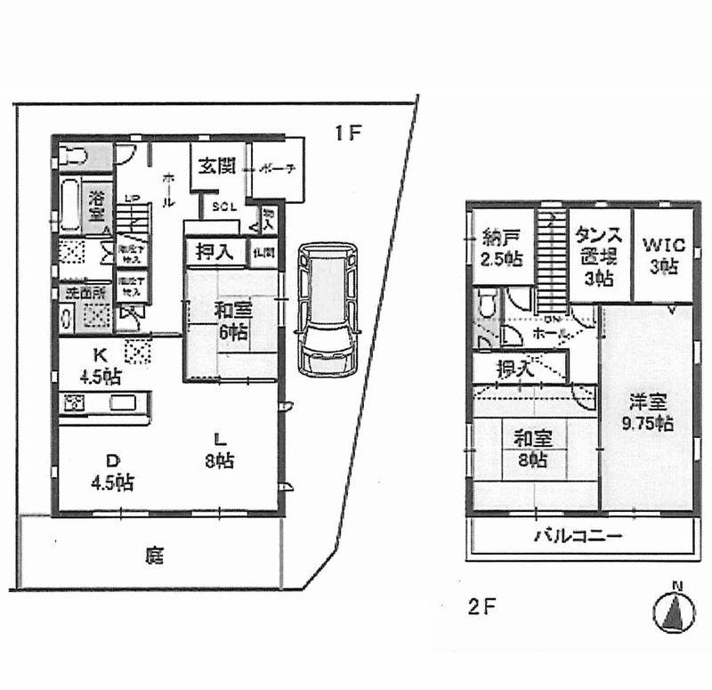
Features pickup 特徴ピックアップ | | Immediate Available / 2 along the line more accessible / Yang per good / Siemens south road / A quiet residential area / LDK15 tatami mats or more / Around traffic fewer / Corner lot / Japanese-style room / Face-to-face kitchen / 2-story / Southeast direction / South balcony / The window in the bathroom / Ventilation good / City gas 即入居可 /2沿線以上利用可 /陽当り良好 /南側道路面す /閑静な住宅地 /LDK15畳以上 /周辺交通量少なめ /角地 /和室 /対面式キッチン /2階建 /東南向き /南面バルコニー /浴室に窓 /通風良好 /都市ガス | Price 価格 | | 54,800,000 yen 5480万円 | Floor plan 間取り | | 3LDK + S (storeroom) 3LDK+S(納戸) | Units sold 販売戸数 | | 1 units 1戸 | Land area 土地面積 | | 140 sq m (registration) 140m2(登記) | Building area 建物面積 | | 120.06 sq m (registration) 120.06m2(登記) | Driveway burden-road 私道負担・道路 | | Nothing, East 7.9m width, South 4.5m width 無、東7.9m幅、南4.5m幅 | Completion date 完成時期(築年月) | | March 2013 2013年3月 | Address 住所 | | Osaka Takatsuki Showadai cho 大阪府高槻市昭和台町1 | Traffic 交通 | | Hankyu Kyoto Line "Sojiji Temple" walk 7 minutes Hankyu Kyoto Line "Tomita" walk 13 minutes JR Tokaido Line "Tomita Settsu" walk 15 minutes 阪急京都線「総持寺」歩7分 阪急京都線「富田」歩13分 JR東海道本線「摂津富田」歩15分
| Related links 関連リンク | | [Related Sites of this company] 【この会社の関連サイト】 | Person in charge 担当者より | | Rep Murata Can you like to say that it was good asked to Tatsuya Murata, I will do my best in everything. 担当者村田 達也村田に頼んでよかったと言っていただけますよう、全力で頑張ります。 | Contact お問い合せ先 | | TEL: 0800-603-2288 [Toll free] mobile phone ・ Also available from PHS Caller ID is not notified Please contact the "saw SUUMO (Sumo)" If it does not lead, If the real estate company TEL:0800-603-2288【通話料無料】携帯電話・PHSからもご利用いただけます 発信者番号は通知されません 「SUUMO(スーモ)を見た」と問い合わせください つながらない方、不動産会社の方は
| Building coverage, floor area ratio 建ぺい率・容積率 | | 60% ・ Hundred percent 60%・100% | Time residents 入居時期 | | Immediate available 即入居可 | Land of the right form 土地の権利形態 | | Ownership 所有権 | Structure and method of construction 構造・工法 | | Wooden 2-story 木造2階建 | Use district 用途地域 | | One low-rise 1種低層 | Other limitations その他制限事項 | | Regulations have by the Law for the Protection of Cultural Properties 文化財保護法による規制有 | Overview and notices その他概要・特記事項 | | Contact: Murata Tatsuya, Facilities: Public Water Supply, This sewage, City gas, Parking: car space 担当者:村田 達也、設備:公営水道、本下水、都市ガス、駐車場:カースペース | Company profile 会社概要 | | <Mediation> governor of Osaka (10) No. 021564 (Ltd.) Mishima Corporation Tomita shop Yubinbango569-1144 Osaka Takatsuki Ohata-cho, 3-5 <仲介>大阪府知事(10)第021564号(株)三島コーポレーション富田店〒569-1144 大阪府高槻市大畑町3-5 |
 Local photos, including front road
前面道路含む現地写真
Floor plan間取り図  54,800,000 yen, 3LDK + S (storeroom), Land area 140 sq m , Building area 120.06 sq m
5480万円、3LDK+S(納戸)、土地面積140m2、建物面積120.06m2
 Local appearance photo
現地外観写真
 Local appearance photo
現地外観写真
 Local photos, including front road
前面道路含む現地写真
 Parking lot
駐車場
Supermarketスーパー  Until the food hall APRO Sojiji Temple shop 774m
食品館アプロ総持寺店まで774m
Hospital病院  Medical Corporation Sen'yokai Hokusetsu 806m to General Hospital
医療法人仙養会北摂総合病院まで806m
Primary school小学校  502m to Takatsuki Municipal Tomita Elementary School
高槻市立富田小学校まで502m
Junior high school中学校  Takatsuki Municipal No. 4 900m up to junior high school
高槻市立第4中学校まで900m
Station駅  800m to Hankyu Tomita Station
阪急富田駅まで800m
 850m until JR Settsu Tomita Station
JR摂津富田駅まで850m
You will receive this brochureこんなパンフレットが届きます  This brochure will receive! JOIN NOW document request!
こちらのパンフレットが届きます!今すぐ資料請求しよう!
Location
|