New Homes » Kansai » Osaka prefecture » Takatsuki
 
| | Osaka Takatsuki 大阪府高槻市 |
| Hankyu Kyoto Line "Sojiji Temple" walk 21 minutes 阪急京都線「総持寺」歩21分 |
| ■ Is an environment favorable property is located in a quiet residential area ■ It is front road parking is also easy because the wide ■ 3 minute walk to the elementary school (240m) ■静かな住宅地にある環境良好物件ですよ■前面道路も広いので駐車もしやすいですよ■小学校まで徒歩約3分(240m) |
Features pickup 特徴ピックアップ | | Pre-ground survey / All room storage / Flat to the station / A quiet residential area / LDK15 tatami mats or more / Or more before road 6m / Japanese-style room / 2-story / South balcony / Warm water washing toilet seat / City gas / Flat terrain 地盤調査済 /全居室収納 /駅まで平坦 /閑静な住宅地 /LDK15畳以上 /前道6m以上 /和室 /2階建 /南面バルコニー /温水洗浄便座 /都市ガス /平坦地 | Price 価格 | | 34,800,000 yen 3480万円 | Floor plan 間取り | | 4LDK 4LDK | Units sold 販売戸数 | | 1 units 1戸 | Land area 土地面積 | | 100.51 sq m (registration) 100.51m2(登記) | Building area 建物面積 | | 98.12 sq m (registration) 98.12m2(登記) | Driveway burden-road 私道負担・道路 | | Nothing, West 6.6m width (contact the road width 7.6m) 無、西6.6m幅(接道幅7.6m) | Completion date 完成時期(築年月) | | December 2013 2013年12月 | Address 住所 | | Osaka Takatsuki Kawazoe 1 大阪府高槻市川添1 | Traffic 交通 | | Hankyu Kyoto Line "Sojiji Temple" walk 21 minutes Hankyu Kyoto Line "Tomita" walk 21 minutes JR Tokaido Line "Tomita Settsu" walk 22 minutes 阪急京都線「総持寺」歩21分 阪急京都線「富田」歩21分 JR東海道本線「摂津富田」歩22分
| Related links 関連リンク | | [Related Sites of this company] 【この会社の関連サイト】 | Person in charge 担当者より | | Person in charge of real-estate and building Matsunaga Jin Age: 30 Daigyokai Experience: 7 years I think you and would like to go out over a lifetime, I went into this industry. Is still studying, but does not lose to anyone feeling that "I want to see is your smile.". Let's looking for the best of the house together 担当者宅建松永 晋年齢:30代業界経験:7年お客様と一生をかけて付き合って行きたいと思い、この業界に入りました。まだまだ勉強中ですが「お客様の笑顔が見たい」という気持ちは誰にも負けません。一緒に最高の住まいを探しましょう | Contact お問い合せ先 | | TEL: 0800-603-2313 [Toll free] mobile phone ・ Also available from PHS Caller ID is not notified Please contact the "saw SUUMO (Sumo)" If it does not lead, If the real estate company TEL:0800-603-2313【通話料無料】携帯電話・PHSからもご利用いただけます 発信者番号は通知されません 「SUUMO(スーモ)を見た」と問い合わせください つながらない方、不動産会社の方は
| Building coverage, floor area ratio 建ぺい率・容積率 | | 60% ・ 200% 60%・200% | Time residents 入居時期 | | Three months after the contract 契約後3ヶ月 | Land of the right form 土地の権利形態 | | Ownership 所有権 | Structure and method of construction 構造・工法 | | Wooden 2-story 木造2階建 | Use district 用途地域 | | One middle and high 1種中高 | Overview and notices その他概要・特記事項 | | Contact: Matsunaga Jin, Facilities: Public Water Supply, This sewage, City gas, Building confirmation number: K13-0505 担当者:松永 晋、設備:公営水道、本下水、都市ガス、建築確認番号:K13-0505 | Company profile 会社概要 | | <Mediation> Minister of Land, Infrastructure and Transport (2) No. 007017 (Ltd.) House Freedom Ibaraki shop Yubinbango567-0824 Ibaraki, Osaka Nakatsu-cho 16-30 Sumikura building first floor <仲介>国土交通大臣(2)第007017号(株)ハウスフリーダム茨木店〒567-0824 大阪府茨木市中津町16-30 角倉ビル1階 |
Local appearance photo現地外観写真  Local (12 May 2013) Shooting
現地(2013年12月)撮影
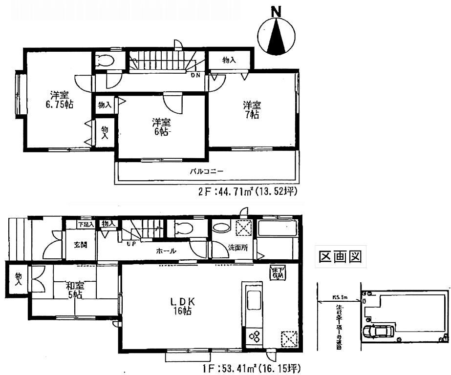
Floor plan間取り図  34,800,000 yen, 4LDK, Land area 100.51 sq m , Building area 98.12 sq m
3480万円、4LDK、土地面積100.51m2、建物面積98.12m2
Kitchenキッチン  Indoor (12 May 2013) Shooting
室内(2013年12月)撮影
Bathroom浴室  Indoor (12 May 2013) Shooting
室内(2013年12月)撮影
Local appearance photo現地外観写真  Local (12 May 2013) Shooting
現地(2013年12月)撮影
Livingリビング  Indoor (12 May 2013) Shooting
室内(2013年12月)撮影
Non-living roomリビング以外の居室  Indoor (12 May 2013) Shooting
室内(2013年12月)撮影
Entrance玄関  Local (12 May 2013) Shooting
現地(2013年12月)撮影
Wash basin, toilet洗面台・洗面所  Indoor (12 May 2013) Shooting
室内(2013年12月)撮影
Toiletトイレ  Indoor (12 May 2013) Shooting
室内(2013年12月)撮影
Local photos, including front road前面道路含む現地写真  Local (12 May 2013) Shooting
現地(2013年12月)撮影
Parking lot駐車場  Local (12 May 2013) Shooting
現地(2013年12月)撮影
Balconyバルコニー  Local (12 May 2013) Shooting
現地(2013年12月)撮影
Shopping centreショッピングセンター  1431m to UNIQLO Ibaraki Ayukawa shop
ユニクロ茨木鮎川店まで1431m
Other introspectionその他内観  Indoor (12 May 2013) Shooting
室内(2013年12月)撮影
Local appearance photo現地外観写真  Local (12 May 2013) Shooting
現地(2013年12月)撮影
Livingリビング  Indoor (12 May 2013) Shooting
室内(2013年12月)撮影
Non-living roomリビング以外の居室  Indoor (12 May 2013) Shooting
室内(2013年12月)撮影
Supermarketスーパー  744m to Friend Mart Takatsuki Kawazoe shop
フレンドマート高槻川添店まで744m
Other introspectionその他内観  Indoor (12 May 2013) Shooting
室内(2013年12月)撮影
Livingリビング  Indoor (12 May 2013) Shooting
室内(2013年12月)撮影
Non-living roomリビング以外の居室  Indoor (12 May 2013) Shooting
室内(2013年12月)撮影
Location
|