New Homes » Kansai » Osaka prefecture » Takatsuki


Osaka Takatsuki
Hankyu Kyoto Line "Tomita" walk 26 minutes
■ Limited 1 subdivisions ■ ■ Fulfill freely slow life, A quiet residential area! ■ Front road sidewalk also been developed, It is safe for small children! ■ Bright house of all rooms dihedral daylighting!
[Housing exhibition fair - & Remodeling Fair -] ◆ Also held this year! ◆ January 11 (Sat) ~ 13 days (holiday) is, Happy privilege full of 3 days ☆ ・ I want to know now the "consumption tax increase and loan deduction", Individual consultations free of charge to the experts ・ Listing also Hokusetsu simultaneously exhibited 1,100! ・ Balloon art and also present plan Why do not you find the fun house? ■ It is also a comfortable happy to every day of your laundry in the south balcony! ■ 15 Pledge space spacious living room to gather natural and your family of! ■ Low-e pair glass is standard specification! ! ■ I excellent storage capacity of the walk-in closet is attractive! ■ Face-to-face kitchen adopted that can dishes while watching the children play in the living room! ■ With big success bathroom dryer in your laundry on a rainy day! !
Features pickup
Corresponding to the flat-35S / Parking two Allowed / 2 along the line more accessible / Super close / Bathroom Dryer / Yang per good / All room storage / LDK15 tatami mats or more / Around traffic fewer / Japanese-style room / Shaping land / Face-to-face kitchen / Toilet 2 places / Bathroom 1 tsubo or more / 2-story / 2 or more sides balcony / Southeast direction / South balcony / Double-glazing / Underfloor Storage / The window in the bathroom / Ventilation good / Walk-in closet / All room 6 tatami mats or more / City gas / Maintained sidewalk / Flat terrain / Readjustment land within
Price
34,800,000 yen
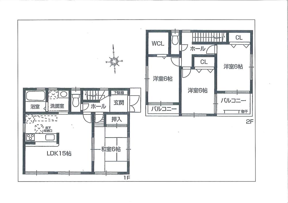
Floor plan
4LDK
Units sold
1 units
Land area
100 sq m (30.24 tsubo) (Registration)
Building area
94.77 sq m (28.66 tsubo) (Registration)
Driveway burden-road
Nothing, East 4.7m width (contact the road width 6.3m)
Completion date
February 2014
Address
Osaka Takatsuki Kawazoe 2
Traffic
Hankyu Kyoto Line "Tomita" walk 26 minutes
JR Tokaido Line "Tomita Settsu" walk 30 minutes
Hankyu Kyoto Line "Tomita" 10 minutes Tomita estate center walk 5 minutes by bus
Related links
[Related Sites of this company]
Person in charge
Rep Murata Can you like to say that it was good asked to Tatsuya Murata, I will do my best in everything.
Contact
TEL: 0800-603-2288 [Toll free] mobile phone ・ Also available from PHS
Caller ID is not notified
Please contact the "saw SUUMO (Sumo)"
If it does not lead, If the real estate company
Building coverage, floor area ratio
60% ・ 200%
Time residents
February 2014 schedule
Land of the right form
Ownership
Structure and method of construction
Wooden 2-story
Use district
One middle and high
Overview and notices
Contact: Murata Tatsuya, Facilities: Public Water Supply, This sewage, City gas, Building confirmation number: No. Trust 13-3617, Parking: car space
Company profile
<Mediation> governor of Osaka (10) No. 021564 (Ltd.) Mishima Corporation Tomita shop Yubinbango569-1144 Osaka Takatsuki Ohata-cho, 3-5


Model house photo

Model house photo. Model house is located in close!
Model house is located in close!

Floor plan

Floor plan. 34,800,000 yen, 4LDK, Land area 100 sq m , Building area 94.77 sq m
34,800,000 yen, 4LDK, Land area 100 sq m , Building area 94.77 sq m

Local appearance photo
Local appearance photo

Local appearance photo
Local appearance photo

Same specifications photos (living)
Same specifications photos (living)

Local photos, including front road
Local photos, including front road

Supermarket

Supermarket. 136m to Friend Mart Takatsuki Kawazoe shop
136m to Friend Mart Takatsuki Kawazoe shop

Model house photo

Model house photo. Model house
Model house

Local appearance photo
Local appearance photo

Supermarket

Supermarket. 271m to Hankyu Oasis Tomita shop
271m to Hankyu Oasis Tomita shop

Junior high school

Junior high school. 686m to Takatsuki Municipal Yanagawa junior high school
686m to Takatsuki Municipal Yanagawa junior high school

Primary school

Primary school. 639m to Takatsuki Municipal lawn Elementary School
639m to Takatsuki Municipal lawn Elementary School

Hospital

Hospital. 1492m until the medical corporation Yong love meeting Tomita-cho hospital
1492m until the medical corporation Yong love meeting Tomita-cho hospital

Hospital. Medical Corporation Sen'yokai Hokusetsu 1428m to General Hospital
Medical Corporation Sen'yokai Hokusetsu 1428m to General Hospital

Post office

post office. Takatsuki Kawazoe 217m to the post office
Takatsuki Kawazoe 217m to the post office

Bank

Bank. Settsu Suitoshin'yokinko Kawazoe to the branch 160m
Settsu Suitoshin'yokinko Kawazoe to the branch 160m

Bank. 289m to Bank of Kyoto Takatsuki south branch
289m to Bank of Kyoto Takatsuki south branch

You will receive this brochure

You will receive this brochure. This brochure will receive! JOIN NOW document request!
This brochure will receive! JOIN NOW document request!



Location