New Homes » Kansai » Osaka prefecture » Takatsuki
 
| | Osaka Takatsuki 大阪府高槻市 |
| JR Tokaido Line "Takatsuki" walk 18 minutes JR東海道本線「高槻」歩18分 |
| ◆ Station within walking distance! ◆ 4LDK reference plan there! ◆ Free design! ◆ Front road spacious! Takatsuki ・ In residence looking for Kinki housing of the community in Shimamoto! ◆駅徒歩圏内!◆4LDK参考プラン有り!◆自由設計!◆前面道路広々!高槻・島本での住まい探しは地域密着のキンキハウジングで! |
| ◆ Recommended point ◆ JR Takatsuki Station 18 mins ・ Hankyu be two wayside use of Takatsuki-shi Station walk 22 minutes is useful life! Land 22.73 square meters! Can you building your choice of floor plan! Per day per front road 6.1m ・ Ventilation is good! ◆ Property Looking For, Please leave detailed Kinki housing to local information and peripheral market ◆ We support looking for your ideal abode with full force. If you wish the local tour please feel free to contact! It is open from 8 am ◆おすすめポイント◆JR高槻駅徒歩18分・阪急高槻市駅徒歩22分の二沿線利用可能で生活便利です!土地22.73坪!お好みの間取りで建築して頂けます!前面道路6.1mにつき日当たり・風通し良好です!◆物件探しは、地域情報や周辺相場に詳しいキンキハウジングにお任せ下さい◆お客様の理想の住まい探しを全力でサポート致します。現地見学をご希望でしたらお気軽にご連絡下さい!朝8時から営業しています |
Features pickup 特徴ピックアップ | | 2 along the line more accessible / Yang per good / Flat to the station / Or more before road 6m / Shaping land / City gas / Flat terrain / Building plan example there 2沿線以上利用可 /陽当り良好 /駅まで平坦 /前道6m以上 /整形地 /都市ガス /平坦地 /建物プラン例有り | Price 価格 | | 10.1 million yen 1010万円 | Building coverage, floor area ratio 建ぺい率・容積率 | | 60% ・ 200% 60%・200% | Sales compartment 販売区画数 | | 1 compartment 1区画 | Land area 土地面積 | | 75.13 sq m (22.72 tsubo) (Registration) 75.13m2(22.72坪)(登記) | Driveway burden-road 私道負担・道路 | | 16.51 sq m , East 6.1m width (contact the road width 5.1m) 16.51m2、東6.1m幅(接道幅5.1m) | Land situation 土地状況 | | Vacant lot 更地 | Address 住所 | | Osaka Takatsuki Tsue-cho 1 大阪府高槻市津之江町1 | Traffic 交通 | | JR Tokaido Line "Takatsuki" walk 18 minutes Hankyu Kyoto Line "Takatsuki" walk 22 minutes JR東海道本線「高槻」歩18分 阪急京都線「高槻市」歩22分
| Related links 関連リンク | | [Related Sites of this company] 【この会社の関連サイト】 | Person in charge 担当者より | | Thing that beset a variety of anxiety is the person in charge Daisuke Sugiyama real estate transactions. As you are able to one by one eliminate such a anxiety, I will do my best in all sincerity. Please tell us a variety of talk. 担当者杉山大輔不動産取引には様々な不安が付きまとうものです。そういった不安を一つ一つ解消して頂ける様、誠心誠意頑張ります。色々なお話をお聞かせ下さい。 | Contact お問い合せ先 | | TEL: 0800-603-8321 [Toll free] mobile phone ・ Also available from PHS Caller ID is not notified Please contact the "saw SUUMO (Sumo)" If it does not lead, If the real estate company TEL:0800-603-8321【通話料無料】携帯電話・PHSからもご利用いただけます 発信者番号は通知されません 「SUUMO(スーモ)を見た」と問い合わせください つながらない方、不動産会社の方は
| Land of the right form 土地の権利形態 | | Ownership 所有権 | Building condition 建築条件 | | With 付 | Time delivery 引き渡し時期 | | Consultation 相談 | Land category 地目 | | Residential land 宅地 | Use district 用途地域 | | One dwelling 1種住居 | Overview and notices その他概要・特記事項 | | Contact: Daisuke Sugiyama, Facilities: Public Water Supply, This sewage, City gas 担当者:杉山大輔、設備:公営水道、本下水、都市ガス | Company profile 会社概要 | | <Mediation> governor of Osaka (2) the first 051,913 No. Kinki housing (Ltd.) Yubinbango569-0802 Osaka Takatsuki Kitazono cho 16-22 <仲介>大阪府知事(2)第051913号近畿ハウジング(株)〒569-0802 大阪府高槻市北園町16-22 |
 Local land photo
現地土地写真
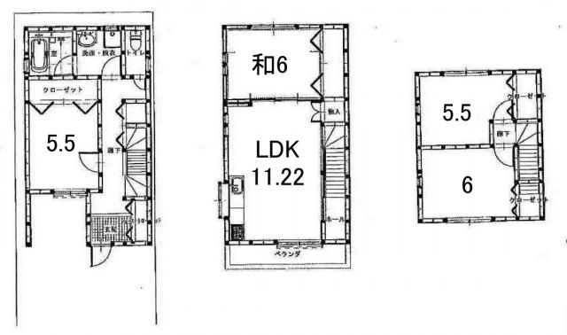
Compartment view + building plan example区画図+建物プラン例  Building plan example, Land price 10.1 million yen, Land area 75.13 sq m , Building price 26,300,000 yen, Building area 91.13 sq m
建物プラン例、土地価格1010万円、土地面積75.13m2、建物価格2630万円、建物面積91.13m2
 Local land photo
現地土地写真
 Local photos, including front road
前面道路含む現地写真
Supermarketスーパー  Until Savoy Tsue shop 504m
サボイ津之江店まで504m
 Other local
その他現地
 Other
その他
 Until Life Takatsuki Josai shop 833m
ライフ高槻城西店まで833m
Convenience storeコンビニ  408m to Seven-Eleven Takatsuki Josai the town shop
セブンイレブン高槻城西町店まで408m
Junior high school中学校  1054m to Takatsuki Tachikawa West Junior High School
高槻市立川西中学校まで1054m
Primary school小学校  799m to Takatsuki Municipal Tsue Elementary School
高槻市立津之江小学校まで799m
Kindergarten ・ Nursery幼稚園・保育園  Tsue until Sakura nursery 326m
津之江さくら保育園まで326m
Park公園  830m to Tsue park
津之江公園まで830m
Station駅  1440m until JR Takatsuki Station
JR高槻駅まで1440m
 1760m to Hankyu Takatsuki-shi Station
阪急高槻市駅まで1760m
You will receive this brochureこんなパンフレットが届きます  More Information with a map ・ We will receive the funding plan, etc.!
地図付の詳細資料・資金計画書等をお送りします!
Location
|