New Homes » Kansai » Osaka prefecture » Takatsuki
 
| | Osaka Takatsuki 大阪府高槻市 |
| Hankyu "Kitaotsuka" walk 8 minutes 阪急バス「北大塚」歩8分 |
| ■ It is a front road 6.5m so parking a breeze ■ It is convenient because Cain mall walk about 9 minutes (about 630m) ■ It aligns anything because other commercial facilities is also abundant ■前面道路6.5mなので駐車も楽々ですね■カインズモール徒歩約9分(約630m)ですので便利ですね■その他商業施設も豊富ですので何でも揃いますね |
Features pickup 特徴ピックアップ | | Bathroom Dryer / All room storage / Japanese-style room / Face-to-face kitchen / Toilet 2 places / Bathroom 1 tsubo or more / 2-story / Double-glazing / Underfloor Storage / The window in the bathroom / TV monitor interphone 浴室乾燥機 /全居室収納 /和室 /対面式キッチン /トイレ2ヶ所 /浴室1坪以上 /2階建 /複層ガラス /床下収納 /浴室に窓 /TVモニタ付インターホン | Price 価格 | | 24,800,000 yen 2480万円 | Floor plan 間取り | | 4LDK 4LDK | Units sold 販売戸数 | | 1 units 1戸 | Land area 土地面積 | | 77.27 sq m (23.37 tsubo) (Registration) 77.27m2(23.37坪)(登記) | Building area 建物面積 | | 88.28 sq m (26.70 tsubo) (Registration) 88.28m2(26.70坪)(登記) | Driveway burden-road 私道負担・道路 | | Nothing, North 6.5m width 無、北6.5m幅 | Completion date 完成時期(築年月) | | January 2014 2014年1月 | Address 住所 | | Osaka Takatsuki Otsuka-cho 3 大阪府高槻市大塚町3 | Traffic 交通 | | Hankyu "Kitaotsuka" walk 8 minutes 阪急バス「北大塚」歩8分 | Related links 関連リンク | | [Related Sites of this company] 【この会社の関連サイト】 | Person in charge 担当者より | | Rep Takenouchi Kana Age: 20 Daigyokai Experience: My name is Takenouchi of one year new employees! This person more than 20 years was born, We continue to live in Ibaraki. Since we also want to let me talk about a lot things Ibaraki people unique, Nice to meet you!! 担当者竹之内 華奈年齢:20代業界経験:1年新入社員の竹之内と申します!生まれてこのかた20年以上、茨木市に住み続けております。茨木人ならではのこともたくさんお話させて頂きたいと思っておりますので、よろしくお願いします!! | Contact お問い合せ先 | | TEL: 0800-603-2313 [Toll free] mobile phone ・ Also available from PHS Caller ID is not notified Please contact the "saw SUUMO (Sumo)" If it does not lead, If the real estate company TEL:0800-603-2313【通話料無料】携帯電話・PHSからもご利用いただけます 発信者番号は通知されません 「SUUMO(スーモ)を見た」と問い合わせください つながらない方、不動産会社の方は
| Building coverage, floor area ratio 建ぺい率・容積率 | | 60% ・ 200% 60%・200% | Time residents 入居時期 | | 4 months after the contract 契約後4ヶ月 | Land of the right form 土地の権利形態 | | Ownership 所有権 | Structure and method of construction 構造・工法 | | Wooden 2-story 木造2階建 | Use district 用途地域 | | One dwelling 1種住居 | Other limitations その他制限事項 | | Quasi-fire zones 準防火地域 | Overview and notices その他概要・特記事項 | | Contact: Takenouchi Kana, Facilities: Public Water Supply, This sewage, City gas, Building confirmation number: No. H25SHC115313, Parking: car space 担当者:竹之内 華奈、設備:公営水道、本下水、都市ガス、建築確認番号:第H25SHC115313号、駐車場:カースペース | Company profile 会社概要 | | <Mediation> Minister of Land, Infrastructure and Transport (2) No. 007017 (Ltd.) House Freedom Ibaraki shop Yubinbango567-0824 Ibaraki, Osaka Nakatsu-cho 16-30 Sumikura building first floor <仲介>国土交通大臣(2)第007017号(株)ハウスフリーダム茨木店〒567-0824 大阪府茨木市中津町16-30 角倉ビル1階 |
Local appearance photo現地外観写真  Local (12 May 2013) Shooting
現地(2013年12月)撮影
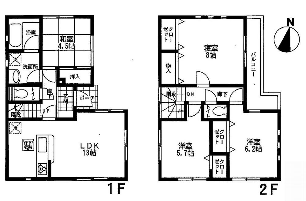
Floor plan間取り図  24,800,000 yen, 4LDK, Land area 77.27 sq m , Building area 88.28 sq m
2480万円、4LDK、土地面積77.27m2、建物面積88.28m2
Kitchenキッチン  Indoor (12 May 2013) Shooting
室内(2013年12月)撮影
Bathroom浴室  Indoor (12 May 2013) Shooting
室内(2013年12月)撮影
Local appearance photo現地外観写真  Local (12 May 2013) Shooting
現地(2013年12月)撮影
Livingリビング  Indoor (12 May 2013) Shooting
室内(2013年12月)撮影
Non-living roomリビング以外の居室  Indoor (12 May 2013) Shooting
室内(2013年12月)撮影
Entrance玄関  Local (12 May 2013) Shooting
現地(2013年12月)撮影
Wash basin, toilet洗面台・洗面所  Indoor (12 May 2013) Shooting
室内(2013年12月)撮影
Toiletトイレ  Indoor (12 May 2013) Shooting
室内(2013年12月)撮影
Local photos, including front road前面道路含む現地写真  Local (12 May 2013) Shooting
現地(2013年12月)撮影
Parking lot駐車場  Local (12 May 2013) Shooting
現地(2013年12月)撮影
Balconyバルコニー  Local (12 May 2013) Shooting
現地(2013年12月)撮影
Shopping centreショッピングセンター  802m until Nishimatsuya Takatsuki Takenouchi shop
西松屋高槻竹の内店まで802m
Livingリビング  Indoor (12 May 2013) Shooting
室内(2013年12月)撮影
Non-living roomリビング以外の居室  Indoor (12 May 2013) Shooting
室内(2013年12月)撮影
Entrance玄関  Local (12 May 2013) Shooting
現地(2013年12月)撮影
Local photos, including front road前面道路含む現地写真  Local (12 May 2013) Shooting
現地(2013年12月)撮影
Supermarketスーパー  Bandai 789m to Takatsuki Otsuka shop
万代高槻大塚店まで789m
Non-living roomリビング以外の居室  Indoor (12 May 2013) Shooting
室内(2013年12月)撮影
Supermarketスーパー  Until MORITAYA Otsuka shop 868m
MORITAYA大塚店まで868m
Non-living roomリビング以外の居室  Indoor (12 May 2013) Shooting
室内(2013年12月)撮影
Location
|