New Homes » Kansai » Osaka prefecture » Toyonaka
 
| | Toyonaka, Osaka 大阪府豊中市 |
| Hankyu Takarazuka Line "Toyonaka" walk 16 minutes 阪急宝塚線「豊中」歩16分 |
| ■ Popular areas in Hokusetsu Uenonishi. I was born in a quiet residential area, Rooftops of all 20 compartments ■ Elementary school, etc. within walking distance, Fulfilling educational environment. Shopping facilities, etc. There is also within walking distance of the living environment is also enhanced ■ Traffic is direct access possible to the Umeda and Osaka Airport at 3 Station use 16 minutes walk to Hankyu Toyonaka Station ( ※ Bus is also available) ■北摂で人気のエリア上野西。閑静な住宅街に誕生した、全20区画の街並み■徒歩圏内にある小学校等、充実した教育環境。お買物施設等も徒歩圏にあり生活環境も充実■交通は3駅利用で梅田や大阪空港へもダイレクトアクセス可能 阪急豊中駅へ徒歩16分(※バスも利用可能) |
Local guide map 現地案内図 | | Local guide map 現地案内図 | Features pickup 特徴ピックアップ | | Construction housing performance with evaluation / Design house performance with evaluation / Measures to conserve energy / Long-term high-quality housing / Corresponding to the flat-35S / Airtight high insulated houses / Year Available / 2 along the line more accessible / Super close / Facing south / System kitchen / Bathroom Dryer / Yang per good / All room storage / Flat to the station / Siemens south road / A quiet residential area / LDK15 tatami mats or more / Corner lot / Japanese-style room / Washbasin with shower / Security enhancement / Toilet 2 places / Bathroom 1 tsubo or more / 2-story / South balcony / Double-glazing / Warm water washing toilet seat / Underfloor Storage / The window in the bathroom / TV monitor interphone / Leafy residential area / Ventilation good / Good view / Dish washing dryer / Walk-in closet / Or more ceiling height 2.5m / Water filter / Living stairs / City gas / Maintained sidewalk / Flat terrain / Floor heating / Development subdivision in 建設住宅性能評価付 /設計住宅性能評価付 /省エネルギー対策 /長期優良住宅 /フラット35Sに対応 /高気密高断熱住宅 /年内入居可 /2沿線以上利用可 /スーパーが近い /南向き /システムキッチン /浴室乾燥機 /陽当り良好 /全居室収納 /駅まで平坦 /南側道路面す /閑静な住宅地 /LDK15畳以上 /角地 /和室 /シャワー付洗面台 /セキュリティ充実 /トイレ2ヶ所 /浴室1坪以上 /2階建 /南面バルコニー /複層ガラス /温水洗浄便座 /床下収納 /浴室に窓 /TVモニタ付インターホン /緑豊かな住宅地 /通風良好 /眺望良好 /食器洗乾燥機 /ウォークインクロゼット /天井高2.5m以上 /浄水器 /リビング階段 /都市ガス /整備された歩道 /平坦地 /床暖房 /開発分譲地内 | Event information イベント情報 | | Model House (please visitors to direct local) schedule / During the public time / 10:00 ~ 19:00 ◆ ◆ Christmas Campaign! Your visitors received a questionnaire to those who fill out "Gifts to choose 2,000 yen " ※ Detail is, Please visit the official website. ◆ ◇ final special sale! ! furniture ・ With lighting equipment sales ◇ ◆ ※ Or for more information you get ask to local sales center, Please check the official website. モデルハウス(直接現地へご来場ください)日程/公開中時間/10:00 ~ 19:00◆◆クリスマス キャンペーン実施中! ご来場いただきアンケートをご記入いただいた方へ ”選べるプレゼント 2,000円分” ※詳細は、公式ホームページをご覧ください。◆◇最終特別分譲!! 家具・照明器具付き販売 ◇◆ ※詳細は現地販売センターへおたずねいただくか、公式ホームページをご確認ください。 | Property name 物件名 | | Ha peer Garden Toyonaka Uenonishi ハピアガーデン豊中上野西 | Price 価格 | | 54,900,000 yen ・ 56,200,000 yen including tax selling price 5490万円・5620万円税込み販売価格 | Floor plan 間取り | | 4LDK 4LDK | Units sold 販売戸数 | | 2 units 2戸 | Total units 総戸数 | | 20 units 20戸 | Land area 土地面積 | | 100.08 sq m ・ 101.2 sq m 100.08m2・101.2m2 | Building area 建物面積 | | 99.1 sq m ・ 102.51 sq m 99.1m2・102.51m2 | Completion date 完成時期(築年月) | | October 2012 2012年10月 | Address 住所 | | Toyonaka, Osaka Uenonishi 2-144 No. 25 大阪府豊中市上野西2-144番25他 | Traffic 交通 | | Hankyu Takarazuka Line "Toyonaka" walk 16 minutes Osaka Monorail Main Line "Shoji" walk 17 minutes Osaka Monorail Main Line "Shibahara" walk 16 minutes 阪急宝塚線「豊中」歩16分 大阪モノレール本線「少路」歩17分 大阪モノレール本線「柴原」歩16分
| Related links 関連リンク | | [Related Sites of this company] 【この会社の関連サイト】 | Contact お問い合せ先 | | "Ha Pia Garden Toyonaka Uenonishi" local sales center TEL: 0120-84-1584 [Toll free] (mobile phone ・ Also available from PHS. ) Please contact the "saw SUUMO (Sumo)" 「ハピアガーデン豊中上野西」現地販売センターTEL:0120-84-1584【通話料無料】(携帯電話・PHSからもご利用いただけます。)「SUUMO(スーモ)を見た」と問い合わせください | Sale schedule 販売スケジュール | | ◇ ◆ Rooftops of all 20 House. Furnished special sale being carried out! ! ※ Buy Sign up, During the reception at the first-come-first-served basis! ※ For the first-come-first-served basis accepted, There is a case to be Sold. Please note. ◆ ◇ at the same time Christmas Campaign! ! For more information, Please visit the official website. ◇◆全20邸の街並み。 家具付き特別分譲実施中!!※購入お申し込みは、先着順にて受付中!※先着順受付の為、売却済みとなる場合があります。予め後了承ください。◆◇同時にクリスマスキャンペーン実施中!!詳しくは、公式ホームページをご覧ください。 | Expenses 諸費用 | | Other expenses: autonomy fee: 1,000 yen / Year (H24.9.30 current) その他諸費用:自治会費:1,000円/年(H24.9.30現在) | Building coverage, floor area ratio 建ぺい率・容積率 | | Kenpei rate: 60%, Volume ratio: 150% 建ペい率:60%、容積率:150% | Time residents 入居時期 | | Immediate available 即入居可 | Land of the right form 土地の権利形態 | | Ownership 所有権 | Structure and method of construction 構造・工法 | | Wooden 2-story (2 × 4 construction method) 木造2階建(2×4工法) | Construction 施工 | | Tsudasangyo Co., Ltd. 津田産業株式会社 | Use district 用途地域 | | One low-rise 1種低層 | Land category 地目 | | Residential land 宅地 | Other limitations その他制限事項 | | Regulations have by the Law for the Protection of Cultural Properties, Regulations have by the Landscape Act, Regulations have by the Aviation Law, Height district, Site area minimum Yes, Shade limit Yes 文化財保護法による規制有、景観法による規制有、航空法による規制有、高度地区、敷地面積最低限度有、日影制限有 | Overview and notices その他概要・特記事項 | | Building confirmation number: No. BVJ-G12-10-0781 (June 2012 dated 18) Other 建築確認番号:第BVJ-G12-10-0781号(平成24年6月18日付)他 | Company profile 会社概要 | | <Seller> Minister of Land, Infrastructure and Transport (14) No. 03/000265 (company) Osaka Building Lots and Buildings Transaction Business Association (Corporation) Kinki district Real Estate Fair Trade Council member Hanshin Electric Railway Co., Ltd. headquarters Yubinbango553-0001 Osaka-shi, Osaka, Fukushima-ku, Ebie 1-1-24 <marketing alliance (agency)> Governor of Hyogo Prefecture (1) No. 204138 ・ and ・ El Yubinbango659-0051 Hyogo Prefecture Ashiya Kuregawa cho 1-3-503 <売主>国土交通大臣(14)第000265号(社)大阪府宅地建物取引業協会会員 (公社)近畿地区不動産公正取引協議会加盟阪神電気鉄道(株)本社〒553-0001 大阪府大阪市福島区海老江1-1-24<販売提携(代理)>兵庫県知事(1)第204138号(社)兵庫県宅地建物取引業協会会員(株)アイ・アンド・エル〒659-0051 兵庫県芦屋市呉川町1-3-503 |
Model house photoモデルハウス写真  ※ Published photograph of, Photos of the model house is. I'd love to, Please check the goodness of quality at local.
※掲載の写真は、モデルハウスの写真です。是非、現地にて品質の良さをご確認ください。
 Spacious living room in which a part atrium space in the kitchen. YOUR plan summarized in the chic atmosphere whole. Come visit the local.
広々キッチンに一部吹き抜け空間を設けたリビング。全体をシックな雰囲気で纏めたプランです。是非現地でご確認を。
 Kitchen facing the large windows. Ensure wide enough to meal preparation of the whole family.
大きな窓に面したキッチン。ご家族みんなでの食事の支度にも十分な広さを確保。
It is around the map of this property. In the vicinity of this property, It also equipped living facilities such as convenient supermarket or post office to life.当物件の周辺地図です。当物件の周辺には、生活に便利なスーパーや郵便局等の生活施設も揃っております。  It is around the map of this property.
当物件の周辺地図です。
Osaka from our property, Is an access map to the Umeda and Osaka Airport. 3 Station Available. Osaka from our property, To the city of Umeda 28 minutes, Is to Osaka Airport can be accessed in 23 minutes.当物件から大阪、梅田や大阪空港へのアクセスマップです。3駅利用可能。当物件から大阪、梅田の都心へ28分、大阪空港へは23分でアクセス出来ます。  Osaka from our property, Is an access map to the Umeda and Osaka Airport. 3 Station Available.
当物件から大阪、梅田や大阪空港へのアクセスマップです。3駅利用可能。
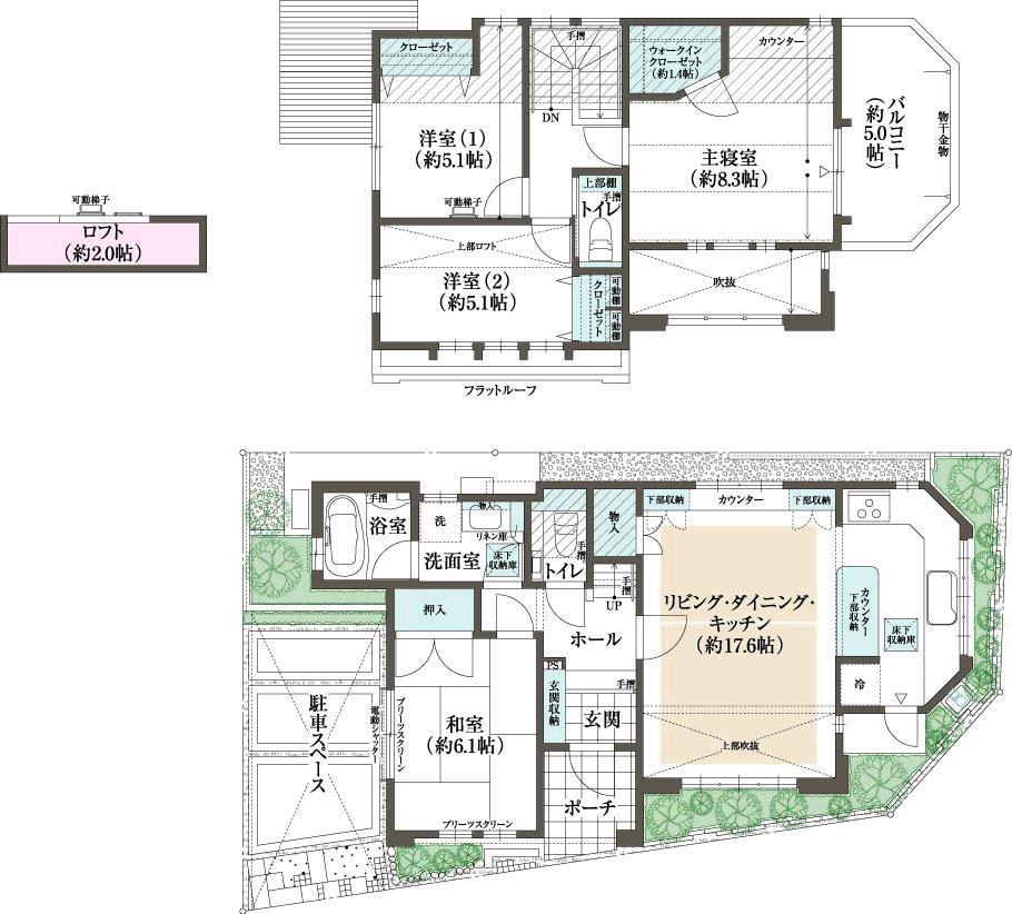
Floor plan間取り図  (No. 15 locations), Price 54,900,000 yen, 4LDK, Land area 101.2 sq m , Building area 102.51 sq m
(15号地)、価格5490万円、4LDK、土地面積101.2m2、建物面積102.51m2
 (No. 20 locations), Price 56,200,000 yen, 4LDK, Land area 100.08 sq m , Building area 99.1 sq m
(20号地)、価格5620万円、4LDK、土地面積100.08m2、建物面積99.1m2
Primary school小学校  710m City Ueno elementary school to municipal Ueno Elementary School is one of the few returnees education center designated school in Osaka Prefecture.
市立上野小学校まで710m 市立上野小学校は大阪府下でも数少ない帰国子女教育センター指定校です。
Junior high school中学校  Municipal tenth 2070m eleventh junior high school until one junior high school is the International Development Center designated school. It is cosmopolitan educational environment with elementary school.
市立第十一中学校まで2070m 第十一中学校は国際化推進センター指定校。小学校とともに国際色豊かな教育環境です。
Convenience storeコンビニ  270m convenience store to FamilyMart Toyonaka store also located in the proximity of a 4-minute walk, Convenient.
ファミリーマート豊中店まで270m コンビニエンスストアも徒歩4分の近さにあり、便利です。
Park公園  Is I am happy to Honchokita park 390m small children also play in peace park is in the near.
本町北公園まで390m 小さなお子様も安心して遊べる公園が近にあるのは嬉しいですね。
Location
|