New Homes » Kansai » Osaka prefecture » Toyonaka
 
| | Toyonaka, Osaka 大阪府豊中市 |
| Northern Osaka Express "Momoyamadai" walk 18 minutes 北大阪急行「桃山台」歩18分 |
| ◆ Newly built single-family ・ It is sold only limited 1 House in rare areas! ◆ Spacious 5LDK + large garage ◆ Floor plan can be changed. ◆ Since the wide frontage land can be an ideal floor plan is realized. ◆新築戸建・希少地に限定1邸のみの販売です!◆広々5LDK+大型車庫◆間取り変更可能です。◆間口の広い土地なので理想の間取りが実現できます。 |
| ・ Floor plan can be changed. Please consult! ・ Momoyamadai is the location of the 18-minute walk to the Train Station. ・ Guests slowly stay in the leafy streets. ・ Kumanoda park near, You can go out with the children. ・ Around in the quiet residential area, Hospitals and super ・ There are many, such as nursery school. ・ Please refer to the once local because the areas where hard-to-out of single-family. ・間取り変更可能です。ご相談下さい!・桃山台駅まで徒歩18分の立地です。・緑豊かな街並みでごゆっくりお過ごしいただけます。・熊野田公園も近く、お子様とお出かけできます。・周辺は閑静な住宅街で、病院やスーパー・保育園などが多くございます。・なかなか戸建の出ない地域なので一度現地をご覧ください。 |
Features pickup 特徴ピックアップ | | Pre-ground survey / 2 along the line more accessible / Super close / It is close to the city / System kitchen / Bathroom Dryer / Yang per good / A quiet residential area / LDK15 tatami mats or more / Around traffic fewer / Washbasin with shower / Toilet 2 places / The window in the bathroom / Leafy residential area / Mu front building / Ventilation good / All living room flooring / Three-story or more / Living stairs / City gas / A large gap between the neighboring house 地盤調査済 /2沿線以上利用可 /スーパーが近い /市街地が近い /システムキッチン /浴室乾燥機 /陽当り良好 /閑静な住宅地 /LDK15畳以上 /周辺交通量少なめ /シャワー付洗面台 /トイレ2ヶ所 /浴室に窓 /緑豊かな住宅地 /前面棟無 /通風良好 /全居室フローリング /3階建以上 /リビング階段 /都市ガス /隣家との間隔が大きい | Price 価格 | | 34,800,000 yen 3480万円 | Floor plan 間取り | | 5LDK 5LDK | Units sold 販売戸数 | | 1 units 1戸 | Total units 総戸数 | | 1 units 1戸 | Land area 土地面積 | | 80.26 sq m (registration) 80.26m2(登記) | Building area 建物面積 | | 109.35 sq m (registration) 109.35m2(登記) | Driveway burden-road 私道負担・道路 | | Nothing, Northwest 4.7m width 無、北西4.7m幅 | Completion date 完成時期(築年月) | | 6 months after the contract 契約後6ヶ月 | Address 住所 | | Osaka Toyonaka Nishiizumigaoka 1 大阪府豊中市西泉丘1 | Traffic 交通 | | Northern Osaka Express "Momoyamadai" walk 18 minutes Northern Osaka Express "parkland" walk 30 minutes Hankyu Takarazuka Line "Toyonaka" walk 30 minutes 北大阪急行「桃山台」歩18分 北大阪急行「緑地公園」歩30分 阪急宝塚線「豊中」歩30分
| Related links 関連リンク | | [Related Sites of this company] 【この会社の関連サイト】 | Contact お問い合せ先 | | TEL: 0800-602-6598 [Toll free] mobile phone ・ Also available from PHS Caller ID is not notified Please contact the "saw SUUMO (Sumo)" If it does not lead, If the real estate company TEL:0800-602-6598【通話料無料】携帯電話・PHSからもご利用いただけます 発信者番号は通知されません 「SUUMO(スーモ)を見た」と問い合わせください つながらない方、不動産会社の方は
| Building coverage, floor area ratio 建ぺい率・容積率 | | 60% ・ 200% 60%・200% | Time residents 入居時期 | | 6 months after the contract 契約後6ヶ月 | Land of the right form 土地の権利形態 | | Ownership 所有権 | Structure and method of construction 構造・工法 | | Wooden three-story 木造3階建 | Use district 用途地域 | | One middle and high 1種中高 | Overview and notices その他概要・特記事項 | | Facilities: Public Water Supply, This sewage, City gas, Building confirmation number: 111111111, Parking: Garage 設備:公営水道、本下水、都市ガス、建築確認番号:111111111、駐車場:車庫 | Company profile 会社概要 | | <Mediation> governor of Osaka (2) No. 051345 (Ltd.) World ・ One Toyonaka store Yubinbango560-0021 Toyonaka, Osaka Honcho 4-1-22 <仲介>大阪府知事(2)第051345号(株)ワールド・ワン豊中店〒560-0021 大阪府豊中市本町4-1-22 |
Other localその他現地  Is a newly built House is located in a quiet residential area near the Crane. Around Seclusion harbor, There weaker elements to close elementary and junior high schools. Located in the green area, You can comfortably stay.
服部緑地にほど近い閑静な住宅街に位置する新築戸建てです。しゅうへんかんきょりょうこうで、小中学校も近くにござい安素。緑豊かな地域にあり、ゆったりお過ごしいただけます。
Local appearance photo現地外観写真  Now a vacant lot. Floor plan can be changed ・ By all means, please consult.
現在更地です。間取り変更可能・是非ご相談下さい。
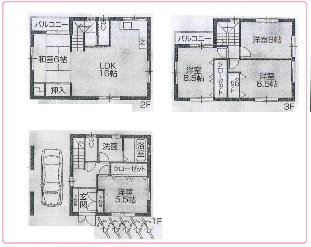
Floor plan間取り図  34,800,000 yen, 5LDK, Land area 80.26 sq m , Building area 109.35 sq m Nishiizumigaoka 1-chome Floor plan
3480万円、5LDK、土地面積80.26m2、建物面積109.35m2 西泉丘1丁目 間取り図
Local photos, including front road前面道路含む現地写真  Local photos from a different direction
別方向から現地写真
 It is the entire surface of the road. A quiet residential area, It is spacious spend serving environment.
全面道路です。 閑静な住宅街、ゆったりお過ごしいただける環境です。
Convenience storeコンビニ  617m to FamilyMart Toyonaka Asahigaoka shop
ファミリーマート豊中旭丘店まで617m
Otherその他  Frontal road
前面道路
Local photos, including front road前面道路含む現地写真  Now a vacant lot.
現在更地です。
Home centerホームセンター  965m to home improvement Konan Toyonaka Yuhigaoka shop
ホームセンターコーナン豊中夕日丘店まで965m
Junior high school中学校  Toyonaka 982m to stand seventeenth junior high school
豊中市立第十七中学校まで982m
Primary school小学校  464m to Toyonaka Tatsuizumi hill Elementary School
豊中市立泉丘小学校まで464m
Government office役所  Toyonaka 1805m to city hall
豊中市役所まで1805m
Park公園  550m until Kumanoda park
熊野田公園まで550m
 Until Crane 1696m
服部緑地まで1696m
Kindergarten ・ Nursery幼稚園・保育園  Kumanoda 1095m to kindergarten
熊野田幼稚園まで1095m
Hospital病院  1198m until the medical corporation Jun Kou Board Higashitoyonaka Watanabe hospital
医療法人純幸会東豊中渡辺病院まで1198m
Location
|