|
|
Toyonaka, Osaka
大阪府豊中市
|
|
Osaka Monorail Main Line "Shoji" walk 14 minutes
大阪モノレール本線「少路」歩14分
|
|
◆ New construction is detached. Current state is incomplete. ◆ It is located in a quiet residential area. ◆ Spacious house of land about 54 square meters. ◆ Facing south ・ Parking 3 units can be!
◆新築戸建です。現況未完成です。◆閑静な住宅街に位置しております。◆土地約54坪の広々としたお家です。◆南向き・駐車3台可能!
|
|
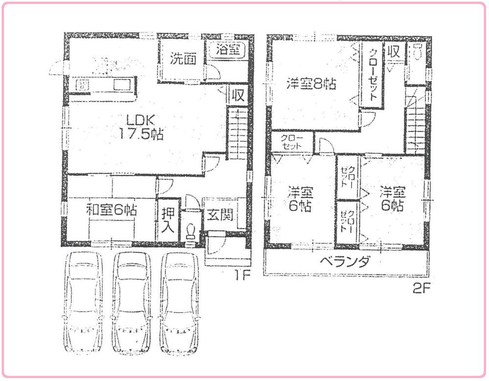
・ 4LDK about 17.5 Pledge ・ All room 6 quires more ・ With accommodated in the whole room! With under-floor storage! ! ・ Nearby on the south-facing veranda to sunny Aoike park, Green is a large area. And 43 Route is through the nearby, It is connected to the central annular line. Commercial facilities and hospitals are also many areas. Please contact us first. We will carry out detailed description, etc. from our shop salesman. We look forward to your inquiry. Please contact us.
・4LDK約17.5帖・全居室6帖以上・全居室に収納付き!床下収納付き!!・南向きのベランダで日当たり良好青池公園まで近く、緑の多い地域です。43号線が近くを通っており、中央環状線につながっております。商業施設や病院も多い地域です。まずはお問い合わせください。当店営業マンから詳細な説明等させて頂きます。お問い合わせお待ちしております。是非お問い合わせください。
|
Features pickup 特徴ピックアップ | | Parking three or more possible / 2 along the line more accessible / Facing south / Yang per good / All room storage / A quiet residential area / LDK15 tatami mats or more / Japanese-style room / Toilet 2 places / 2-story / South balcony / Underfloor Storage / Ventilation good / All room 6 tatami mats or more / City gas / All rooms are two-sided lighting 駐車3台以上可 /2沿線以上利用可 /南向き /陽当り良好 /全居室収納 /閑静な住宅地 /LDK15畳以上 /和室 /トイレ2ヶ所 /2階建 /南面バルコニー /床下収納 /通風良好 /全居室6畳以上 /都市ガス /全室2面採光 |
Price 価格 | | 51,800,000 yen 5180万円 |
Floor plan 間取り | | 4LDK 4LDK |
Units sold 販売戸数 | | 1 units 1戸 |
Total units 総戸数 | | 1 units 1戸 |
Land area 土地面積 | | 157.87 sq m (registration) 157.87m2(登記) |
Building area 建物面積 | | 108.54 sq m (registration) 108.54m2(登記) |
Driveway burden-road 私道負担・道路 | | 20.07 sq m , Southwest 4m width 20.07m2、南西4m幅 |
Completion date 完成時期(築年月) | | 4 months after the contract 契約後4ヶ月 |
Address 住所 | | Osaka Toyonaka Uenonishi 3 大阪府豊中市上野西3 |
Traffic 交通 | | Osaka Monorail Main Line "Shoji" walk 14 minutes Osaka Monorail Main Line "Shibahara" walk 17 minutes Hankyu Takarazuka Line "Toyonaka" walk 20 minutes 大阪モノレール本線「少路」歩14分 大阪モノレール本線「柴原」歩17分 阪急宝塚線「豊中」歩20分
|
Related links 関連リンク | | [Related Sites of this company] 【この会社の関連サイト】 |
Contact お問い合せ先 | | TEL: 0800-602-6598 [Toll free] mobile phone ・ Also available from PHS Caller ID is not notified Please contact the "saw SUUMO (Sumo)" If it does not lead, If the real estate company TEL:0800-602-6598【通話料無料】携帯電話・PHSからもご利用いただけます 発信者番号は通知されません 「SUUMO(スーモ)を見た」と問い合わせください つながらない方、不動産会社の方は
|
Building coverage, floor area ratio 建ぺい率・容積率 | | 60% ・ 150% 60%・150% |
Time residents 入居時期 | | 4 months after the contract 契約後4ヶ月 |
Land of the right form 土地の権利形態 | | Ownership 所有権 |
Structure and method of construction 構造・工法 | | Wooden 2-story 木造2階建 |
Use district 用途地域 | | One low-rise 1種低層 |
Overview and notices その他概要・特記事項 | | Facilities: Public Water Supply, This sewage, City gas, Building confirmation number: 0000000000, Parking: car space 設備:公営水道、本下水、都市ガス、建築確認番号:0000000000、駐車場:カースペース |
Company profile 会社概要 | | <Mediation> governor of Osaka (2) No. 051345 (Ltd.) World ・ One Toyonaka store Yubinbango560-0021 Toyonaka, Osaka Honcho 4-1-22 <仲介>大阪府知事(2)第051345号(株)ワールド・ワン豊中店〒560-0021 大阪府豊中市本町4-1-22 |