|
|
Toyonaka, Osaka
大阪府豊中市
|
|
Hankyu Takarazuka Line "Toyonaka" 10 minutes Ueno elementary school before stop walking 7 minutes by bus
阪急宝塚線「豊中」バス10分上野小学校前停留所歩7分
|
|
PanaHome Toyonaka ・ Uenohigashi Houses built for sale Limit 1 House
パナホーム豊中・上野東 分譲住宅 限定1邸
|
|
PanaHome Toyonaka ・ Uenohigashi Houses built for sale This spring birth PanaHome of residence is to limit 1 House popular Ueno area. Living stairs to nurture the family of touching love ・ Is a floor plan of the housework Lok! Walk to the monorail Shōji Station 17 minutes, Hankyu Toyonaka Station ・ 3WAY access of the bus 13 minutes from Osaka north express Momoyamadai!
パナホーム豊中・上野東 分譲住宅 限定1邸人気の上野エリアにパナホームの邸が今春誕生。家族のふれ愛を育むリビング階段・家事樂の間取りです!モノレール少路駅まで徒歩17分、阪急豊中駅・大阪北急行桃山台へもバス13分の3WAYアクセス!
|
Local guide map 現地案内図 | | Local guide map 現地案内図 |
Features pickup 特徴ピックアップ | | Measures to conserve energy / Parking two Allowed / 2 along the line more accessible / Airtight high insulated houses / Super close / A quiet residential area 省エネルギー対策 /駐車2台可 /2沿線以上利用可 /高気密高断熱住宅 /スーパーが近い /閑静な住宅地 |
Property name 物件名 | | PanaHome Toyonaka ・ Uenohigashi パナホーム豊中・上野東 |
Price 価格 | | 52,800,000 yen 5280万円 |
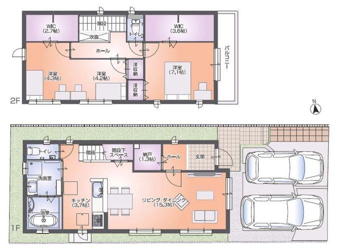
Floor plan 間取り | | 3LDK + S (storeroom) 3LDK+S(納戸) |
Units sold 販売戸数 | | 1 units 1戸 |
Total units 総戸数 | | 1 units 1戸 |
Land area 土地面積 | | 101.04 sq m 101.04m2 |
Building area 建物面積 | | 96.89 sq m 96.89m2 |
Completion date 完成時期(築年月) | | March 2013 2013年3月 |
Address 住所 | | Osaka Toyonaka Uenohigashi 2-13 大阪府豊中市上野東2-13 |
Traffic 交通 | | Hankyu Takarazuka Line "Toyonaka" 10 minutes Ueno elementary school before stop walking 7 minutes by bus Northern Osaka Express "Senri" bus 14 minutes Ueno elementary school before stop walking 7 minutes Northern Osaka Express "Momoyamadai" 15 minutes Ueno elementary school before stop walking 7 minutes by bus 阪急宝塚線「豊中」バス10分上野小学校前停留所歩7分 北大阪急行「千里中央」バス14分上野小学校前停留所歩7分 北大阪急行「桃山台」バス15分上野小学校前停留所歩7分
|
Related links 関連リンク | | [Related Sites of this company] 【この会社の関連サイト】 |
Contact お問い合せ先 | | PanaHome Co., Ltd. Osaka Branch Hokusetsu Sales Department TEL: 06-6877-3002 "saw SUUMO (Sumo)" and please contact パナホーム株式会社 大阪支社 北摂営業部TEL:06-6877-3002「SUUMO(スーモ)を見た」と問い合わせください |
Building coverage, floor area ratio 建ぺい率・容積率 | | 60% / 150% 60%/150% |
Time residents 入居時期 | | Consultation 相談 |
Land of the right form 土地の権利形態 | | Ownership 所有権 |
Structure and method of construction 構造・工法 | | Light-gauge steel 軽量鉄骨 |
Construction 施工 | | PanaHome Co., Ltd. パナホーム株式会社 |
Use district 用途地域 | | One low-rise 1種低層 |
Land category 地目 | | Residential land 宅地 |
Overview and notices その他概要・特記事項 | | Building confirmation number: H24 confirmation Ken'nishi Review large 02,515 No. (2012 December 20), Kansai Electric Power Co., Inc. Osaka Gas Co., Ltd. Public water supply and sewerage systems 建築確認番号:H24確認建西評大02515号(平成24年12月20日付)、関西電力 大阪ガス 公共上下水道 |
Company profile 会社概要 | | [Advertiser] <Seller> Minister of Land, Infrastructure and Transport (13) No. 000982 PanaHome Co., Ltd. Osaka Branch Yubinbango560-0083 Toyonaka, Osaka Shinsenrinishi cho 1-1-4 [Seller] PanaHome Co., Ltd. [Sale] PanaHome Corporation (seller) 【広告主】<売主>国土交通大臣(13)第000982号パナホーム(株)大阪支社〒560-0083 大阪府豊中市新千里西町1-1-4【売主】パナホーム株式会社【販売】パナホーム株式会社(売主) |