New Homes » Kansai » Osaka prefecture » Toyonaka


Toyonaka, Osaka
Subway Midosuji "Esaka" walk 18 minutes
Property name
eMIRAIE Esaka west ~ Herb Court ~
Price
13 million yen ~ 21.5 million yen
Building coverage, floor area ratio
Kenpei rate: 60% ・ 70%, Volume ratio: 200%
Sales compartment
21 compartment
Total number of compartments
21 compartment
Land area
65.01 sq m ~ 90.12 sq m (19.66 tsubo ~ 27.26 tsubo) (measured)
Driveway burden-road
Road width: 4.7m, Asphaltic pavement
Land situation
Not construction
Construction completion time
2013/5/30
Address
Osaka Toyonaka Honanchohigashi 2-1-24
Traffic
Subway Midosuji "Esaka" walk 18 minutes
Hankyu Takarazuka Line "Shonai" walk 15 minutes
Related links
[Related Sites of this company]
Contact
TEL: 0800-603-3457 [Toll free] mobile phone ・ Also available from PHS
Caller ID is not notified
Please contact the "saw SUUMO (Sumo)"
If it does not lead, If the real estate company
Event information
Model house (Please be sure to ask in advance) schedule / During the public time / 10:00 ~ 20:00
Most price range
16 million yen (5 compartment)
Land of the right form
Ownership
Building condition
With
Time delivery
Consultation
Land category
Residential land
Use district
Semi-industrial
Other limitations
Scenic zone
Overview and notices
Facilities: Public Water Supply, This sewage, City gas
Company profile
<Seller> governor of Osaka (2) No. 050499 (Ltd.) Urban planning Yubinbango564-0052 Suita, Osaka Prefecture Hiroshiba cho 12-25


Other

Other. Make the meeting of the plan at our office. We will let you dream of your family, The architect of the exclusive, We do a variety of suggestions. It is also equipped with a children's corner and nursing room.
Make the meeting of the plan at our office. We will let you dream of your family, The architect of the exclusive, We do a variety of suggestions. It is also equipped with a children's corner and nursing room.

Local land photo

Local land photo. 21 House of the city's open enough feeling was born. Because the front of the local eyes have become elementary school, Has become a happy living environment is also to go to school every day for children.
21 House of the city's open enough feeling was born. Because the front of the local eyes have become elementary school, Has become a happy living environment is also to go to school every day for children.

Building plan example (introspection photo)

Building plan example (introspection photo). The kitchen next to was provided with a mini basin. It will also be the habit of hand washing of children, It is Easy morning of preparation. Cute is a basin that is a combination of ball-shaped basin and mosaic tiles.
The kitchen next to was provided with a mini basin. It will also be the habit of hand washing of children, It is Easy morning of preparation. Cute is a basin that is a combination of ball-shaped basin and mosaic tiles.

Building plan example (introspection photo). Holiday is try to also eat in the herbal tea in a wide balcony that was constructed a wood deck? , I enjoy the pool for children is also on the balcony.
Holiday is try to also eat in the herbal tea in a wide balcony that was constructed a wood deck? , I enjoy the pool for children is also on the balcony.

Building plan example (introspection photo). About 20 Pledge of spacious LDK. Show have been made the beams and columns to accent. Since it together in muted colors, Also the entire room out warm, It becomes intimate LDK.
About 20 Pledge of spacious LDK. Show have been made the beams and columns to accent. Since it together in muted colors, Also the entire room out warm, It becomes intimate LDK.

Model house photo

Model house photo. Families can live freely in the living room bathed in soft light. Do not create together a house of only one in the world in the herb scented town?
Families can live freely in the living room bathed in soft light. Do not create together a house of only one in the world in the herb scented town?

Building plan example (introspection photo)

Building plan example (introspection photo). Overall LDK space that has been unified in the natural tone. Since it established a cabinet everywhere, And enjoy and Reoauto small items, There are a lot of tricks to enjoy the day-to-day.
Overall LDK space that has been unified in the natural tone. Since it established a cabinet everywhere, And enjoy and Reoauto small items, There are a lot of tricks to enjoy the day-to-day.

Building plan example (introspection photo). Kitchen like aligned with warm wood tone, such as a cafe. Since turned counter, It overlooks the living can cook, You can ask also how the children.
Kitchen like aligned with warm wood tone, such as a cafe. Since turned counter, It overlooks the living can cook, You can ask also how the children.

Building plan example (introspection photo). A spacious salon opened the entrance door. Since the stroller is put in not folded, It is also useful when you go out. Storage of the wall is also a large capacity.
A spacious salon opened the entrance door. Since the stroller is put in not folded, It is also useful when you go out. Storage of the wall is also a large capacity.

The entire compartment Figure

The entire compartment Figure. eMIRAIE Esaka west  ~  Herb Court  ~  Street name, All mansion the symbol tree, It becomes a green fragrant subdivision was as standard a variety of herbs in the flower bed space.
eMIRAIE Esaka west ~ Herb Court ~ Street name, All mansion the symbol tree, It becomes a green fragrant subdivision was as standard a variety of herbs in the flower bed space.

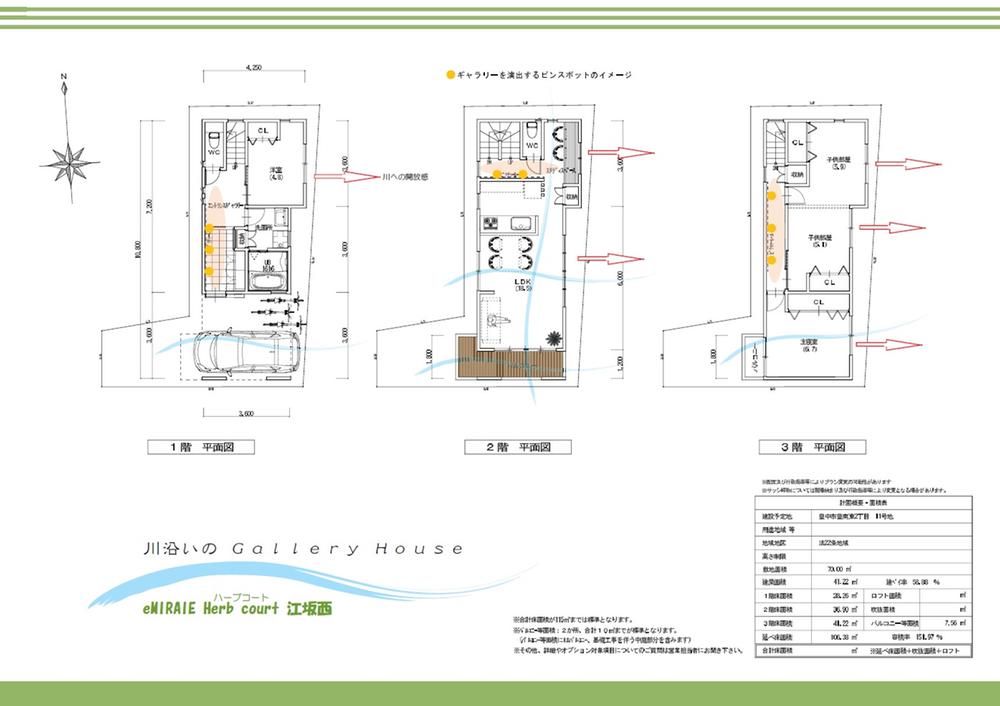
Building plan example (floor plan)
Building plan example (floor plan)

Building plan example (floor plan)
Building plan example (floor plan)

Building plan example (floor plan)
Building plan example (floor plan)

Model house photo
Model house photo

Building plan example (introspection photo)
Building plan example (introspection photo)

Building plan example (introspection photo)
Building plan example (introspection photo)

Building plan example (introspection photo)
Building plan example (introspection photo)

Construction completion expected view
Construction completion expected view

Local photos, including front road
Local photos, including front road

Park

park. Until amenities Esaka 160m  [2-minute walk] A lush park is just a short. In the sense almost like if this distance garden, Also play freely every day children.
Until amenities Esaka 160m [2-minute walk] A lush park is just a short. In the sense almost like if this distance garden, Also play freely every day children.

Primary school

Primary school. Toyonaka Municipal Takagawa to elementary school 80m  [1-minute walk] Elementary school in front of the local eye. Worry Mom school anxious because even a short leg of the child if this distance.
Toyonaka Municipal Takagawa to elementary school 80m [1-minute walk] Elementary school in front of the local eye. Worry Mom school anxious because even a short leg of the child if this distance.

Home center

Home center. 1350m to Tokyu Hands Esaka shop  [Walk 17 minutes] Tokyu Hands which ones happy has a lot of uniform and from household goods to stationery. I am happy immediately go to the house.
1350m to Tokyu Hands Esaka shop [Walk 17 minutes] Tokyu Hands which ones happy has a lot of uniform and from household goods to stationery. I am happy immediately go to the house.

Supermarket

Supermarket. 391m to business super Honan shop  [A 5-minute walk] Is that day-to-day often use is to buy a large capacity here. It is also helpful to carry if this distance can buy a lot.
391m to business super Honan shop [A 5-minute walk] Is that day-to-day often use is to buy a large capacity here. It is also helpful to carry if this distance can buy a lot.

Local guide map

Local guide map. Subway Midosuji Line ・ Walk from Esaka Station 18 minutes of subdivision. In front of the eyes there is a primary school, Also located in nearby, such as nursery school. Subdivision around is becoming a very quiet town.
Subway Midosuji Line ・ Walk from Esaka Station 18 minutes of subdivision. In front of the eyes there is a primary school, Also located in nearby, such as nursery school. Subdivision around is becoming a very quiet town.

Home center

Home center. Daiki to Esaka shop 160m  [2-minute walk] How about do-it-yourself holiday once in a while? .
Daiki to Esaka shop 160m [2-minute walk] How about do-it-yourself holiday once in a while? .

Kindergarten ・ Nursery

kindergarten ・ Nursery. Osaka College of Music 275m until included music kindergarten  [A 4-minute walk] Kindergarten is also near here. I am happy if this distance every day of the drop off and pick up.
Osaka College of Music 275m until included music kindergarten [A 4-minute walk] Kindergarten is also near here. I am happy if this distance every day of the drop off and pick up.

Hospital

Hospital. Sakamoto 312m to the hospital (emergency designated hospital)  [A 4-minute walk] It is encouraging in case of emergency when there is a hospital just a short walk to the steep poor health.
Sakamoto 312m to the hospital (emergency designated hospital) [A 4-minute walk] It is encouraging in case of emergency when there is a hospital just a short walk to the steep poor health.

Drug store

Drug store. Drugstore server 610m to Suita Enoki shop  [8 min. Walk] I am happy to be able to bulk buying in heavy grocery also drugstore, such as detergent. It is a distance of about 3 minutes and riding a bicycle.
Drugstore server 610m to Suita Enoki shop [8 min. Walk] I am happy to be able to bulk buying in heavy grocery also drugstore, such as detergent. It is a distance of about 3 minutes and riding a bicycle.

Junior high school

Junior high school. Toyonaka 814m to stand twelfth junior high school  [Walk 11 minutes] The "shining creation of the school" as a theme, Enhancement of educational content, It aims to enhance the educational environment, The school with the aim to foster human nature rich student.
Toyonaka 814m to stand twelfth junior high school [Walk 11 minutes] The "shining creation of the school" as a theme, Enhancement of educational content, It aims to enhance the educational environment, The school with the aim to foster human nature rich student.



Location