New Homes » Kansai » Osaka prefecture » Toyonaka
 
| | Toyonaka, Osaka 大阪府豊中市 |
| Osaka Monorail Main Line "Shibahara" walk 9 minutes 大阪モノレール本線「柴原」歩9分 |
| A quiet residential area, LDK15 tatami mats or more, 2 along the line more accessible, Parking two Allowed, LDK18 tatami mats or more, Toilet 2 places, System kitchen, Bathroom Dryer, Around traffic fewer, Shaping land, Face-to-face kitchen, Bas 閑静な住宅地、LDK15畳以上、2沿線以上利用可、駐車2台可、LDK18畳以上、トイレ2ヶ所、システムキッチン、浴室乾燥機、周辺交通量少なめ、整形地、対面式キッチン、バ |
| ◆ New 3 was subdivisions start. ◆ Hankyu line, Monorail line 2WAY access Available of ◆ It is a quiet residential area a kind of low-rise area. A quiet residential area, LDK15 tatami mats or more, 2 along the line more accessible, Parking two Allowed, LDK18 tatami mats or more, Toilet 2 places, System kitchen, Bathroom Dryer, Around traffic fewer, Shaping land, Face-to-face kitchen, Barrier-free, Bathroom 1 tsubo or more, 2-story, South balcony, Zenshitsuminami direction, All living room flooring, Dish washing dryer, City gas ◆新規3区画分譲開始しました。◆阪急線、モノレール線の2WAYアクセス利用可◆一種低層地域の閑静な住宅地です。閑静な住宅地、LDK15畳以上、2沿線以上利用可、駐車2台可、LDK18畳以上、トイレ2ヶ所、システムキッチン、浴室乾燥機、周辺交通量少なめ、整形地、対面式キッチン、バリアフリー、浴室1坪以上、2階建、南面バルコニー、全室南向き、全居室フローリング、食器洗乾燥機、都市ガス |
Features pickup 特徴ピックアップ | | Parking two Allowed / 2 along the line more accessible / LDK18 tatami mats or more / System kitchen / Bathroom Dryer / A quiet residential area / LDK15 tatami mats or more / Around traffic fewer / Shaping land / Face-to-face kitchen / Barrier-free / Toilet 2 places / Bathroom 1 tsubo or more / 2-story / South balcony / Zenshitsuminami direction / All living room flooring / Dish washing dryer / City gas 駐車2台可 /2沿線以上利用可 /LDK18畳以上 /システムキッチン /浴室乾燥機 /閑静な住宅地 /LDK15畳以上 /周辺交通量少なめ /整形地 /対面式キッチン /バリアフリー /トイレ2ヶ所 /浴室1坪以上 /2階建 /南面バルコニー /全室南向き /全居室フローリング /食器洗乾燥機 /都市ガス | Price 価格 | | 38,800,000 yen 3880万円 | Floor plan 間取り | | 4LDK 4LDK | Units sold 販売戸数 | | 1 units 1戸 | Total units 総戸数 | | 3 units 3戸 | Land area 土地面積 | | 92.37 sq m 92.37m2 | Building area 建物面積 | | 131.08 sq m 131.08m2 | Driveway burden-road 私道負担・道路 | | 3.26 sq m , East 4m width 3.26m2、東4m幅 | Completion date 完成時期(築年月) | | November 2013 2013年11月 | Address 住所 | | Osaka Toyonaka Toneyama 4 大阪府豊中市刀根山4 | Traffic 交通 | | Osaka Monorail Main Line "Shibahara" walk 9 minutes Hankyu Takarazuka Line "Hotarugaike" walk 12 minutes Hankyu Takarazuka Line "Toyonaka" walk 18 minutes 大阪モノレール本線「柴原」歩9分 阪急宝塚線「蛍池」歩12分 阪急宝塚線「豊中」歩18分
| Related links 関連リンク | | [Related Sites of this company] 【この会社の関連サイト】 | Person in charge 担当者より | | Rep Hirai 担当者平居 | Contact お問い合せ先 | | (Yes) platform TEL: 0800-808-7070 [Toll free] mobile phone ・ Also available from PHS Caller ID is not notified Please contact the "saw SUUMO (Sumo)" If it does not lead, If the real estate company (有)プラットホームTEL:0800-808-7070【通話料無料】携帯電話・PHSからもご利用いただけます 発信者番号は通知されません 「SUUMO(スーモ)を見た」と問い合わせください つながらない方、不動産会社の方は
| Building coverage, floor area ratio 建ぺい率・容積率 | | 60% ・ 150% 60%・150% | Time residents 入居時期 | | Consultation 相談 | Land of the right form 土地の権利形態 | | Ownership 所有権 | Structure and method of construction 構造・工法 | | Wooden 2-story (framing method) 木造2階建(軸組工法) | Use district 用途地域 | | One low-rise 1種低層 | Overview and notices その他概要・特記事項 | | Contact: Hirai, Facilities: Public Water Supply, This sewage, City gas, Building confirmation number: H25-0000332, Parking: Garage 担当者:平居、設備:公営水道、本下水、都市ガス、建築確認番号:H25-0000332、駐車場:車庫 | Company profile 会社概要 | | <Mediation> governor of Osaka (2) No. 050136 (with) platform Yubinbango567-0881 Ibaraki, Osaka Kaminakajo 2-2-25-105 <仲介>大阪府知事(2)第050136号(有)プラットホーム〒567-0881 大阪府茨木市上中条2-2-25-105 |
 Local appearance photo
現地外観写真
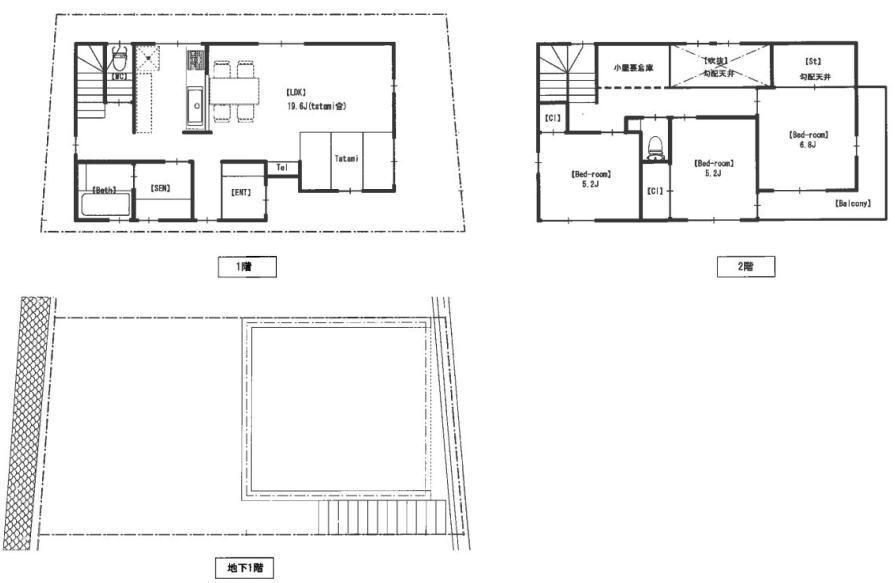
Floor plan間取り図  38,800,000 yen, 4LDK, Land area 92.37 sq m , Building area 131.08 sq m
3880万円、4LDK、土地面積92.37m2、建物面積131.08m2
The entire compartment Figure全体区画図  Compartment figure
区画図
 Local appearance photo
現地外観写真
 Living
リビング
 Bathroom
浴室
 Kitchen
キッチン
 Entrance
玄関
 Wash basin, toilet
洗面台・洗面所
 Receipt
収納
 Construction ・ Construction method ・ specification
構造・工法・仕様
 Garden
庭
 Parking lot
駐車場
 Other introspection
その他内観
 Sale already cityscape photo
分譲済街並み写真
Model house photoモデルハウス写真  Model house
モデルハウス
 Hill photo
高台写真
 Cityscape Rendering
街並完成予想図
 Local appearance photo
現地外観写真
 Entrance
玄関
 Construction ・ Construction method ・ specification
構造・工法・仕様
Location
|