2013July
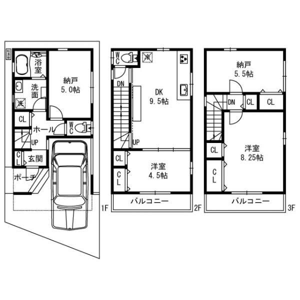
24,800,000 yen, 4DK, 90.03 sq m
New Homes » Kansai » Osaka prefecture » Toyonaka
 
| | Toyonaka, Osaka 大阪府豊中市 |
| Northern Osaka Express "Momoyamadai" 10 minutes Kumanochonishi walk 3 minutes by bus 北大阪急行「桃山台」バス10分熊野町西歩3分 |
| Facing south ・ Front road width about 5.0 meters 南向き・前面道路幅員約5.0メートル |
Features pickup 特徴ピックアップ | | System kitchen / Washbasin with shower / Toilet 2 places / City gas システムキッチン /シャワー付洗面台 /トイレ2ヶ所 /都市ガス | Price 価格 | | 24,800,000 yen 2480万円 | Floor plan 間取り | | 4DK 4DK | Units sold 販売戸数 | | 1 units 1戸 | Land area 土地面積 | | 49.56 sq m (registration) 49.56m2(登記) | Building area 建物面積 | | 90.03 sq m (measured) 90.03m2(実測) | Driveway burden-road 私道負担・道路 | | Nothing, South 5m width (contact the road width 5.2m) 無、南5m幅(接道幅5.2m) | Completion date 完成時期(築年月) | | July 2013 2013年7月 | Address 住所 | | Toyonaka, Osaka Kumano-cho 4 大阪府豊中市熊野町4 | Traffic 交通 | | Northern Osaka Express "Momoyamadai" 10 minutes Kumanochonishi walk 3 minutes by bus Hankyu Takarazuka Line "Toyonaka" 15 minutes Kumanochonishi walk 3 minutes by bus 北大阪急行「桃山台」バス10分熊野町西歩3分 阪急宝塚線「豊中」バス15分熊野町西歩3分
| Related links 関連リンク | | [Related Sites of this company] 【この会社の関連サイト】 | Person in charge 担当者より | | Person in charge of Yoshida 担当者吉田 | Contact お問い合せ先 | | TEL: 0800-603-0470 [Toll free] mobile phone ・ Also available from PHS Caller ID is not notified Please contact the "saw SUUMO (Sumo)" If it does not lead, If the real estate company TEL:0800-603-0470【通話料無料】携帯電話・PHSからもご利用いただけます 発信者番号は通知されません 「SUUMO(スーモ)を見た」と問い合わせください つながらない方、不動産会社の方は
| Building coverage, floor area ratio 建ぺい率・容積率 | | 60% ・ 200% 60%・200% | Time residents 入居時期 | | Immediate available 即入居可 | Land of the right form 土地の権利形態 | | Ownership 所有権 | Structure and method of construction 構造・工法 | | Wooden 2-story 木造2階建 | Use district 用途地域 | | One middle and high 1種中高 | Overview and notices その他概要・特記事項 | | Contact: Yoshida, Building confirmation number: J12-20900, Parking: car space 担当者:吉田、建築確認番号:J12-20900、駐車場:カースペース | Company profile 会社概要 | | <Mediation> Minister of Land, Infrastructure and Transport (10) Article 002608 No. Nippon Housing Distribution Co., Ltd. Toyonaka store Yubinbango560-0023 Toyonaka, Osaka Okakamino cho 4-3-2 Yoshioka building first floor <仲介>国土交通大臣(10)第002608号日本住宅流通(株)豊中店〒560-0023 大阪府豊中市岡上の町4-3―2 吉岡ビル1階 |
 Local appearance photo
現地外観写真
 Local appearance photo
現地外観写真
 Local appearance photo
現地外観写真
Floor plan間取り図  24,800,000 yen, 4DK, Land area 49.56 sq m , Building area 90.03 sq m
2480万円、4DK、土地面積49.56m2、建物面積90.03m2
 Local appearance photo
現地外観写真
 Living
リビング
 Bathroom
浴室
 Kitchen
キッチン
 Non-living room
リビング以外の居室
 Wash basin, toilet
洗面台・洗面所
 Toilet
トイレ
 Other
その他
 Local appearance photo
現地外観写真
 Local appearance photo
現地外観写真
Location
|