New Homes » Kansai » Osaka prefecture » Toyonaka
 
| | Toyonaka, Osaka 大阪府豊中市 |
| Hankyu Takarazuka Line "Toyonaka" walk 7 minutes 阪急宝塚線「豊中」歩7分 |
| ■ Hankyu Takarazuka Line "Toyonaka" a 7-minute walk from the station ■ The remaining 1 compartment! ~ With building conditions ~ There building reference plan! ・ Floor plan can be changed! ・ Site area more than 44 square meters! ■阪急宝塚線「豊中」駅より徒歩7分■残1区画! ~ 建築条件付 ~ 建物参考プランございます!・間取り変更可能です!・敷地面積44坪以上! |
Features pickup 特徴ピックアップ | | City gas 都市ガス | Price 価格 | | 26 million yen 2600万円 | Building coverage, floor area ratio 建ぺい率・容積率 | | 60% ・ 200% 60%・200% | Sales compartment 販売区画数 | | 1 compartment 1区画 | Total number of compartments 総区画数 | | 1 compartment 1区画 | Land area 土地面積 | | 146.71 sq m (registration) 146.71m2(登記) | Driveway burden-road 私道負担・道路 | | 2.25 sq m , Southeast 4m width 2.25m2、南東4m幅 | Land situation 土地状況 | | Vacant lot 更地 | Address 住所 | | Toyonaka, Osaka Honcho 4 大阪府豊中市本町4 | Traffic 交通 | | Hankyu Takarazuka Line "Toyonaka" walk 7 minutes 阪急宝塚線「豊中」歩7分
| Related links 関連リンク | | [Related Sites of this company] 【この会社の関連サイト】 | Contact お問い合せ先 | | TEL: 0800-603-9325 [Toll free] mobile phone ・ Also available from PHS Caller ID is not notified Please contact the "saw SUUMO (Sumo)" If it does not lead, If the real estate company TEL:0800-603-9325【通話料無料】携帯電話・PHSからもご利用いただけます 発信者番号は通知されません 「SUUMO(スーモ)を見た」と問い合わせください つながらない方、不動産会社の方は
| Land of the right form 土地の権利形態 | | Ownership 所有権 | Building condition 建築条件 | | With 付 | Time delivery 引き渡し時期 | | Immediate delivery allowed 即引渡し可 | Land category 地目 | | Residential land 宅地 | Use district 用途地域 | | One middle and high 1種中高 | Overview and notices その他概要・特記事項 | | Facilities: Public Water Supply, This sewage, City gas 設備:公営水道、本下水、都市ガス | Company profile 会社概要 | | <Mediation> governor of Osaka (2) No. 054110 (stock) Yamato Corporation Yubinbango564-0001 Suita, Osaka Prefecture Kishibekita 5-12-15 <仲介>大阪府知事(2)第054110号(株)大和コーポレーション〒564-0001 大阪府吹田市岸部北5-12-15 |
 Local land photo
現地土地写真
 Local land photo
現地土地写真
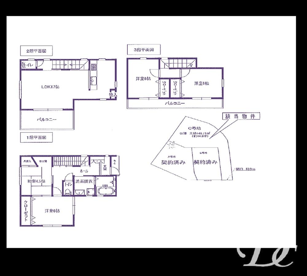
Compartment view + building plan example区画図+建物プラン例  Building plan example, Land price 26 million yen, Land area 146.71 sq m , Building price 17,640,000 yen, Building area 101.11 sq m
建物プラン例、土地価格2600万円、土地面積146.71m2、建物価格1764万円、建物面積101.11m2
 Local land photo
現地土地写真
 Local photos, including front road
前面道路含む現地写真
Shopping centreショッピングセンター  Until Etore Toyonaka 865m
エトレとよなかまで865m
 Local photos, including front road
前面道路含む現地写真
Supermarketスーパー  Daiei Gourmet City Toyonaka until Station shop 658m
ダイエーグルメシティ豊中駅前店まで658m
Junior high school中学校  Toyonaka 1161m to stand thirteenth junior high school
豊中市立第十三中学校まで1161m
Primary school小学校  Toyonaka Municipal Oike to elementary school 639m
豊中市立大池小学校まで639m
Location
|