New Homes » Kansai » Osaka prefecture » Toyonaka
 
| | Toyonaka, Osaka 大阪府豊中市 |
| Hankyu Takarazuka Line "Toyonaka" walk 19 minutes 阪急宝塚線「豊中」歩19分 |
| Year Available, Parking two Allowed, 2 along the line more accessible, Super close, System kitchen, Bathroom Dryer, All room storage, A quiet residential area, LDK15 tatami mats or more, Around traffic fewer, Or more before road 6m, 年内入居可、駐車2台可、2沿線以上利用可、スーパーが近い、システムキッチン、浴室乾燥機、全居室収納、閑静な住宅地、LDK15畳以上、周辺交通量少なめ、前道6m以上、 |
| Year Available, Parking two Allowed, 2 along the line more accessible, Super close, System kitchen, Bathroom Dryer, All room storage, A quiet residential area, LDK15 tatami mats or more, Around traffic fewer, Or more before road 6m, Shaping land, Face-to-face kitchen, Toilet 2 places, The window in the bathroom, TV monitor interphone, Leafy residential area, All living room flooring, Three-story or more, Living stairs, City gas 年内入居可、駐車2台可、2沿線以上利用可、スーパーが近い、システムキッチン、浴室乾燥機、全居室収納、閑静な住宅地、LDK15畳以上、周辺交通量少なめ、前道6m以上、整形地、対面式キッチン、トイレ2ヶ所、浴室に窓、TVモニタ付インターホン、緑豊かな住宅地、全居室フローリング、3階建以上、リビング階段、都市ガス |
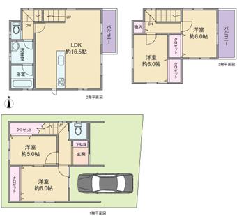
Features pickup 特徴ピックアップ | | Year Available / Parking two Allowed / 2 along the line more accessible / Super close / System kitchen / Bathroom Dryer / All room storage / A quiet residential area / LDK15 tatami mats or more / Around traffic fewer / Or more before road 6m / Shaping land / Face-to-face kitchen / Toilet 2 places / The window in the bathroom / TV monitor interphone / Leafy residential area / All living room flooring / Three-story or more / Living stairs / City gas 年内入居可 /駐車2台可 /2沿線以上利用可 /スーパーが近い /システムキッチン /浴室乾燥機 /全居室収納 /閑静な住宅地 /LDK15畳以上 /周辺交通量少なめ /前道6m以上 /整形地 /対面式キッチン /トイレ2ヶ所 /浴室に窓 /TVモニタ付インターホン /緑豊かな住宅地 /全居室フローリング /3階建以上 /リビング階段 /都市ガス | Price 価格 | | 35,500,000 yen 3550万円 | Floor plan 間取り | | 4LDK 4LDK | Units sold 販売戸数 | | 1 units 1戸 | Land area 土地面積 | | 74.39 sq m (registration) 74.39m2(登記) | Building area 建物面積 | | 97.6 sq m 97.6m2 | Driveway burden-road 私道負担・道路 | | Nothing, East 6m width (contact the road width 6.8m) 無、東6m幅(接道幅6.8m) | Completion date 完成時期(築年月) | | December 2013 2013年12月 | Address 住所 | | Toyonaka, Osaka Sakurano cho 2 大阪府豊中市桜の町2 | Traffic 交通 | | Hankyu Takarazuka Line "Toyonaka" walk 19 minutes Osaka Monorail Main Line "Shibahara" walk 9 minutes 阪急宝塚線「豊中」歩19分 大阪モノレール本線「柴原」歩9分
| Related links 関連リンク | | [Related Sites of this company] 【この会社の関連サイト】 | Contact お問い合せ先 | | TEL: 0800-603-2074 [Toll free] mobile phone ・ Also available from PHS Caller ID is not notified Please contact the "saw SUUMO (Sumo)" If it does not lead, If the real estate company TEL:0800-603-2074【通話料無料】携帯電話・PHSからもご利用いただけます 発信者番号は通知されません 「SUUMO(スーモ)を見た」と問い合わせください つながらない方、不動産会社の方は
| Building coverage, floor area ratio 建ぺい率・容積率 | | 60% ・ 200% 60%・200% | Time residents 入居時期 | | Consultation 相談 | Land of the right form 土地の権利形態 | | Ownership 所有権 | Structure and method of construction 構造・工法 | | Wooden three-story 木造3階建 | Use district 用途地域 | | One middle and high 1種中高 | Overview and notices その他概要・特記事項 | | Facilities: Public Water Supply, This sewage, City gas, Building confirmation number: No. J13-00680, Parking: Garage 設備:公営水道、本下水、都市ガス、建築確認番号:第J13-00680号、駐車場:車庫 | Company profile 会社概要 | | <Mediation> Minister of Land, Infrastructure and Transport (3) Will Real Estate Sales Toyonaka office No. 006447 (Ltd.) Will Yubinbango560-0022 Toyonaka, Osaka Kitasakurazuka 2-1-10 <仲介>国土交通大臣(3)第006447号ウィル不動産販売 豊中営業所(株)ウィル〒560-0022 大阪府豊中市北桜塚2-1-10 |
Floor plan間取り図  35,500,000 yen, 4LDK, Land area 74.39 sq m , Building area 97.6 sq m
3550万円、4LDK、土地面積74.39m2、建物面積97.6m2
 Local appearance photo
現地外観写真
 Local photos, including front road
前面道路含む現地写真
 Local photos, including front road
前面道路含む現地写真
Location
|