New Homes » Kansai » Osaka prefecture » Toyonaka
 
| | Toyonaka, Osaka 大阪府豊中市 |
| Osaka Monorail Main Line "Shibahara" walk 13 minutes 大阪モノレール本線「柴原」歩13分 |
| ~ Popular Hokusetsu, Imposing appearance in Toyonaka! ! Please have a look once, so we have completed ~ ■ Performance evaluation report acquired properties of the peace of mind! ! ~ 人気の北摂、豊中市に堂々登場!!完成しておりますので是非一度ご覧下さい ~ ■安心の性能評価書取得物件!! |
| ■ Is the second installment appeared in Toyonaka Miyayama cho! ! ■ Seismic grade highest grade acquisition! ! ■ All room 6 quires more! ! ■ The best the south side of the garden to gardening! ! ■豊中市宮山町に第2弾が登場です!!■耐震等級最高等級取得!!■全居室6帖以上!!■南側の庭はガーデニングに最適!! |
Features pickup 特徴ピックアップ | | Construction housing performance with evaluation / Design house performance with evaluation / Corresponding to the flat-35S / Pre-ground survey / Vibration Control ・ Seismic isolation ・ Earthquake resistant / Seismic fit / Year Available / 2 along the line more accessible / See the mountain / Summer resort / A quiet residential area / LDK15 tatami mats or more / Around traffic fewer / Japanese-style room / Shaping land / Washbasin with shower / Face-to-face kitchen / Toilet 2 places / Bathroom 1 tsubo or more / 2-story / South balcony / Double-glazing / Warm water washing toilet seat / Nantei / Underfloor Storage / The window in the bathroom / TV monitor interphone / Leafy residential area / Ventilation good / All room 6 tatami mats or more / City gas 建設住宅性能評価付 /設計住宅性能評価付 /フラット35Sに対応 /地盤調査済 /制震・免震・耐震 /耐震適合 /年内入居可 /2沿線以上利用可 /山が見える /避暑地 /閑静な住宅地 /LDK15畳以上 /周辺交通量少なめ /和室 /整形地 /シャワー付洗面台 /対面式キッチン /トイレ2ヶ所 /浴室1坪以上 /2階建 /南面バルコニー /複層ガラス /温水洗浄便座 /南庭 /床下収納 /浴室に窓 /TVモニタ付インターホン /緑豊かな住宅地 /通風良好 /全居室6畳以上 /都市ガス | Event information イベント情報 | | Open House (Please be sure to ask in advance) schedule / Every Saturday, Sunday and public holidays time / 10:00 ~ 17:00 オープンハウス(事前に必ずお問い合わせください)日程/毎週土日祝時間/10:00 ~ 17:00 | Property name 物件名 | | Heartful-Town Toyonaka Miyayama cho II Heartful-Town 豊中宮山町II | Price 価格 | | 33,800,000 yen 3380万円 | Floor plan 間取り | | 4LDK 4LDK | Units sold 販売戸数 | | 1 units 1戸 | Total units 総戸数 | | 1 units 1戸 | Land area 土地面積 | | 110.5 sq m (registration) 110.5m2(登記) | Building area 建物面積 | | 96.26 sq m (measured) 96.26m2(実測) | Driveway burden-road 私道負担・道路 | | Road width: 4.5m, Asphaltic pavement 道路幅:4.5m、アスファルト舗装 | Completion date 完成時期(築年月) | | 2013 end of September 2013年9月末 | Address 住所 | | Toyonaka, Osaka Miyayama cho 2 大阪府豊中市宮山町2 | Traffic 交通 | | Osaka Monorail Main Line "Shibahara" walk 13 minutes Hankyū Minoo Line "Sakurai" walk 16 minutes 大阪モノレール本線「柴原」歩13分 阪急箕面線「桜井」歩16分
| Related links 関連リンク | | [Related Sites of this company] 【この会社の関連サイト】 | Contact お問い合せ先 | | (Ltd.) Idasangyo Suita office TEL: 0800-805-4023 [Toll free] mobile phone ・ Also available from PHS Caller ID is not notified Please contact the "saw SUUMO (Sumo)" If it does not lead, If the real estate company (株)飯田産業吹田営業所TEL:0800-805-4023【通話料無料】携帯電話・PHSからもご利用いただけます 発信者番号は通知されません 「SUUMO(スーモ)を見た」と問い合わせください つながらない方、不動産会社の方は
| Building coverage, floor area ratio 建ぺい率・容積率 | | Kenpei rate: 60%, Volume ratio: 150% 建ペい率:60%、容積率:150% | Time residents 入居時期 | | Immediate available 即入居可 | Land of the right form 土地の権利形態 | | Ownership 所有権 | Structure and method of construction 構造・工法 | | Wooden 2-story (panel method) 木造2階建(パネル工法) | Construction 施工 | | CO., LTD Idasangyo 株式会社 飯田産業 | Use district 用途地域 | | One low-rise 1種低層 | Land category 地目 | | Residential land 宅地 | Other limitations その他制限事項 | | Regulations have by the Law for the Protection of Cultural Properties, Regulations have by the Landscape Act, Regulations have by the Aviation Law, Height district, Height ceiling Yes, Site area minimum Yes, Shade limit Yes 文化財保護法による規制有、景観法による規制有、航空法による規制有、高度地区、高さ最高限度有、敷地面積最低限度有、日影制限有 | Overview and notices その他概要・特記事項 | | Building confirmation number: No. K13-0285 建築確認番号:第K13-0285号 | Company profile 会社概要 | | <Seller> Minister of Land, Infrastructure and Transport (8) No. 003306 (Ltd.) Idasangyo Suita office Yubinbango564-0062 Suita, Osaka Prefecture Tarumi-cho 3-19-25 <売主>国土交通大臣(8)第003306号(株)飯田産業吹田営業所〒564-0062 大阪府吹田市垂水町3-19-25 |
Local appearance photo現地外観写真  Method while simple design many of ingenuity! ! Earthquake in the original method of Idasangyo ・ Wind highest grade acquisition
シンプルなデザインながらも工法は工夫の数々!!飯田産業のオリジナル工法で耐震・耐風最高等級取得
 Holiday the whole family in making memories ・ ・ ・ Livable town of child-rearing family
休日は家族みんなで思い出作り・・・子育てファミリーの暮らしやすい街
 It drifts somewhere sense of security just because a quiet residential area.
閑静な住宅地だからこそどこか安心感が漂いますね。
Livingリビング  Keep an eye from the children! ! Such Mom, But it is peace of mind and have to play at a toy in the Japanese-style room adjacent to LDK
お子様から目が離せない!!そんなママは、LDKに隣接した和室でおもちゃを置いて遊ばせていると安心ですよね
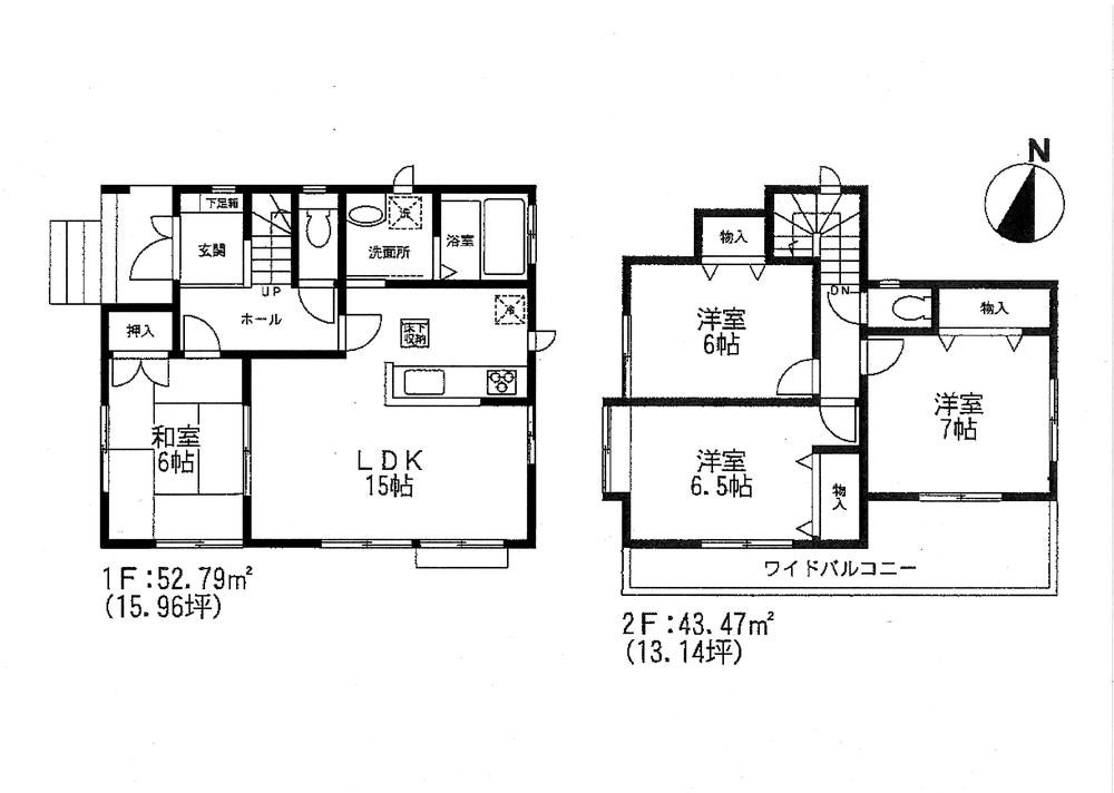
Floor plan間取り図  Price 33,800,000 yen, 4LDK, Land area 110.5 sq m , Building area 96.26 sq m
価格3380万円、4LDK、土地面積110.5m2、建物面積96.26m2
Non-living roomリビング以外の居室  Is try to master bedroom to the bright rooms of it is pleasant refreshing morning awakening of the south-facing?
南向きの明るいお部屋は気持ちいいですね清々しい朝の目覚めに主寝室にしてみては?
Kitchenキッチン  You can enjoy help time with or asked to carry children from over the counter of the finished dishes
出来上がったお料理をカウンター越しから子供に運んでもらったりとお手伝いタイムが楽しめます
Bathroom浴室  Space to heal daily fatigue, I think is an important space in Japanese. Served in 1 square meters of so spread
毎日の疲れを癒す空間、日本人には大切な空間ですよね。そう思い広めの1坪でご用意しています
Supermarketスーパー  1336m to Hankyu Oasis Mino shop
阪急オアシス箕面店まで1336m
Junior high school中学校  Toyonaka 181m to stand second junior high school
豊中市立第二中学校まで181m
Primary school小学校  Toyonaka 522m up to municipal Sakurai valley elementary school
豊中市立桜井谷小学校まで522m
Construction ・ Construction method ・ specification構造・工法・仕様  Using the original load-bearing wall or the like of patented, It supports a comfortable life in the peace of mind.
特許取得のオリジナル耐力壁等を使用し、安心で快適な暮らしをサポートします。
Garden庭  South garden in Osaka, But it is valuable or not, including the gardening that could not until now?
大阪での南側庭、貴重ですよね今まで出来なかったガーデニングを始めませんか?
Location
|