New Homes » Kansai » Osaka prefecture » Toyonaka
 
| | Toyonaka, Osaka 大阪府豊中市 |
| Northern Osaka Express "Momoyamadai" bus 11 minutes Asahigaoka estate before walk 2 minutes 北大阪急行「桃山台」バス11分旭が丘団地前歩2分 |
| ☆ New House (2014 end of January, scheduled to be completed) ☆ Parking two possible! ☆ Transportation 2 wayside available! ☆ South side is there is India River, Good per yang! ☆新築戸建て(平成26年1月末完成予定)☆駐車場2台可能!☆交通は2沿線利用可能!☆南側は天竺川が有り、陽当たり良好です! |
| Corresponding to the flat-35S, Seismic fit, Parking two Allowed, 2 along the line more accessible, See the mountain, Super close, It is close to the city, Facing south, System kitchen, Bathroom Dryer, Yang per good, All room storage, A quiet residential area, Around traffic fewerese-style room, Washbasin with shower, Face-to-face kitchen, 2 or more sides balcony, South balcony, Warm water washing toilet seat, Nantei, The window in the bathroom, Leafy residential area, Ventilation good, Good view, Dish washing dryer, Three-story or more, City gas, Flat terrain フラット35Sに対応、耐震適合、駐車2台可、2沿線以上利用可、山が見える、スーパーが近い、市街地が近い、南向き、システムキッチン、浴室乾燥機、陽当り良好、全居室収納、閑静な住宅地、周辺交通量少なめ、和室、シャワー付洗面台、対面式キッチン、2面以上バルコニー、南面バルコニー、温水洗浄便座、南庭、浴室に窓、緑豊かな住宅地、通風良好、眺望良好、食器洗乾燥機、3階建以上、都市ガス、平坦地 |
Features pickup 特徴ピックアップ | | Corresponding to the flat-35S / Seismic fit / Parking two Allowed / 2 along the line more accessible / See the mountain / Super close / It is close to the city / Facing south / System kitchen / Bathroom Dryer / Yang per good / All room storage / A quiet residential area / Around traffic fewer / Japanese-style room / Washbasin with shower / Face-to-face kitchen / 2 or more sides balcony / South balcony / Warm water washing toilet seat / Nantei / The window in the bathroom / Leafy residential area / Ventilation good / Good view / Dish washing dryer / Three-story or more / City gas / Flat terrain フラット35Sに対応 /耐震適合 /駐車2台可 /2沿線以上利用可 /山が見える /スーパーが近い /市街地が近い /南向き /システムキッチン /浴室乾燥機 /陽当り良好 /全居室収納 /閑静な住宅地 /周辺交通量少なめ /和室 /シャワー付洗面台 /対面式キッチン /2面以上バルコニー /南面バルコニー /温水洗浄便座 /南庭 /浴室に窓 /緑豊かな住宅地 /通風良好 /眺望良好 /食器洗乾燥機 /3階建以上 /都市ガス /平坦地 | Event information イベント情報 | | Local tours (Please be sure to ask in advance) schedule / Now open 現地見学会(事前に必ずお問い合わせください)日程/公開中 | Price 価格 | | 37.5 million yen 3750万円 | Floor plan 間取り | | 4LDK 4LDK | Units sold 販売戸数 | | 1 units 1戸 | Total units 総戸数 | | 2 units 2戸 | Land area 土地面積 | | 93.5 sq m (28.28 tsubo) (measured) 93.5m2(28.28坪)(実測) | Building area 建物面積 | | 92.34 sq m (27.93 tsubo) (measured) 92.34m2(27.93坪)(実測) | Driveway burden-road 私道負担・道路 | | Nothing, North 4m width 無、北4m幅 | Completion date 完成時期(築年月) | | January 2014 2014年1月 | Address 住所 | | Toyonaka, Osaka Kumano-cho 1 大阪府豊中市熊野町1 | Traffic 交通 | | Northern Osaka Express "Momoyamadai" bus 11 minutes Asahigaoka estate before walk 2 minutes Hankyu Takarazuka Line "Toyonaka" 10 minutes Asahigaoka park before walking 2 minutes by bus 北大阪急行「桃山台」バス11分旭が丘団地前歩2分 阪急宝塚線「豊中」バス10分旭が丘団地前歩2分
| Related links 関連リンク | | [Related Sites of this company] 【この会社の関連サイト】 | Person in charge 担当者より | | Person in charge of a lot Given Age: 40 Daigyokai experience: to cherish the trust relationship with the 22-year customer, We try to speedy response. We aim to become a friendly partner can consult with confidence whatever is on the house. Anything feel free to please consult. 担当者沢山 儀文年齢:40代業界経験:22年お客様との信頼関係を大切にし、スピーディーな対応を心がけております。住まいに関することなら何でも安心して相談できる親しみやすいパートナーになることを目指しております。何でも気軽にご相談ください。 | Contact お問い合せ先 | | TEL: 0800-603-1598 [Toll free] mobile phone ・ Also available from PHS Caller ID is not notified Please contact the "saw SUUMO (Sumo)" If it does not lead, If the real estate company TEL:0800-603-1598【通話料無料】携帯電話・PHSからもご利用いただけます 発信者番号は通知されません 「SUUMO(スーモ)を見た」と問い合わせください つながらない方、不動産会社の方は
| Building coverage, floor area ratio 建ぺい率・容積率 | | 60% ・ 200% 60%・200% | Time residents 入居時期 | | January 2014 2014年1月 | Land of the right form 土地の権利形態 | | Ownership 所有権 | Structure and method of construction 構造・工法 | | Wooden three-story 木造3階建 | Construction 施工 | | Vista housing (Ltd.) ビスタハウジング(株) | Use district 用途地域 | | One middle and high 1種中高 | Overview and notices その他概要・特記事項 | | Contact: lot Given, Facilities: Public Water Supply, This sewage, City gas, Building confirmation number: NK13-0629, Parking: Garage 担当者:沢山 儀文、設備:公営水道、本下水、都市ガス、建築確認番号:NK13-0629、駐車場:車庫 | Company profile 会社概要 | | <Mediation> governor of Osaka (6) No. 040391 Kinki ・ Estate Co., Ltd. Yubinbango560-0085 Toyonaka, Osaka Kaminitta 3-1-9 studio Chisato second floor <仲介>大阪府知事(6)第040391号キンキ・エステート(株)〒560-0085 大阪府豊中市上新田3-1-9 スタジオ千里2階 |
 Local appearance photo
現地外観写真
 Local photos, including front road
前面道路含む現地写真
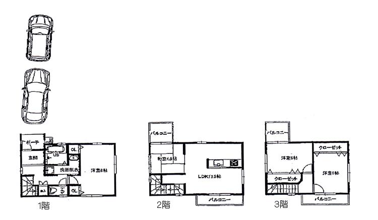
Floor plan間取り図  37.5 million yen, 4LDK, Land area 93.5 sq m , Building area 92.34 sq m
3750万円、4LDK、土地面積93.5m2、建物面積92.34m2
 Local appearance photo
現地外観写真
 Parking lot
駐車場
Station駅  2300m to Momoyamadai Station
桃山台駅まで2300m
 Other
その他
Local appearance photo現地外観写真  Shooting from the south side
南側より撮影
Station駅  2300m to Momoyamadai Station
桃山台駅まで2300m
 Other
その他
 2300m to Momoyamadai Station
桃山台駅まで2300m
 Other
その他
Other Environmental Photoその他環境写真  160m to the bus stop
バス停まで160m
 Other
その他
Primary school小学校  Kumanoda 250m up to elementary school
熊野田小学校まで250m
 Other
その他
Supermarketスーパー  Ikari 300m to super
イカリスーパーまで300m
 Other
その他
 Ikari 300m to super
イカリスーパーまで300m
 Other
その他
Convenience storeコンビニ  Until FamilyMart 200m
ファミリーマートまで200m
Location
|