New Homes » Kansai » Osaka prefecture » Toyonaka
 
| | Toyonaka, Osaka 大阪府豊中市 |
| Hankyu Takarazuka Line "Okamachi" walk 15 minutes 阪急宝塚線「岡町」歩15分 |
| ◆ Hashirii 1-chome Newly built single-family ◆ 3LDK + with garage (large car possible) ◆ Sunny in both north and south interview road ◆ Current Status vacant lot ◆ All rooms 6 quires more ・ Two-sided lighting ◆走井1丁目 新築戸建◆3LDK+車庫付き(大型車可能)◆南北両面接道で日当たり良好◆現況更地◆全室6帖以上・2面採光 |
| ・ Spacious 3LDK + is a large car that can be garage with. ・ New House, Is the current state vacant lot. ・ Room very spacious Western-style 6 Pledge with each room accommodating. ・ With counter kitchen, You can housework while becoming the state of your family to visit. ・ Route 10 ・ Easy also going out in the car in the vicinity of 99 Route ・ Good day in the indoor two-sided lighting ・ Ventilation is good. Guests slowly stay in a bright room. ・ Hankyu Takarazuka Line Okamachi a 15-minute walk from the train station ・ Also because there in the distance a little away from Osaka Airport, Movement of your trip is very convenient. ・広々3LDK+大型車可能な車庫つきです。・新築戸建て、現況更地です。・各居室収納付きの洋室6帖で室内大変広々です。・カウンターキッチン付きで、ご家族の様子をご覧になりながらの家事ができます。・10号線・99号線の近くでお車でのお出かけも楽々・室内2面採光で日当たり良好・通風良好です。明るい室内でごゆっくりお過ごしいただけます。・阪急宝塚線 岡町駅より徒歩15分・大阪空港も少し離れた距離にありますので、ご旅行の移動は大変便利です。 |
Features pickup 特徴ピックアップ | | Pre-ground survey / 2 along the line more accessible / Super close / System kitchen / Yang per good / All room storage / Siemens south road / A quiet residential area / Around traffic fewer / Face-to-face kitchen / Security enhancement / South balcony / The window in the bathroom / Leafy residential area / Mu front building / Ventilation good / All living room flooring / Good view / Built garage / All room 6 tatami mats or more / Three-story or more / Living stairs / City gas / All rooms are two-sided lighting / A large gap between the neighboring house / Flat terrain 地盤調査済 /2沿線以上利用可 /スーパーが近い /システムキッチン /陽当り良好 /全居室収納 /南側道路面す /閑静な住宅地 /周辺交通量少なめ /対面式キッチン /セキュリティ充実 /南面バルコニー /浴室に窓 /緑豊かな住宅地 /前面棟無 /通風良好 /全居室フローリング /眺望良好 /ビルトガレージ /全居室6畳以上 /3階建以上 /リビング階段 /都市ガス /全室2面採光 /隣家との間隔が大きい /平坦地 | Price 価格 | | 23.8 million yen 2380万円 | Floor plan 間取り | | 3LDK 3LDK | Units sold 販売戸数 | | 1 units 1戸 | Total units 総戸数 | | 1 units 1戸 | Land area 土地面積 | | 49.87 sq m (registration) 49.87m2(登記) | Building area 建物面積 | | 90.9 sq m (registration) 90.9m2(登記) | Driveway burden-road 私道負担・道路 | | Nothing, South 4m width, North 4m width 無、南4m幅、北4m幅 | Completion date 完成時期(築年月) | | May 2014 2014年5月 | Address 住所 | | Osaka Toyonaka Hashirii 1 大阪府豊中市走井1 | Traffic 交通 | | Hankyu Takarazuka Line "Okamachi" walk 15 minutes Hankyu Takarazuka Line "Toyonaka" walk 19 minutes Osaka Monorail Main Line "Hotarugaike" walk 23 minutes 阪急宝塚線「岡町」歩15分 阪急宝塚線「豊中」歩19分 大阪モノレール本線「蛍池」歩23分
| Related links 関連リンク | | [Related Sites of this company] 【この会社の関連サイト】 | Contact お問い合せ先 | | TEL: 0800-602-6598 [Toll free] mobile phone ・ Also available from PHS Caller ID is not notified Please contact the "saw SUUMO (Sumo)" If it does not lead, If the real estate company TEL:0800-602-6598【通話料無料】携帯電話・PHSからもご利用いただけます 発信者番号は通知されません 「SUUMO(スーモ)を見た」と問い合わせください つながらない方、不動産会社の方は
| Expenses 諸費用 | | Outside 構費: 500,000 yen / Bulk 外構費:50万円/一括 | Building coverage, floor area ratio 建ぺい率・容積率 | | 60% ・ 200% 60%・200% | Time residents 入居時期 | | May 2014 plans 2014年5月予定 | Land of the right form 土地の権利形態 | | Ownership 所有権 | Structure and method of construction 構造・工法 | | Wooden three-story 木造3階建 | Use district 用途地域 | | Semi-industrial 準工業 | Overview and notices その他概要・特記事項 | | Facilities: Public Water Supply, This sewage, City gas, Building confirmation number: 0000000000, Parking: Garage 設備:公営水道、本下水、都市ガス、建築確認番号:0000000000、駐車場:車庫 | Company profile 会社概要 | | <Marketing alliance (mediated)> governor of Osaka (2) No. 051345 (Ltd.) World ・ One Toyonaka store Yubinbango560-0021 Toyonaka, Osaka Honcho 4-1-22 <販売提携(媒介)>大阪府知事(2)第051345号(株)ワールド・ワン豊中店〒560-0021 大阪府豊中市本町4-1-22 |
Local photos, including front road前面道路含む現地写真  It is north contact road.
北側接道です。
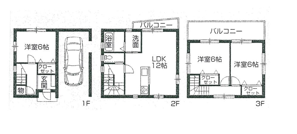
Floor plan間取り図  23.8 million yen, 3LDK, Land area 49.87 sq m , Building area 90.9 sq m newly built single-family Large car possible parking 3LDK
2380万円、3LDK、土地面積49.87m2、建物面積90.9m2 新築戸建 大型車可能な駐車場 3LDK
Otherその他  South Seddo part, Because the person in the back is not impassable car, Please be careful.
南側接道部分、奥の方はお車通れませんので、ご注意ください。
Local photos, including front road前面道路含む現地写真  It is north contact road.
北側接道です。
Shopping centreショッピングセンター  Until Etore Toyonaka 1384m
エトレとよなかまで1384m
Other localその他現地  Nearby park, Immediately it is there.
近くの公園、すぐそこです。
Otherその他  South side green is rich.
南側緑豊かです。
Supermarketスーパー  1401m to Hankyu Oasis Toyonaka Ekimae
阪急オアシス豊中駅前店まで1401m
Other localその他現地  South promenade part
南側遊歩道部分
Junior high school中学校  Toyonaka 982m to stand fifth junior high school
豊中市立第五中学校まで982m
Other localその他現地  Green is rich.
緑豊かです。
Primary school小学校  Toyonaka Municipal Minowa to elementary school 642m
豊中市立箕輪小学校まで642m
Kindergarten ・ Nursery幼稚園・保育園  960m until the Buddha light kindergarten
仏光幼稚園まで960m
Library図書館  Toyonaka Tachioka cho, 1006m to the library
豊中市立岡町図書館まで1006m
Police station ・ Police box警察署・交番  Toyonaka 1270m to police station
豊中警察署まで1270m
Park公園  816m to roar park
轟木公園まで816m
 1159m to Kubo park
久保公園まで1159m
Location
|