New Homes » Kansai » Osaka prefecture » Toyonaka
 
| | Toyonaka, Osaka 大阪府豊中市 |
| Hankyu Takarazuka Line "Toyonaka" walk 23 minutes 阪急宝塚線「豊中」歩23分 |
| ◆ Kumano-cho 1-chome Newly built single-family ◆ South is good day for the river ◆ 4LDK + Car space 2 cars ◆ 2013 December completion! ◆ Shopping facilities ・ School is near the periphery environment favorable! ◆熊野町1丁目 新築戸建◆南側は河川のため日当たり良好◆4LDK+カースペース2台分◆平成25年12月完成!◆買い物施設・学校が近く周辺環境良好! |
| ・ Heisei 25 December completion of newly built single-family. ・ Wealth is housed in 4LDK. ・ LDK is about 15.7 Pledge ・ Good day onto a balcony! Very convenient there is a compartment in the vicinity of the counter kitchen ・ All rooms south in the window is there, The south side of the site is a good day for the river. ・ Hankyu Oasis ・ Konan, etc. nearby is convenient shopping. ・ Kumanoda park is near, Leafy quiet residential area, Relax please make your stay. ・ Kumanoda elementary school and kindergarten Kumanoda ・ Kumanoda nursery is in a 5-minute walk, Even if he has children can attend school in peace. ・ Since Line 2 leading to the 176 lines are nearby, It is also easy reach by car. ・ But we have a little bit away from the station, Location that can be enough to live in your car or on foot ・平成25年12月完成の新築戸建てです。・4LDKで収納豊富です。・LDKは約15.7帖・バルコニーに面し日当たり良好!カウンターキッチンの近くに物入れがあり大変便利・全室南側に窓が有り、敷地の南側は川のため日当たり良好です。・阪急オアシス・コーナン等が近くにあり買い物至便です。・熊野田公園が近く、緑豊かな閑静な住宅街、ごゆっくりお過ごしいただけます。・熊野田小学校や熊野田幼稚園・くまのだ保育園が徒歩5分の場所にあり、お子様がおられても安心して通学できます。・176線に通じる2号線が近くにありますので、お車でのお出かけも楽々です。・駅からは少し離れておりますが、お車や徒歩で十分生活できる立地 |
Features pickup 特徴ピックアップ | | Pre-ground survey / Year Available / Parking two Allowed / 2 along the line more accessible / Riverside / Super close / It is close to the city / System kitchen / Bathroom Dryer / Yang per good / A quiet residential area / LDK15 tatami mats or more / Around traffic fewer / Japanese-style room / Washbasin with shower / Face-to-face kitchen / Security enhancement / Toilet 2 places / 2 or more sides balcony / South balcony / Double-glazing / Warm water washing toilet seat / Underfloor Storage / The window in the bathroom / TV monitor interphone / High-function toilet / Leafy residential area / Ventilation good / Dish washing dryer / Three-story or more / Living stairs / City gas / A large gap between the neighboring house / Maintained sidewalk / Flat terrain 地盤調査済 /年内入居可 /駐車2台可 /2沿線以上利用可 /リバーサイド /スーパーが近い /市街地が近い /システムキッチン /浴室乾燥機 /陽当り良好 /閑静な住宅地 /LDK15畳以上 /周辺交通量少なめ /和室 /シャワー付洗面台 /対面式キッチン /セキュリティ充実 /トイレ2ヶ所 /2面以上バルコニー /南面バルコニー /複層ガラス /温水洗浄便座 /床下収納 /浴室に窓 /TVモニタ付インターホン /高機能トイレ /緑豊かな住宅地 /通風良好 /食器洗乾燥機 /3階建以上 /リビング階段 /都市ガス /隣家との間隔が大きい /整備された歩道 /平坦地 | Price 価格 | | 37.5 million yen 3750万円 | Floor plan 間取り | | 4LDK 4LDK | Units sold 販売戸数 | | 1 units 1戸 | Total units 総戸数 | | 4 units 4戸 | Land area 土地面積 | | 98.5 sq m (registration) 98.5m2(登記) | Building area 建物面積 | | 99.63 sq m (registration) 99.63m2(登記) | Driveway burden-road 私道負担・道路 | | Nothing, North 4m width (contact the road width 2.8m) 無、北4m幅(接道幅2.8m) | Completion date 完成時期(築年月) | | December 2013 2013年12月 | Address 住所 | | Toyonaka, Osaka Kumano-cho 1 大阪府豊中市熊野町1 | Traffic 交通 | | Hankyu Takarazuka Line "Toyonaka" walk 23 minutes Northern Osaka Express "Momoyamadai" 8 minutes Asahigaoka park before walking one minute bus Osaka Monorail Main Line "Shoji" walk 30 minutes 阪急宝塚線「豊中」歩23分 北大阪急行「桃山台」バス8分旭丘団地前歩1分 大阪モノレール本線「少路」歩30分
| Related links 関連リンク | | [Related Sites of this company] 【この会社の関連サイト】 | Contact お問い合せ先 | | TEL: 0800-602-6598 [Toll free] mobile phone ・ Also available from PHS Caller ID is not notified Please contact the "saw SUUMO (Sumo)" If it does not lead, If the real estate company TEL:0800-602-6598【通話料無料】携帯電話・PHSからもご利用いただけます 発信者番号は通知されません 「SUUMO(スーモ)を見た」と問い合わせください つながらない方、不動産会社の方は
| Building coverage, floor area ratio 建ぺい率・容積率 | | 60% ・ 200% 60%・200% | Time residents 入居時期 | | Consultation 相談 | Land of the right form 土地の権利形態 | | Ownership 所有権 | Structure and method of construction 構造・工法 | | Wooden three-story 木造3階建 | Use district 用途地域 | | One dwelling 1種住居 | Overview and notices その他概要・特記事項 | | Facilities: Public Water Supply, This sewage, City gas, Building confirmation number: 13-0628, Parking: car space 設備:公営水道、本下水、都市ガス、建築確認番号:13-0628、駐車場:カースペース | Company profile 会社概要 | | <Marketing alliance (mediated)> governor of Osaka (2) No. 051345 (Ltd.) World ・ One Toyonaka store Yubinbango560-0021 Toyonaka, Osaka Honcho 4-1-22 <販売提携(媒介)>大阪府知事(2)第051345号(株)ワールド・ワン豊中店〒560-0021 大阪府豊中市本町4-1-22 |
 Local appearance photo
現地外観写真
Local appearance photo現地外観写真  It is currently under construction. December is scheduled for completion. Sunny
現在建築中です。 12月完成予定です。 日当たり良好
Local photos, including front road前面道路含む現地写真  Is the way in front of local. It is a quiet residential area.
現地の前の道です。 閑静な住宅街です。
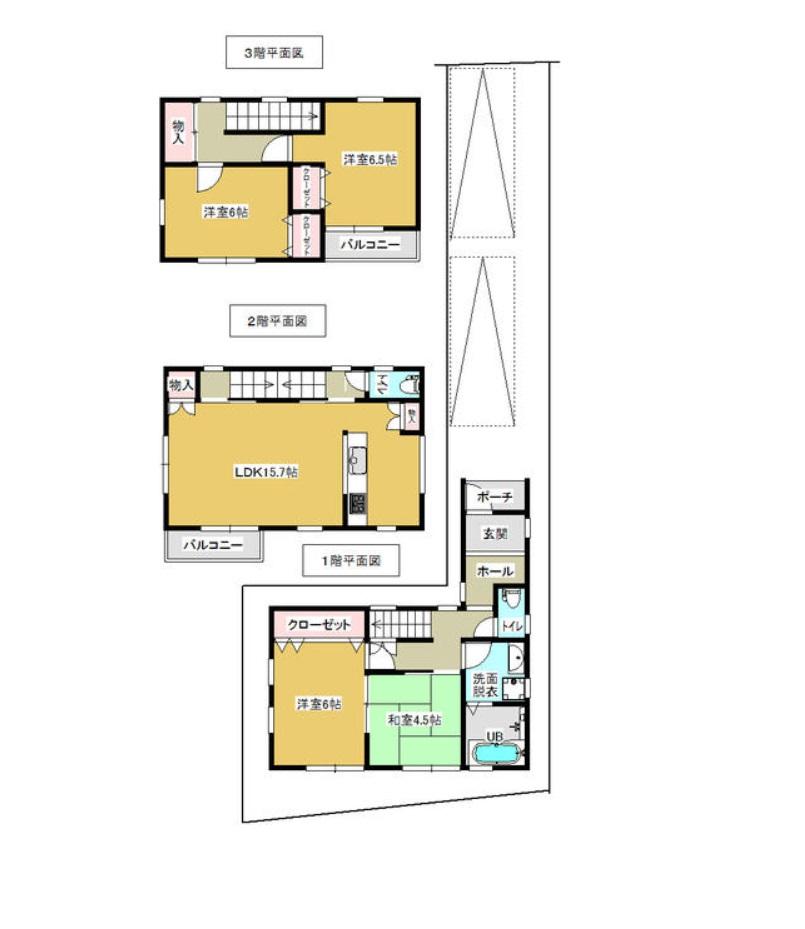
Floor plan間取り図  37.5 million yen, 4LDK, Land area 98.5 sq m , Building area 99.63 sq m Kumano-cho 1-chome Newly built single-family 2013 December completion There is a river on the south side, Sunny
3750万円、4LDK、土地面積98.5m2、建物面積99.63m2 熊野町1丁目 新築戸建 平成25年12月完成 南側に川が有り、日当たり良好
Local photos, including front road前面道路含む現地写真  Is the way in front of local. Day is good.
現地の前の道です。 日当たり良好です。
Shopping centreショッピングセンター  1505m to UNIQLO Toyonaka Minamisakurazuka shop
ユニクロ豊中南桜塚店まで1505m
Supermarketスーパー  485m to Hankyu Oasis Yuhigaoka shop
阪急オアシス夕日丘店まで485m
High school ・ College高校・高専  Osaka Prefectural Sakurazuka until high school 1221m
大阪府立桜塚高校まで1221m
Junior high school中学校  Toyonaka 931m to stand fifteenth junior high school
豊中市立第十五中学校まで931m
Primary school小学校  Toyonaka Municipal Kumanoda to elementary school 439m
豊中市立熊野田小学校まで439m
Kindergarten ・ Nursery幼稚園・保育園  Kumanoda 246m to kindergarten
熊野田幼稚園まで246m
Hospital病院  903m until the medical corporation authenticity Board authenticity meeting hospital
医療法人真正会真正会病院まで903m
Library図書館  Toyonaka Municipal Higashitoyonaka to Library 1511m
豊中市立東豊中図書館まで1511m
Park公園  643m until Kumanoda park
熊野田公園まで643m
 Local appearance photo
現地外観写真
Location
|