New Homes » Kansai » Osaka prefecture » Toyonaka
 
| | Toyonaka, Osaka 大阪府豊中市 |
| Hankyū Minoo Line "Sakurai" walk 14 minutes 阪急箕面線「桜井」歩14分 |
| Counter Kitchen Spacious floor plan of greater than or equal to a total rooms 6 Pledge Housing wealth カウンターキッチン 全室6帖以上の広々とした間取り 収納豊富 |
Features pickup 特徴ピックアップ | | Bathroom Dryer / 2-story / All room 6 tatami mats or more / City gas 浴室乾燥機 /2階建 /全居室6畳以上 /都市ガス | Price 価格 | | 33,800,000 yen 3380万円 | Floor plan 間取り | | 4LDK 4LDK | Units sold 販売戸数 | | 1 units 1戸 | Total units 総戸数 | | 2 units 2戸 | Land area 土地面積 | | 112.16 sq m (measured) 112.16m2(実測) | Building area 建物面積 | | 94.77 sq m (measured) 94.77m2(実測) | Driveway burden-road 私道負担・道路 | | Nothing, North 4.2m width, East 4m width 無、北4.2m幅、東4m幅 | Completion date 完成時期(築年月) | | January 2014 2014年1月 | Address 住所 | | Toyonaka, Osaka Miyayama cho 3 大阪府豊中市宮山町3 | Traffic 交通 | | Hankyū Minoo Line "Sakurai" walk 14 minutes 阪急箕面線「桜井」歩14分
| Contact お問い合せ先 | | TEL: 0800-601-5255 [Toll free] mobile phone ・ Also available from PHS Caller ID is not notified Please contact the "saw SUUMO (Sumo)" If it does not lead, If the real estate company TEL:0800-601-5255【通話料無料】携帯電話・PHSからもご利用いただけます 発信者番号は通知されません 「SUUMO(スーモ)を見た」と問い合わせください つながらない方、不動産会社の方は
| Building coverage, floor area ratio 建ぺい率・容積率 | | 60% ・ 150% 60%・150% | Time residents 入居時期 | | Consultation 相談 | Land of the right form 土地の権利形態 | | Ownership 所有権 | Structure and method of construction 構造・工法 | | Wooden 2-story 木造2階建 | Use district 用途地域 | | One low-rise 1種低層 | Other limitations その他制限事項 | | Lighting equipment will be ordered separately. 照明器具は別途注文になります。 | Overview and notices その他概要・特記事項 | | Facilities: Public Water Supply, This sewage, City gas, Building confirmation number: No. Trust 13-2564, Parking: car space 設備:公営水道、本下水、都市ガス、建築確認番号:第トラスト13‐2564号、駐車場:カースペース | Company profile 会社概要 | | <Mediation> Minister of Land, Infrastructure and Transport (6) No. 004224 (Ltd.) Towa House Takatsuki store Yubinbango569-0071 Osaka Takatsuki Johoku cho 2-4-5 ODA building Johoku-cho, first floor <仲介>国土交通大臣(6)第004224号(株)藤和ハウス高槻店〒569-0071 大阪府高槻市城北町2-4-5 ODAビル城北町1階 |
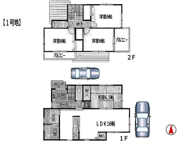
Floor plan間取り図  33,800,000 yen, 4LDK, Land area 112.16 sq m , Building area 94.77 sq m
3380万円、4LDK、土地面積112.16m2、建物面積94.77m2
Compartment figure区画図  33,800,000 yen, 4LDK, Land area 112.16 sq m , Building area 94.77 sq m compartment view
3380万円、4LDK、土地面積112.16m2、建物面積94.77m2 区画図
Floor plan間取り図  33,800,000 yen, 4LDK, Land area 112.16 sq m , Building area 94.77 sq m 2 Building Floor plan
3380万円、4LDK、土地面積112.16m2、建物面積94.77m2 2号棟 間取り図
Location
|