New Homes » Kansai » Osaka prefecture » Toyonaka
 
| | Toyonaka, Osaka 大阪府豊中市 |
| Hankyu Takarazuka Line "Toyonaka" walk 7 minutes 阪急宝塚線「豊中」歩7分 |
| It is close to the city, Flat to the station, A quiet residential area, Around traffic fewer, Urban neighborhood, City gas, Flat terrain, Building plan example there 市街地が近い、駅まで平坦、閑静な住宅地、周辺交通量少なめ、都市近郊、都市ガス、平坦地、建物プラン例有り |
| ■ The location of the Hankyu Takarazuka Line Toyonaka Station 7-minute walk ■ Is the traffic volume at least a very quiet residential area. ■ Adjacent land There is a feeling of opening since it has opened in the parking lot. ■阪急宝塚線豊中駅徒歩7分の立地■交通量少なくとても静かな住宅地です。■隣地が駐車場で開けていますので開放感あります。 |
Features pickup 特徴ピックアップ | | It is close to the city / Flat to the station / A quiet residential area / Around traffic fewer / Urban neighborhood / City gas / Flat terrain / Building plan example there 市街地が近い /駅まで平坦 /閑静な住宅地 /周辺交通量少なめ /都市近郊 /都市ガス /平坦地 /建物プラン例有り | Event information イベント情報 | | Local guide Board (Please be sure to ask in advance) schedule / Until the local If you have please contact in advance in public to you it can be announced. It is also possible, such as suggestions of similar properties. 現地案内会(事前に必ずお問い合わせください)日程/公開中事前にご連絡いただきましたら現地までご案内させて頂けます。類似物件のご提案なども可能です。 | Price 価格 | | 26 million yen 2600万円 | Building coverage, floor area ratio 建ぺい率・容積率 | | 60% ・ 200% 60%・200% | Sales compartment 販売区画数 | | 1 compartment 1区画 | Land area 土地面積 | | 146.71 sq m (registration) 146.71m2(登記) | Driveway burden-road 私道負担・道路 | | Nothing, Southeast 4m width (contact the road width 3m) 無、南東4m幅(接道幅3m) | Land situation 土地状況 | | Vacant lot 更地 | Address 住所 | | Toyonaka, Osaka Honcho 4 大阪府豊中市本町4 | Traffic 交通 | | Hankyu Takarazuka Line "Toyonaka" walk 7 minutes 阪急宝塚線「豊中」歩7分
| Related links 関連リンク | | [Related Sites of this company] 【この会社の関連サイト】 | Person in charge 担当者より | | Person in charge of real-estate and building Murota Keisuke Age: As you are able to buy in the 20s good property and encounter smile, We will support a total of. 担当者宅建室田 圭亮年齢:20代いい物件と出会い笑顔で購入していただけるように、トータルでサポート致します。 | Contact お問い合せ先 | | TEL: 0800-603-3479 [Toll free] mobile phone ・ Also available from PHS Caller ID is not notified Please contact the "saw SUUMO (Sumo)" If it does not lead, If the real estate company TEL:0800-603-3479【通話料無料】携帯電話・PHSからもご利用いただけます 発信者番号は通知されません 「SUUMO(スーモ)を見た」と問い合わせください つながらない方、不動産会社の方は
| Land of the right form 土地の権利形態 | | Ownership 所有権 | Building condition 建築条件 | | With 付 | Time delivery 引き渡し時期 | | Consultation 相談 | Land category 地目 | | Residential land 宅地 | Use district 用途地域 | | One middle and high 1種中高 | Other limitations その他制限事項 | | Setback: upon 2.25 sq m セットバック:要2.25m2 | Overview and notices その他概要・特記事項 | | Contact: Murota Keisuke, Facilities: Public Water Supply, This sewage, City gas 担当者:室田 圭亮、設備:公営水道、本下水、都市ガス | Company profile 会社概要 | | <Mediation> governor of Osaka (2) No. 050720 (Corporation) All Japan Real Estate Association (Corporation) Kinki district Real Estate Fair Trade Council member Century 21 Home style (Ltd.) Yubinbango564-0062 Suita, Osaka Prefecture Tarumi-cho 3-35-12 <仲介>大阪府知事(2)第050720号(公社)全日本不動産協会会員 (公社)近畿地区不動産公正取引協議会加盟センチュリー21ホームスタイル(株)〒564-0062 大阪府吹田市垂水町3-35-12 |
Local land photo現地土地写真  There is a feeling of opening because it has become a spacious adjacent land parking lot on land basis 44 square meters.
土地坪44坪で広々隣地駐車場になってますので開放感あります。
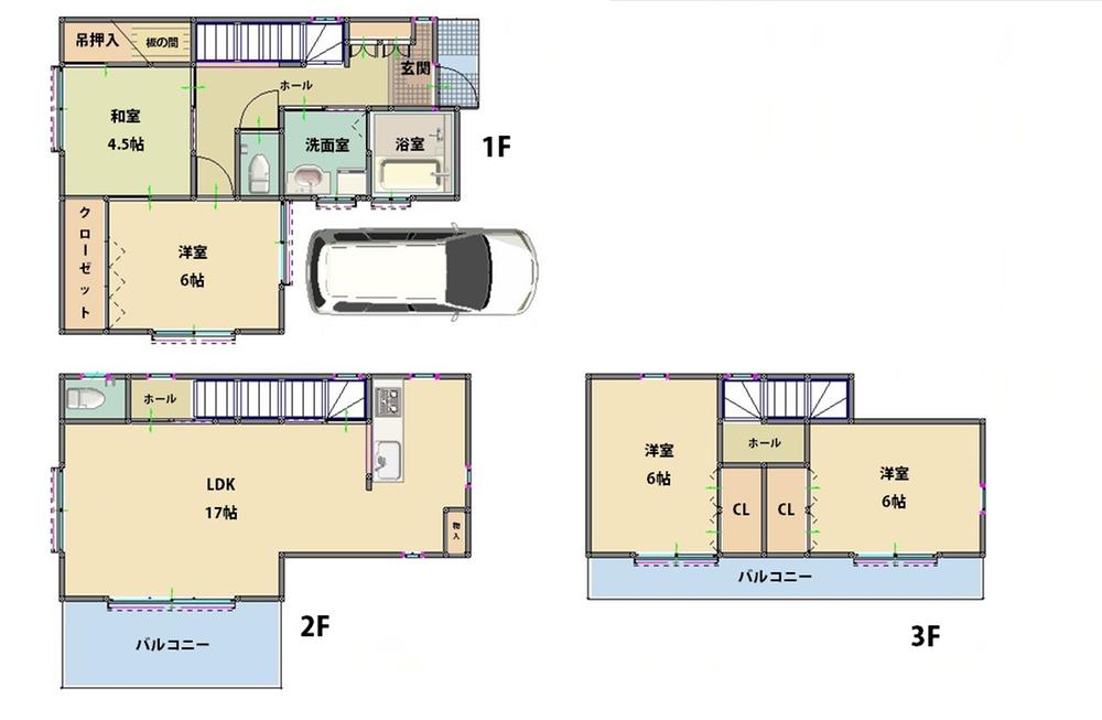
Building plan example (floor plan)建物プラン例(間取り図)  Building plan example (C No. land) Building Price 17,640,000 yen, Building area 101.11 sq m
建物プラン例(C号地)建物価格 1764万円、建物面積 101.11m2
Local photos, including front road前面道路含む現地写真  Is the traffic volume at least very quiet
交通量少なくとても閑静です
 Good access of a 7-minute walk from Toyonaka Station
豊中駅まで徒歩7分の好アクセス
Sale already cityscape photo分譲済街並み写真  3 compartment is remaining 1 compartment of sale Local No. B land photo
3区画分譲の残り1区画です 現地B号地写真
 3 compartment is remaining 1 compartment of sale
3区画分譲の残り1区画です
Location
|