New Homes » Kansai » Osaka prefecture » Toyonaka
 
| | Toyonaka, Osaka 大阪府豊中市 |
| Hankyu Takarazuka Line "Shonai" walk 11 minutes 阪急宝塚線「庄内」歩11分 |
Features pickup 特徴ピックアップ | | Construction housing performance with evaluation / Design house performance with evaluation / Measures to conserve energy / Pre-ground survey / Vibration Control ・ Seismic isolation ・ Earthquake resistant / Seismic fit / Immediate Available / Super close / Facing south / Flat to the station / Siemens south road / Around traffic fewer / Or more before road 6m / Corner lot / Japanese-style room / Shaping land / Washbasin with shower / Wide balcony / Toilet 2 places / Bathroom 1 tsubo or more / South balcony / Double-glazing / Warm water washing toilet seat / Underfloor Storage / The window in the bathroom / TV monitor interphone / Ventilation good / Walk-in closet / Water filter / Three-story or more / Living stairs / City gas / All rooms are two-sided lighting / Maintained sidewalk / Flat terrain 建設住宅性能評価付 /設計住宅性能評価付 /省エネルギー対策 /地盤調査済 /制震・免震・耐震 /耐震適合 /即入居可 /スーパーが近い /南向き /駅まで平坦 /南側道路面す /周辺交通量少なめ /前道6m以上 /角地 /和室 /整形地 /シャワー付洗面台 /ワイドバルコニー /トイレ2ヶ所 /浴室1坪以上 /南面バルコニー /複層ガラス /温水洗浄便座 /床下収納 /浴室に窓 /TVモニタ付インターホン /通風良好 /ウォークインクロゼット /浄水器 /3階建以上 /リビング階段 /都市ガス /全室2面採光 /整備された歩道 /平坦地 | Event information イベント情報 | | Open House (Please be sure to ask in advance) schedule / Every Saturday, Sunday and public holidays time / 10:00 ~ 17:00 オープンハウス(事前に必ずお問い合わせください)日程/毎週土日祝時間/10:00 ~ 17:00 | Property name 物件名 | | Heartful-Town Toyonaka Shonaisakae cho Heartful-Town豊中庄内栄町 | Price 価格 | | 26,800,000 yen 2680万円 | Floor plan 間取り | | 4LDK 4LDK | Units sold 販売戸数 | | 1 units 1戸 | Total units 総戸数 | | 1 units 1戸 | Land area 土地面積 | | 66.44 sq m (measured) 66.44m2(実測) | Building area 建物面積 | | 100.19 sq m (measured) 100.19m2(実測) | Driveway burden-road 私道負担・道路 | | Road width: 9.9m, Asphaltic pavement 道路幅:9.9m、アスファルト舗装 | Completion date 完成時期(築年月) | | 2013 in late November 2013年11月下旬 | Address 住所 | | Toyonaka, Osaka Shonaisakae cho 大阪府豊中市庄内栄町1 | Traffic 交通 | | Hankyu Takarazuka Line "Shonai" walk 11 minutes 阪急宝塚線「庄内」歩11分
| Related links 関連リンク | | [Related Sites of this company] 【この会社の関連サイト】 | Contact お問い合せ先 | | (Ltd.) Idasangyo Suita office TEL: 0800-805-4023 [Toll free] mobile phone ・ Also available from PHS Caller ID is not notified Please contact the "saw SUUMO (Sumo)" If it does not lead, If the real estate company (株)飯田産業吹田営業所TEL:0800-805-4023【通話料無料】携帯電話・PHSからもご利用いただけます 発信者番号は通知されません 「SUUMO(スーモ)を見た」と問い合わせください つながらない方、不動産会社の方は
| Building coverage, floor area ratio 建ぺい率・容積率 | | Kenpei rate: 60%, Volume ratio: 200% 建ペい率:60%、容積率:200% | Time residents 入居時期 | | Immediate available 即入居可 | Land of the right form 土地の権利形態 | | Ownership 所有権 | Structure and method of construction 構造・工法 | | Wooden three-story (panel construction) 木造3階建(パネル工法) | Construction 施工 | | Ltd. Idasangyo 株式会社飯田産業 | Use district 用途地域 | | One dwelling 1種住居 | Land category 地目 | | Residential land 宅地 | Other limitations その他制限事項 | | Regulations have by the Law for the Protection of Cultural Properties, Regulations have by the Landscape Act, Regulations have by the Aviation Law, Site area minimum Yes 文化財保護法による規制有、景観法による規制有、航空法による規制有、敷地面積最低限度有 | Overview and notices その他概要・特記事項 | | Building confirmation number: No. KS113-6120-00070 建築確認番号:第KS113-6120-00070号 | Company profile 会社概要 | | <Seller> Minister of Land, Infrastructure and Transport (8) No. 003306 (Ltd.) Idasangyo Suita office Yubinbango564-0062 Suita, Osaka Prefecture Tarumi-cho 3-19-25 <売主>国土交通大臣(8)第003306号(株)飯田産業吹田営業所〒564-0062 大阪府吹田市垂水町3-19-25 |
Local appearance photo現地外観写真  As it has ingenuity to realize numerous live! ! Patented original construction method
住むほど実感する工夫のい数々!!特許取得のオリジナル工法
 Good day in the southwest corner lot! ! I found precisely because it can preview a favorite of 1 building
南西角地で日当たり良好!!内覧可能だからこそ見つかるお気に入りの1棟
 Front road which can have children there is a peace of mind sidewalk is about 9.9m! ! Traffic volume even fewer! ! But please make sure come to see
お子様がいても安心歩道がある前面道路は約9.9m!!交通量も少なめ!!見に来て確かめてくださいね
Livingリビング  The like every day the face of the important family! ! Living-in stairs that such a wish come true
大切な家族の顔を毎日みたい!!そんな願いが叶うリビングイン階段
Bathroom浴室  Cheers for good work every day of your job. Bathing to heal fatigue of the day offers spacious and in 1 tsubo
毎日のお仕事お疲れ様。1日の疲れを癒すお風呂は広々と1坪でご用意しています
Kitchenキッチン  L-shaped kitchen that can dishes in natural light, Corner portion is also conveniently ingenuity in such seasoning Storage
自然光でお料理のできるL字型キッチンは、コーナー部分も調味料置き場などで工夫次第で便利に
Non-living roomリビング以外の居室  It's Japanese-style room is essential to the aged or from playing a small child
小さなお子様を遊ばせたり寝かしたするのに和室は必須ですよね
 Rooms for children and the rumbling south looks warm warm and comfortable space.
お子様とゴロゴロ南側のお部屋はポカポカ暖かく快適な空間ですね。
Construction ・ Construction method ・ specification構造・工法・仕様  The Company is proud of the construction method! ! It supports safe and comfortable life by the patented method
当社自慢の工法です!!特許取得の工法により安心と快適な生活をサポートします
Non-living roomリビング以外の居室  Would Ikaka in bright rooms main bedroom of the south-facing?
南向きの明るいお部屋主寝室にいかかでしょう?
 How in the children's room? , You can also you clean up firmly after playing spread a lot of toys
子供部屋にいかがですか?収納スペースもあり、おもちゃをたくさん広げて遊んだ後はしっかりお片付けもできますよ
Balconyバルコニー  The third floor is wide balcony! ! Since the south-facing a laundry is also good dry mom also a great help
3階はワイドバルコニー!!南向きなので洗濯物も良く乾きママも大助かり
Receipt収納  You are plenty of storage regardless of the season, "walk-in closet."! !
季節を問わずたっぷり収納ができる「ウォークインクローゼット」!!
Parking lot駐車場  It is the ease of corner lot unique parking of moms worry
ママ達も安心の角地ならではの駐車のしやすさですね
Station駅  Hankyu Takarazuka Line "Shonai" to walk about 11 minutes until the 880m Station! ! Commute, Convenient to go to school
阪急宝塚線「庄内」まで880m 駅まで徒歩約11分!!通勤、通学に便利
Primary school小学校  Toyonaka Municipal Shimada to elementary school 433m
豊中市立島田小学校まで433m
Junior high school中学校  Toyonaka 1001m to stand tenth Junior High School
豊中市立第十中学校まで1001m
Supermarketスーパー  About a 3-minute walk from the 172m super until Sandy Shonaisakae the town shop! ! It is convenient
サンディ庄内栄町店まで172m スーパーまで徒歩約3分!!便利ですね
Convenience storeコンビニ  Also about walking up to 292m convenience store to FamilyMart Shonaisakae cho store 4 minutes! !
ファミリーマート庄内栄町店まで292m コンビニまでも徒歩約4分!!
Kindergarten ・ Nursery幼稚園・保育園  Kurinomi to kindergarten 582m
くりのみ幼稚園まで582m
Park公園  There is also a park in the immediate vicinity of 445m elementary school to Shonaisakae the town park! ! I child is likely to joy
庄内栄町公園まで445m 小学校のすぐそばに公園も有り!!お子様が喜びそうですね
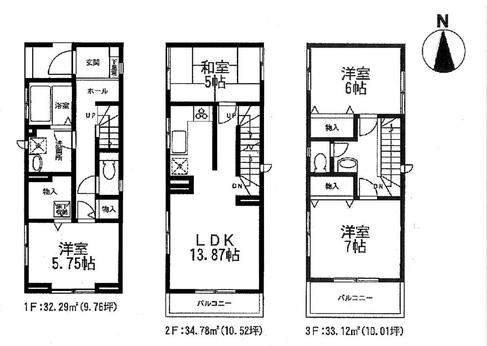
Floor plan間取り図  Price 26,800,000 yen, 4LDK, Land area 66.44 sq m , Building area 100.19 sq m
価格2680万円、4LDK、土地面積66.44m2、建物面積100.19m2
Location
|