New Homes » Kansai » Osaka prefecture » Tsurumi-ku
 
| | Osaka-shi, Osaka Tsurumi-ku, 大阪府大阪市鶴見区 |
| JR katamachi line "Tokuan" walk 5 minutes JR片町線「徳庵」歩5分 |
| Custom home being accepted Land 102, 3 sq m (30, 94 square meters) with 20 year warranty for peace of mind Leading house builders will guarantee to construction. Southeast of the corner lot 7m6m road Mu before horizontal surface building hospital Dental clinic 50m 注文住宅受付中 土地102、3m2(30、94坪)付 安心の20年保証付 大手ハウスメーカーが施工し保証致します。東南の角地7m6m道路 前横面棟無 病院 歯科医院50m |
Features pickup 特徴ピックアップ | | 2 along the line more accessible / Riverside / See the mountain / Super close / It is close to the city / Yang per good / Flat to the station / Siemens south road / Or more before road 6m / Corner lot / Mu front building / Good view / Maintained sidewalk / Flat terrain / Building plan example there 2沿線以上利用可 /リバーサイド /山が見える /スーパーが近い /市街地が近い /陽当り良好 /駅まで平坦 /南側道路面す /前道6m以上 /角地 /前面棟無 /眺望良好 /整備された歩道 /平坦地 /建物プラン例有り | Price 価格 | | 23.2 million yen 2320万円 | Building coverage, floor area ratio 建ぺい率・容積率 | | 60% ・ 200% 60%・200% | Sales compartment 販売区画数 | | 1 compartment 1区画 | Land area 土地面積 | | 102.3 sq m (30.94 tsubo) (measured) 102.3m2(30.94坪)(実測) | Driveway burden-road 私道負担・道路 | | Nothing, South 7m width (contact the road width 9m), East 6m width (contact the road width 5m) 無、南7m幅(接道幅9m)、東6m幅(接道幅5m) | Land situation 土地状況 | | Vacant lot 更地 | Address 住所 | | Osaka-shi, Osaka Tsurumi-ku, Tokuan 1-1624-5 大阪府大阪市鶴見区徳庵1-1624-5 | Traffic 交通 | | JR katamachi line "Tokuan" walk 5 minutes Subway Nagahori Tsurumi-ryokuchi Line "Yokozutsumi" walk 13 minutes JR片町線「徳庵」歩5分 地下鉄長堀鶴見緑地線「横堤」歩13分
| Related links 関連リンク | | [Related Sites of this company] 【この会社の関連サイト】 | Contact お問い合せ先 | | (Ltd.) Izumi Home TEL: 0800-603-9313 [Toll free] mobile phone ・ Also available from PHS Caller ID is not notified Please contact the "saw SUUMO (Sumo)" If it does not lead, If the real estate company (株)イズミホームTEL:0800-603-9313【通話料無料】携帯電話・PHSからもご利用いただけます 発信者番号は通知されません 「SUUMO(スーモ)を見た」と問い合わせください つながらない方、不動産会社の方は
| Land of the right form 土地の権利形態 | | Ownership 所有権 | Building condition 建築条件 | | With 付 | Time delivery 引き渡し時期 | | Consultation 相談 | Land category 地目 | | Residential land 宅地 | Use district 用途地域 | | Semi-industrial 準工業 | Overview and notices その他概要・特記事項 | | Facilities: Public Water Supply, This sewage, City gas 設備:公営水道、本下水、都市ガス | Company profile 会社概要 | | <Marketing alliance (agency)> Osaka governor (5) No. 043969 (Ltd.) Izumi home Yubinbango536-0011 Osaka-shi, Osaka Joto-ku Hanaten'nishi 3-4-4 <販売提携(代理)>大阪府知事(5)第043969号(株)イズミホーム〒536-0011 大阪府大阪市城東区放出西3-4-4 |
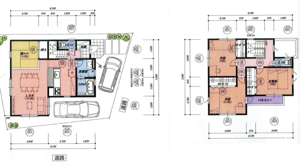
Compartment view + building plan example区画図+建物プラン例  Building plan example, Land price 23.2 million yen, Land area 102.3 sq m , Building price 15.8 million yen, Building area 97.7 sq m building plan example building price 15.8 million yen, Building area 96, 88 sq m Land price 23.2 million Land area 103, 30 sq m (30, 94 square meters) with Land and building a total of 38 million yen
建物プラン例、土地価格2320万円、土地面積102.3m2、建物価格1580万円、建物面積97.7m2 建物プラン例建物価格1580万円、建物面積96、88m2 土地価格2320万 土地面積103、30m2(30、94坪)付 土地建物合計3800万円
Building plan example (Perth ・ appearance)建物プラン例(パース・外観)  Building plan example (1 Issue land) Building price 15.8 million yen, Building area 96, 88 sq m
建物プラン例(1 号地)建物価格1580万円、建物面積96、88m2
Local land photo現地土地写真  Local (September 2013) Shooting
現地(2013年9月)撮影
Location
|