New Homes » Kansai » Osaka prefecture » Yao City
 
| | Osaka Prefecture Yao City 大阪府八尾市 |
| Kintetsu Osaka line "Kawachi Yamamoto" walk 8 minutes 近鉄大阪線「河内山本」歩8分 |
| A quiet residential area "Asahigaoka" to 18 units of the cityscape is the birth of this week soil ・ It will hold a local briefing session of the last 1 compartment on Sunday! ! 閑静な住宅地「旭ヶ丘」に18戸の街並みが誕生今週の 土・日曜日に ラスト1区画の現地説明会を開催します!! |
| ■ By us, It will be the seller of the property. ■ Photo of the building is a current photo of "Happy Town Yao". Streets of this subdivision Ya, Our construction ・ Please help us to confirm the standard of equipment specifications. ■ Facilities that are not fully published in SUUMO ・ Thank many property documents detail also. Please feel free to contact us. ■弊社が、売主の物件になります。■建物の写真は「ハッピータウン八尾」の現在の写真です。本分譲地の街並みや、弊社の施工・標準の設備仕様の確認にお役立てください。■SUUMOに掲載しきれていない設備・物件資料詳細も多数ございます。お気軽にお問い合わせください。 |
Features pickup 特徴ピックアップ | | Parking two Allowed / 2 along the line more accessible / LDK20 tatami mats or more / Energy-saving water heaters / See the mountain / Super close / It is close to the city / Facing south / System kitchen / Bathroom Dryer / Yang per good / All room storage / Flat to the station / Siemens south road / A quiet residential area / Corner lot / Japanese-style room / Shaping land / Mist sauna / Washbasin with shower / Face-to-face kitchen / Barrier-free / Bathroom 1 tsubo or more / 2-story / 2 or more sides balcony / South balcony / Warm water washing toilet seat / Underfloor Storage / The window in the bathroom / TV monitor interphone / High-function toilet / Urban neighborhood / Ventilation good / All living room flooring / Dish washing dryer / Walk-in closet / Water filter / City gas / Flat terrain / Attic storage / Floor heating / Development subdivision in / Readjustment land within 駐車2台可 /2沿線以上利用可 /LDK20畳以上 /省エネ給湯器 /山が見える /スーパーが近い /市街地が近い /南向き /システムキッチン /浴室乾燥機 /陽当り良好 /全居室収納 /駅まで平坦 /南側道路面す /閑静な住宅地 /角地 /和室 /整形地 /ミストサウナ /シャワー付洗面台 /対面式キッチン /バリアフリー /浴室1坪以上 /2階建 /2面以上バルコニー /南面バルコニー /温水洗浄便座 /床下収納 /浴室に窓 /TVモニタ付インターホン /高機能トイレ /都市近郊 /通風良好 /全居室フローリング /食器洗乾燥機 /ウォークインクロゼット /浄水器 /都市ガス /平坦地 /屋根裏収納 /床暖房 /開発分譲地内 /区画整理地内 | Event information イベント情報 | | Local guidance meeting (please visitors to direct local) schedule / Every Saturday, Sunday and public holidays time / 10:00 ~ 17:00 Sat ・ Sunday ・ public holiday 10:00 ~ 17:00 on weekdays (except Wednesday) 13:00 ~ By a plurality of our subdivision in the neighborhood 17:00 Yao city, It can also tour of the structure and specifications of the building under construction for more information on local salesperson, Please tell your request. [Announcement of the year-end and New Year holiday] 2012, December 26, 2008 ~ Heisei actually without permission until January 4, 2013, We will consider it as the year-end and New Year holiday. 現地案内会(直接現地へご来場ください)日程/毎週土日祝時間/10:00 ~ 17:00土・日曜日・祝日 10:00 ~ 17:00平日(水曜日を除く) 13:00 ~ 17:00八尾市内の近隣にある複数の弊社分譲地にて、建築中の建物の構造や仕様等の見学もしていただけます詳しくは現地販売員に、ご要望をお伝えください。【年末年始の休業のお知らせ】平成24年12月26日 ~ 平成25年1月4日まで誠に勝手ながら、年末年始の休業日とさせていただきます。 | Price 価格 | | 26,370,000 yen ~ Sales of only 33.8 million yen land also acceptable (19.7 million) ※ No construction conditions 2637万円 ~ 3380万円土地のみの販売も可(1970万) ※建築条件なし | Floor plan 間取り | | 3DK ~ 4LDK 3DK ~ 4LDK | Units sold 販売戸数 | | 18 units 18戸 | Total units 総戸数 | | 18 units 18戸 | Land area 土地面積 | | 70 sq m ~ 105 sq m 70m2 ~ 105m2 | Building area 建物面積 | | 73.09 sq m ~ 100 sq m (registration) 73.09m2 ~ 100m2(登記) | Driveway burden-road 私道負担・道路 | | Road width: 4.0m or more. Asphaltic pavement, ※ Contact road is a public road and the development road. Driveway burden does not have. 道路幅:4.0m以上。アスファルト舗装、※接道は公道および開発道路。私道負担は有りません。 | Completion date 完成時期(築年月) | | 4 months after the contract 契約後4ヶ月 | Address 住所 | | Osaka Prefecture Yao Asahigaoka 2 大阪府八尾市旭ケ丘2 | Traffic 交通 | | Kintetsu Osaka line "Kawachi Yamamoto" walk 8 minutes Kintetsu Osaka line "Kintetsu Yao" walk 10 minutes 近鉄大阪線「河内山本」歩8分 近鉄大阪線「近鉄八尾」歩10分
| Related links 関連リンク | | [Related Sites of this company] 【この会社の関連サイト】 | Contact お問い合せ先 | | Hanna housing (Ltd.) TEL: 072-996-3327 Please inquire as "saw SUUMO (Sumo)" 阪奈住宅(株)TEL:072-996-3327「SUUMO(スーモ)を見た」と問い合わせください | Most price range 最多価格帯 | | 27 million yen ・ 28 million yen ・ 31 million yen ・ 32 million yen ・ 29 million yen (each 6 units) 2700万円台・2800万円台・3100万円台・3200万円台・2900万円台(各6戸) | Building coverage, floor area ratio 建ぺい率・容積率 | | Kenpei rate: 60%, Volume ratio: 200% 建ペい率:60%、容積率:200% | Time residents 入居時期 | | 4 months after the contract 契約後4ヶ月 | Land of the right form 土地の権利形態 | | Ownership 所有権 | Structure and method of construction 構造・工法 | | Wooden 2-story (framing method) 木造2階建(軸組工法) | Use district 用途地域 | | One dwelling 1種住居 | Land category 地目 | | Residential land 宅地 | Overview and notices その他概要・特記事項 | | Building confirmation number: 05175 建築確認番号:05175 | Company profile 会社概要 | | <Seller> governor of Osaka (10) Article 018784 No. Hanna Housing Corporation Yubinbango581-0019 Osaka Yao City Minamikozakaai cho 1-1-11 <売主>大阪府知事(10)第018784号阪奈住宅(株)〒581-0019 大阪府八尾市南小阪合町1-1-11 |
Local appearance photo現地外観写真  Daylighting per southeast corner lot ・ Ventilation is good.
東南角地につき 採光・通風は良好です。
Kitchenキッチン  With automatic dishwasher system Kitchen. Many cabinet, It is a feature that can keep the cooking space and clean. (standard equipment)
自動食洗機付システムキッチン。キャビネットも多く、調理スペースをすっきりと保てることが特徴です。(標準装備)
Other localその他現地  To mark the local billboard, Please not come
この現地看板を目印に、お越しくださいませ
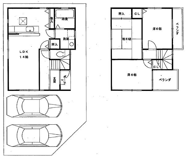
Floor plan間取り図  Price 33,800,000 yen, 3LDK, Land area 93 sq m , Building area 76.14 sq m
価格3380万円、3LDK、土地面積93m2、建物面積76.14m2
Same specifications photos (appearance)同仕様写真(外観)  Entrance approach of single-family unique is the "home of the face". Parking, of course, You can also expand or the children of the pool.
一戸建てならではのエントランスアプローチが「我が家の顔」となります。駐車はもちろん、お子様のプールを広げたりもできます。
Same specifications photos (living)同仕様写真(リビング)  Spacious living. While out of the sense of unity with the kitchen, We are conscious of the air flow so that the smell of cooking does not come leak in the living room.
広々としたリビング。キッチンとの一体感を出しつつも、調理のにおいがリビングに漏れてこないように気流を配慮しています。
Bathroom浴室  The introduction is the bathroom of the plan. Since the bathroom dryer comes with, Also to plump dry out the laundry rainy season. (standard equipment)
導入予定のバスルームです。浴室乾燥機がついていますので、梅雨期も洗濯物をふっくら乾かせます。(標準装備)
Kitchenキッチン  Indoor (10 May 2012) shooting
室内(2012年10月)撮影
Wash basin, toilet洗面台・洗面所  Wash basin with plenty of Maeru storage capacity. (standard equipment)
たっぷりとしまえる収納力を備えた洗面台。(標準装備)
Receipt収納  It will be in the attic storage of our construction.
弊社施工の屋根裏収納になります。
Parking lot駐車場  Local (10 May 2012) shooting
現地(2012年10月)撮影
Balconyバルコニー  Local (10 May 2012) shooting
現地(2012年10月)撮影
Same specifications photos (Other introspection)同仕様写真(その他内観)  It has adopted a double door that can be door. Loading and unloading of the large luggage is also easy to. There are also a lot of available door to be able to meet the various needs.
両開き可能なドアを採用しました。大きな荷物の出し入れもしやすいです。さまざまなご要望にお応えできるようにドアもたくさんご用意があります。
The entire compartment Figure全体区画図  It is a community town of all 19 compartments.
全19区画のコミュニティータウンです。
Other localその他現地  Local completed ・ We are tenants already cityscape!
現地完成・ご入居済みの街並みです!
Otherその他  Japanese style room
和室
Bathroom浴室  Indoor (10 May 2012) shooting
室内(2012年10月)撮影
Same specifications photos (Other introspection)同仕様写真(その他内観)  There is also a living-in stairs adoption of the plan
リビングイン階段採用のプランもございます
Junior high school中学校  East junior high school
東中学
Supermarketスーパー  Yao Ario
八尾アリオ
 Seibu Department Stores, Ltd.
西武百貨店
 life
ライフ
Location
|