New Homes » Kansai » Osaka prefecture » Yao City
 
| | Osaka Prefecture Yao City 大阪府八尾市 |
| Kintetsu Osaka line "Kintetsu Yao" walk 15 minutes 近鉄大阪線「近鉄八尾」歩15分 |
| ◆ Parkside Yao Kayafuri All four compartment 30 square meters or more + o ☆ *.. +o ☆ ◆ All-electric house of origin of a fire safe ◆ Free Plan correspondence ◆ Child-rearing environment enhancement in the park adjacent ◆ Shopping Ario Yao is within walking distance ◆パークサイド八尾萱振 全4区画30坪以上+o☆*.。+o☆◆火の元安心のオール電化住宅◆フリープラン対応◆公園隣接で子育て環境充実◆買い物はアリオ八尾が徒歩圏 |
| --------------------------------------- ◇ There compartment of the southeast corner lot and three-sided free. ◇ free plan supported by all-electric homes! ◇ sales of only the land is also possible. A No. land 17.8 million yen ~ ◇ also jewels model house where you can also look at parenting mom park on the north side is adjacent peace ◇ immediately. ◇ large-scale commercial facilities and eateries that including Ario Yao also convenient because it is within walking distance ☆ ----*----*----*----*----*----*----*----*----- ■ Because you actually can see, Please feel free to contact us. ■ Yao City of newly built single-family if the House Freedom Yao shop +o ☆ *. + O ◇ ---- * ---- * ---- * ---- * ---- * ---- * ---- * ---- * ----- ---------------------------------------◇南東角地や3面空きの区画有ります。◇オール電化住宅でフリープラン対応!◇土地のみの販売も可能です。A号地 1,780万円 ~ ◇北側に公園が隣接しており子育てママも安心◇すぐにご覧いただけるモデルハウスも御座います。◇アリオ八尾をはじめとした大型商業施設や飲食店も徒歩圏内だから便利☆----*----*----*----*----*----*----*----*-----■実際にご覧いただけますので、お気軽にお問合せ下さい。■八尾市の新築一戸建てならハウスフリーダム八尾店 +o☆*.+o◇----*----*----*----*----*----*----*----*----- |
Features pickup 特徴ピックアップ | | Parking two Allowed / It is close to the city / Facing south / System kitchen / Bathroom Dryer / Flat to the station / LDK15 tatami mats or more / Around traffic fewer / Corner lot / Japanese-style room / Shaping land / Face-to-face kitchen / Toilet 2 places / Bathroom 1 tsubo or more / 2-story / Mu front building / IH cooking heater / Dish washing dryer / All-electric 駐車2台可 /市街地が近い /南向き /システムキッチン /浴室乾燥機 /駅まで平坦 /LDK15畳以上 /周辺交通量少なめ /角地 /和室 /整形地 /対面式キッチン /トイレ2ヶ所 /浴室1坪以上 /2階建 /前面棟無 /IHクッキングヒーター /食器洗乾燥機 /オール電化 | Event information イベント情報 | | Local guide Board (Please be sure to ask in advance) schedule / Every Saturday, Sunday and public holidays time / 10:00 ~ 18:00 every 18 o'clock Saturday, Sunday and public holidays 10 It is in local briefings. 現地案内会(事前に必ずお問い合わせください)日程/毎週土日祝時間/10:00 ~ 18:00毎週土日祝10時から18時 現地説明会開催中です。 | Price 価格 | | 29,800,000 yen ~ 31,800,000 yen 2980万円 ~ 3180万円 | Floor plan 間取り | | 4LDK 4LDK | Units sold 販売戸数 | | 4 units 4戸 | Total units 総戸数 | | 4 units 4戸 | Land area 土地面積 | | 99.65 sq m ~ 100.08 sq m (registration) 99.65m2 ~ 100.08m2(登記) | Building area 建物面積 | | 93.15 sq m ~ 98.01 sq m (registration) 93.15m2 ~ 98.01m2(登記) | Driveway burden-road 私道負担・道路 | | Road width: 4.7m, Asphaltic pavement 道路幅:4.7m、アスファルト舗装 | Completion date 完成時期(築年月) | | 4 months after the contract 契約後4ヶ月 | Address 住所 | | Osaka Prefecture Yao City Kayafuri cho 2-40-1 大阪府八尾市萱振町2-40-1 | Traffic 交通 | | Kintetsu Osaka line "Kintetsu Yao" walk 15 minutes Kintetsu Osaka line "Kawachi Yamamoto" walk 26 minutes Kintetsu Osaka line "Kyuhoji opening" walk 25 minutes 近鉄大阪線「近鉄八尾」歩15分 近鉄大阪線「河内山本」歩26分 近鉄大阪線「久宝寺口」歩25分
| Related links 関連リンク | | [Related Sites of this company] 【この会社の関連サイト】 | Person in charge 担当者より | | Person in charge of Matsumoto Taiko Age: 20 Daigyokai Experience: 8 years Yao ・ Higashi-Osaka City ・ Fujiidera ・ Yao City, we deal with a large number of listing of the adjacent area, such as Habikino. Please feel free to contact us. Quick ・ We will proceed with appropriate suggestions standing in the customer's point of view. 担当者松本 大幸年齢:20代業界経験:8年八尾市・東大阪市・藤井寺市・羽曳野市といった八尾市隣接エリアの物件情報を多数扱っております。お気軽にお問い合わせください。迅速・適切にお客様の立場にたってご提案させていただきます。 | Contact お問い合せ先 | | TEL: 0800-603-2310 [Toll free] mobile phone ・ Also available from PHS Caller ID is not notified Please contact the "saw SUUMO (Sumo)" If it does not lead, If the real estate company TEL:0800-603-2310【通話料無料】携帯電話・PHSからもご利用いただけます 発信者番号は通知されません 「SUUMO(スーモ)を見た」と問い合わせください つながらない方、不動産会社の方は
| Most price range 最多価格帯 | | 31 million yen (3 units) 3100万円台(3戸) | Building coverage, floor area ratio 建ぺい率・容積率 | | Kenpei rate: 60%, Volume ratio: 200% 建ペい率:60%、容積率:200% | Time residents 入居時期 | | 4 months after the contract 契約後4ヶ月 | Land of the right form 土地の権利形態 | | Ownership 所有権 | Structure and method of construction 構造・工法 | | Wooden 2-story (framing method) 木造2階建(軸組工法) | Use district 用途地域 | | One dwelling 1種住居 | Land category 地目 | | Residential land 宅地 | Overview and notices その他概要・特記事項 | | Contact: Matsumoto Taiko, Building confirmation number: No. 12-3948 other 担当者:松本 大幸、建築確認番号:第12-3948号他 | Company profile 会社概要 | | <Mediation> Minister of Land, Infrastructure and Transport (2) No. 007017 (Ltd.) House Freedom Yao shop Yubinbango581-0019 Osaka Yao City Minamikozakaai cho 1-1-1 <仲介>国土交通大臣(2)第007017号(株)ハウスフリーダム八尾店〒581-0019 大阪府八尾市南小阪合町1-1-1 |
Rendering (appearance)完成予想図(外観)  Also You can also select your free appearance interior because it is free plan corresponding
フリープラン対応だから内装も外観もご自由に選べます
 (A No. land model house specification) Rendering
(A号地モデルハウス仕様)完成予想図
 (B No. land) Rendering ※ Free Plan correspondence
(B号地)完成予想図※フリープラン対応
Local photos, including front road前面道路含む現地写真  Local Photos All four compartment 30 square meters or more There is also the southeast corner lot and three-sided free compartment.
現地写真 全4区画30坪以上 南東角地や3面空き区画もあります。
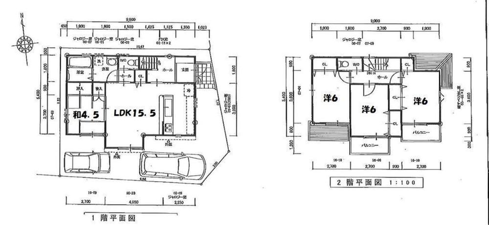
Floor plan間取り図  (A No. land model house specification), Price 31,800,000 yen, 4LDK, Land area 100.08 sq m , Building area 98.01 sq m
(A号地モデルハウス仕様)、価格3180万円、4LDK、土地面積100.08m2、建物面積98.01m2
Local appearance photo現地外観写真  Local Photos All four compartment 30 square meters or more There is also the southeast corner lot and three-sided free compartment.
現地写真 全4区画30坪以上 南東角地や3面空き区画もあります。
Livingリビング  Living Image of
リビングイメージ図
Bathroom浴室  Bathroom image view
浴室イメージ図
Kitchenキッチン  Kitchen image view
キッチンイメージ図
Shopping centreショッピングセンター  Ario until Yao 1108m
アリオ八尾まで1108m
The entire compartment Figure全体区画図  A No. land D Gochi is also available selling land without building conditions.
A号地 D号地は建築条件無しの土地売りも可能です。
Floor plan間取り図  (A No. land), Price 31.5 million yen, 4LDK, Land area 99.65 sq m , Building area 93.69 sq m
(A号地)、価格3150万円、4LDK、土地面積99.65m2、建物面積93.69m2
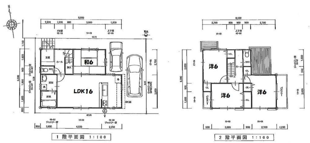
 (D No. land), Price 31,800,000 yen, 4LDK, Land area 100.05 sq m , Building area 93.15 sq m
(D号地)、価格3180万円、4LDK、土地面積100.05m2、建物面積93.15m2
 (B No. land), Price 29,800,000 yen, 4LDK, Land area 99.65 sq m , Building area 93.69 sq m
(B号地)、価格2980万円、4LDK、土地面積99.65m2、建物面積93.69m2
Local appearance photo現地外観写真  Local Photos All four compartment 30 square meters or more There is also the southeast corner lot and three-sided free compartment.
現地写真 全4区画30坪以上 南東角地や3面空き区画もあります。
Junior high school中学校  236m until Yao Municipal Yao Junior High School
八尾市立八尾中学校まで236m
Primary school小学校  488m until Yao Municipal Nagaike Elementary School
八尾市立長池小学校まで488m
Supermarketスーパー  Bandai 681m to Yao shop
万代八尾店まで681m
Rendering (appearance)完成予想図(外観)  (A No. land) Rendering ※ Free Plan correspondence
(A号地)完成予想図※フリープラン対応
Presentプレゼント ![Present. It can also be used in a family restaurant and convenience stores [Kuokado] Present! "Because precious vacation I want to go out to look for My Home, Not be able to convince the children that want to go to play, , , "Resolve those concerns! After the fun is waiting even after the tour of the boring home for the children ・ ・ ・ surely, You should be able to endure a little! ※ On the reservation by phone or e-mail, Attached to your family that had you coming to the store (1 family), We will consider it as 2000 yen.](/images/osaka/yao/8bdc6e0150.jpg) It can also be used in a family restaurant and convenience stores [Kuokado] Present! "Because precious vacation I want to go out to look for My Home, Not be able to convince the children that want to go to play, , , "Resolve those concerns! After the fun is waiting even after the tour of the boring home for the children ・ ・ ・ surely, You should be able to endure a little! ※ On the reservation by phone or e-mail, Attached to your family that had you coming to the store (1 family), We will consider it as 2000 yen.
ファミレスやコンビニでも使える【クオカード】プレゼント!「せっかくの休みだからマイホーム探しに出かけたいけど、遊びに行きたいお子様を説得できない、、、」そんな悩みを解決!お子様にとっては退屈な家の見学もそのあとに楽しみが待っているとしたら・・・きっと、少しはこらえてくれるはずです!※お電話またはメールにてご予約の上、ご来店いただきましたご家族(1家族)に付、2000円分とさせていただきます。
Location
|