New Homes » Kansai » Osaka prefecture » Yao City
 
| | Osaka Prefecture Yao City 大阪府八尾市 |
| Kintetsu shigi line "Hattori River" walk 16 minutes 近鉄信貴線「服部川」歩16分 |
| ■ Land 40 square meters or more of the spacious grounds ■ 2 × 4 of the peace of mind ■ Free Plan ■土地40坪以上の広々敷地■安心の2×4■フリープラン |
| Limit 1 House nestled in spacious grounds ゆったりとした敷地に佇む限定1邸 |
Features pickup 特徴ピックアップ | | Parking three or more possible / 2 along the line more accessible / System kitchen / Yang per good / All room storage / LDK15 tatami mats or more / Face-to-face kitchen / Bathroom 1 tsubo or more / 2-story / Warm water washing toilet seat 駐車3台以上可 /2沿線以上利用可 /システムキッチン /陽当り良好 /全居室収納 /LDK15畳以上 /対面式キッチン /浴室1坪以上 /2階建 /温水洗浄便座 | Price 価格 | | 32,800,000 yen 3280万円 | Floor plan 間取り | | 4LDK 4LDK | Units sold 販売戸数 | | 1 units 1戸 | Total units 総戸数 | | 1 units 1戸 | Land area 土地面積 | | 133.47 sq m (registration) 133.47m2(登記) | Building area 建物面積 | | 92.56 sq m (registration) 92.56m2(登記) | Driveway burden-road 私道負担・道路 | | Nothing, East 5.4m width (contact the road width 7.1m) 無、東5.4m幅(接道幅7.1m) | Completion date 完成時期(築年月) | | Three months after the contract 契約後3ヶ月 | Address 住所 | | Osaka Prefecture Yao City Otake 6 大阪府八尾市大竹6 | Traffic 交通 | | Kintetsu shigi line "Hattori River" walk 16 minutes Kintetsu Osaka line "Kawachi Yamamoto" walk 39 minutes Kintetsu shigi line "Shigisan opening" walk 28 minutes 近鉄信貴線「服部川」歩16分 近鉄大阪線「河内山本」歩39分 近鉄信貴線「信貴山口」歩28分
| Related links 関連リンク | | [Related Sites of this company] 【この会社の関連サイト】 | Person in charge 担当者より | | Person in charge of real-estate and building Matsuda Keiji treats us is always high-ticket items, Which customers are buying is organized a loan of decades N 殆. That's why advanced and delicate is our job, Always correct the collar, Do not without sincere and warm. This has been active bear in mind every day. 担当者宅建松田 圭治私達は常に高額商品を扱い、殆んどのお客様は何十年ものローンを組まれて購入されます。だからこそ私達の仕事は高度で繊細、常に襟を正し、誠実でかつ暖かくなくてはなりません。日々これを肝に銘じ活動しています。 | Contact お問い合せ先 | | TEL: 0800-603-2418 [Toll free] mobile phone ・ Also available from PHS Caller ID is not notified Please contact the "saw SUUMO (Sumo)" If it does not lead, If the real estate company TEL:0800-603-2418【通話料無料】携帯電話・PHSからもご利用いただけます 発信者番号は通知されません 「SUUMO(スーモ)を見た」と問い合わせください つながらない方、不動産会社の方は
| Building coverage, floor area ratio 建ぺい率・容積率 | | 60% ・ 200% 60%・200% | Time residents 入居時期 | | Three months after the contract 契約後3ヶ月 | Land of the right form 土地の権利形態 | | Ownership 所有権 | Structure and method of construction 構造・工法 | | Wooden 2-story (2 × 4 construction method) 木造2階建(2×4工法) | Use district 用途地域 | | Urbanization control area 市街化調整区域 | Overview and notices その他概要・特記事項 | | Contact: Matsuda Keiji, Facilities: Public Water Supply, Building Permits reason: land sale by the development permit, etc., Building confirmation number: three months after the contract, Parking: car space 担当者:松田 圭治、設備:公営水道、建築許可理由:開発許可等による分譲地、建築確認番号:契約後3か月、駐車場:カースペース | Company profile 会社概要 | | <Seller> governor of Osaka (4) No. 044308 Mazda Home Co., Ltd. Yubinbango581-0007 Osaka Yao Konan-cho 1-3-26 <売主>大阪府知事(4)第044308号マツダホーム(株)〒581-0007 大阪府八尾市光南町1-3-26 |
Rendering (appearance)完成予想図(外観)  Plan Floor Perth
プラン間取りパース
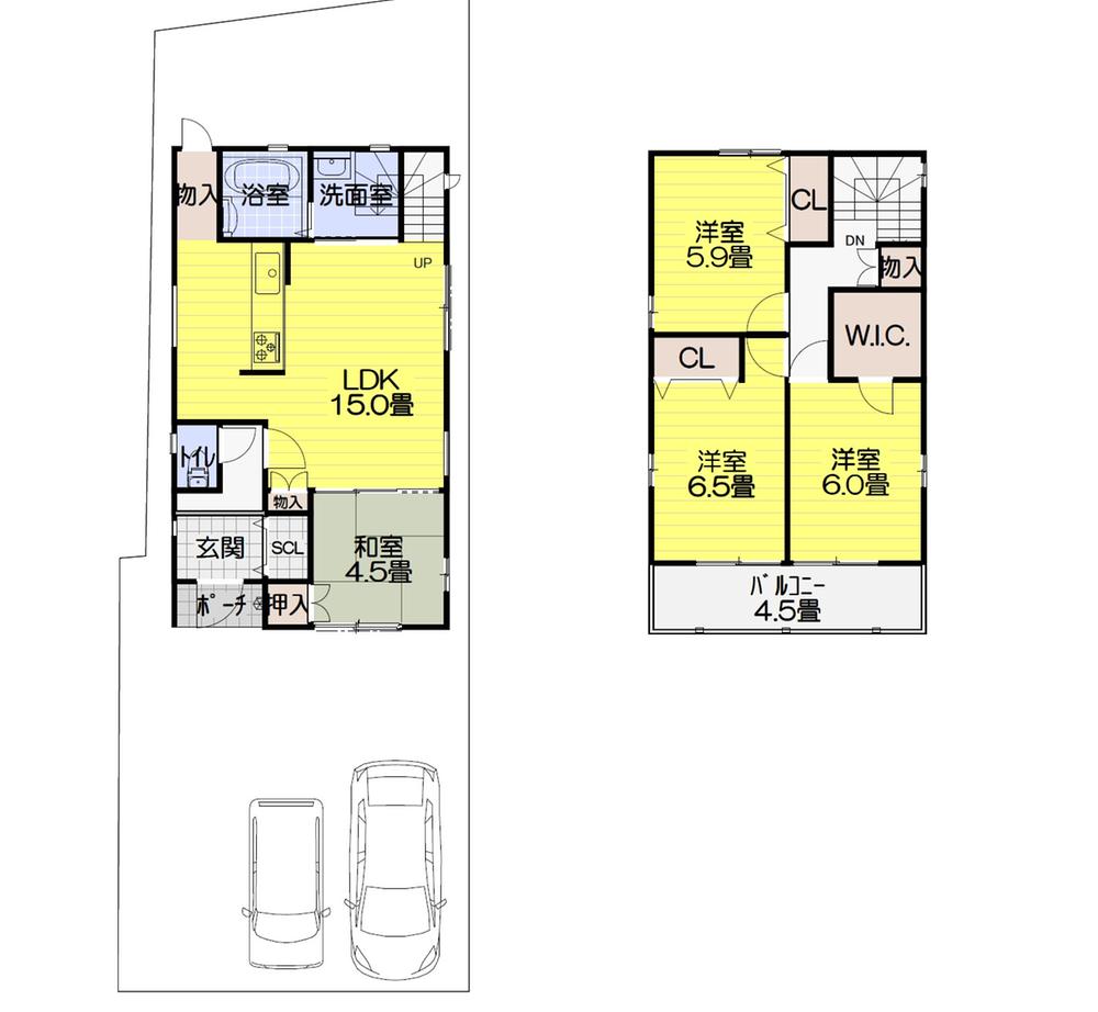
Floor plan間取り図  32,800,000 yen, 4LDK, Land area 133.47 sq m , Building area 92.56 sq m plan Floor
3280万円、4LDK、土地面積133.47m2、建物面積92.56m2 プラン間取り
Otherその他  Our construction cases appearance
弊社施工例 外観
Local photos, including front road前面道路含む現地写真  Local Photos
現地写真
Supermarketスーパー  838m until Bandai Gakuonji shop
万代楽音寺店まで838m
Otherその他  Our construction cases toilet
弊社施工例 トイレ
Drug storeドラッグストア  Raifoto 950m until Yao Mizukoshi shop
ライフォート八尾水越店まで950m
Otherその他  Our construction cases bathroom
弊社施工例 浴室
Home centerホームセンター  Nitori 1108m until Yao Outer Ring shop
ニトリ八尾外環状店まで1108m
Otherその他  Our construction cases Washroom
弊社施工例 洗面所
Junior high school中学校  748m until Yao City Takayasu's junior high school
八尾市立高安中学校まで748m
Otherその他  Our construction cases living
弊社施工例 リビング
Kindergarten ・ Nursery幼稚園・保育園  Chizuka 998m to nursery school
千塚保育園まで998m
Otherその他  Our construction cases kitchen
弊社施工例 キッチン
Post office郵便局  Chizuka 813m until the post office
千塚郵便局まで813m
Otherその他  Our construction cases Japanese-style room that incorporate a sense of fun
弊社施工例 遊び心と取り入れた和室
Bank銀行  JA Osaka Nakagochi Takayasu to branch 1277m
JA大阪中河内高安支店まで1277m
Otherその他  Our construction cases Japanese-style room
弊社施工例 和室
Primary school小学校  682m until Yao Tatsukita Takayasu's elementary school
八尾市立北高安小学校まで682m
Otherその他  Our construction cases living
弊社施工例 リビング
 Our construction cases Entrance storage
弊社施工例 玄関収納
Location
|