New Homes » Kansai » Osaka prefecture » Yao City
 
| | Osaka Prefecture Yao City 大阪府八尾市 |
| JR Kansai Main Line "Yao" walk 13 minutes JR関西本線「八尾」歩13分 |
| ◆ Limited 3 compartment Zenteiminami direction No. 2 place ◆ Solar power generation system installed ◆ All room 6 quires more ◆限定3区画 全邸南向き 2号地◆太陽光発電システム搭載◆全居室6帖以上 |
| -------------------------------------- Yes all Teiminami direction of because orientation in all three compartments . It is life convenient 13-minute walk from fulfilling JR Yao Station Yes commercial facility. It is equipped with 〇 solar power system can be started the eco-friendly New Life. ---- * ---- * ---- * ---- * ---- * ---- * ---- * ---- * ----- ◇ JR Yao Station , Please feel free to contact us + o ☆ *. + O ◇ ◆ Looking for a newly built single-family in Yao City to House Freedom Yao shop ---- * ---- * ---- * ---- * ---- * ---- * ---- --------------------------------------〇全3区画で全邸南向きなので向きを気にせずお好きな間取りの区画が選べます。〇商業施設の充実したJR八尾駅まで徒歩13分で生活至便です。〇太陽光発電システムを搭載していますのでエコなニューライフをスタートできます。----*----*----*----*----*----*----*----*-----◇JR八尾駅周辺で新築一戸建てをお探しの方、お気軽にお問合せ下さい+o☆*.+o◇◆八尾市で新築一戸建てをお探しの方はハウスフリーダム八尾店へ----*----*----*----*----*----*----*----*----- |
Features pickup 特徴ピックアップ | | Solar power system / Pre-ground survey / Year Available / Super close / It is close to the city / Facing south / System kitchen / Yang per good / All room storage / Flat to the station / Siemens south road / A quiet residential area / LDK15 tatami mats or more / Shaping land / Washbasin with shower / Face-to-face kitchen / Wide balcony / 2-story / South balcony / Double-glazing / Underfloor Storage / TV monitor interphone / High-function toilet / Ventilation good / All living room flooring / Water filter / City gas / Flat terrain 太陽光発電システム /地盤調査済 /年内入居可 /スーパーが近い /市街地が近い /南向き /システムキッチン /陽当り良好 /全居室収納 /駅まで平坦 /南側道路面す /閑静な住宅地 /LDK15畳以上 /整形地 /シャワー付洗面台 /対面式キッチン /ワイドバルコニー /2階建 /南面バルコニー /複層ガラス /床下収納 /TVモニタ付インターホン /高機能トイレ /通風良好 /全居室フローリング /浄水器 /都市ガス /平坦地 | Price 価格 | | 25,800,000 yen 2580万円 | Floor plan 間取り | | 3LDK 3LDK | Units sold 販売戸数 | | 1 units 1戸 | Total units 総戸数 | | 3 units 3戸 | Land area 土地面積 | | 85.9 sq m 85.9m2 | Building area 建物面積 | | 86.67 sq m 86.67m2 | Driveway burden-road 私道負担・道路 | | Nothing, South 4.6m width 無、南4.6m幅 | Completion date 完成時期(築年月) | | December 2013 2013年12月 | Address 住所 | | Osaka Prefecture Yao City Matsuyama-cho 1 大阪府八尾市松山町1 | Traffic 交通 | | JR Kansai Main Line "Yao" walk 13 minutes Kintetsu Osaka line "Kintetsu Yao" walk 15 minutes JR Kansai Main Line "Kyuhoji" walk 29 minutes JR関西本線「八尾」歩13分 近鉄大阪線「近鉄八尾」歩15分 JR関西本線「久宝寺」歩29分
| Related links 関連リンク | | [Related Sites of this company] 【この会社の関連サイト】 | Person in charge 担当者より | | Person in charge of Matsumoto Taiko Age: 20 Daigyokai Experience: 8 years Yao ・ Higashi-Osaka City ・ Fujiidera ・ Yao City, we deal with a large number of listing of the adjacent area, such as Habikino. Please feel free to contact us. Quick ・ We will proceed with appropriate suggestions standing in the customer's point of view. 担当者松本 大幸年齢:20代業界経験:8年八尾市・東大阪市・藤井寺市・羽曳野市といった八尾市隣接エリアの物件情報を多数扱っております。お気軽にお問い合わせください。迅速・適切にお客様の立場にたってご提案させていただきます。 | Contact お問い合せ先 | | TEL: 0800-603-2310 [Toll free] mobile phone ・ Also available from PHS Caller ID is not notified Please contact the "saw SUUMO (Sumo)" If it does not lead, If the real estate company TEL:0800-603-2310【通話料無料】携帯電話・PHSからもご利用いただけます 発信者番号は通知されません 「SUUMO(スーモ)を見た」と問い合わせください つながらない方、不動産会社の方は
| Building coverage, floor area ratio 建ぺい率・容積率 | | 60% ・ 200% 60%・200% | Time residents 入居時期 | | 2 months after the contract 契約後2ヶ月 | Land of the right form 土地の権利形態 | | Ownership 所有権 | Structure and method of construction 構造・工法 | | Wooden 2-story 木造2階建 | Use district 用途地域 | | One dwelling 1種住居 | Overview and notices その他概要・特記事項 | | Contact: Matsumoto Taiko, Facilities: Public Water Supply, This sewage, City gas, Building confirmation number: No. Trust 13-2567, Parking: car space 担当者:松本 大幸、設備:公営水道、本下水、都市ガス、建築確認番号:第トラスト13-2567号、駐車場:カースペース | Company profile 会社概要 | | <Mediation> Minister of Land, Infrastructure and Transport (2) No. 007017 (Ltd.) House Freedom Yao shop Yubinbango581-0019 Osaka Yao City Minamikozakaai cho 1-1-1 <仲介>国土交通大臣(2)第007017号(株)ハウスフリーダム八尾店〒581-0019 大阪府八尾市南小阪合町1-1-1 |
Local appearance photo現地外観写真  (December 2013 local shooting)
(2013年12月現地撮影)
 (December 2013 local shooting)
(2013年12月現地撮影)
Local photos, including front road前面道路含む現地写真  (November 2013 local shooting)
(2013年11月現地撮影)
Same specifications photo (kitchen)同仕様写真(キッチン)  The company another site construction cases
同社別現場施工例
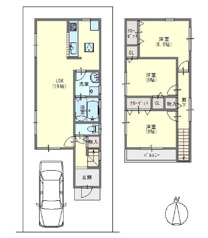
Floor plan間取り図  25,800,000 yen, 3LDK, Land area 85.9 sq m , Building area 86.67 sq m
2580万円、3LDK、土地面積85.9m2、建物面積86.67m2
Same specifications photo (bathroom)同仕様写真(浴室)  The company another site construction cases
同社別現場施工例
Shopping centreショッピングセンター  825m to UNIQLO Yao Aoyama
ユニクロ八尾青山店まで825m
Supermarketスーパー  Until Life Yao shop 761m
ライフ八尾店まで761m
Convenience storeコンビニ  607m to FamilyMart Yao Minamihon cho chome shop
ファミリーマート八尾南本町一丁目店まで607m
Drug storeドラッグストア  534m to super drag sigma Yao shop
スーパードラッグシグマ八尾店まで534m
Junior high school中学校  Yao Municipal Takamichugakko up to 615m
八尾市立高美中学校まで615m
Primary school小学校  605m until Yao Municipal heights Elementary School
八尾市立高美小学校まで605m
Hospital病院  Medical Law virtue Zhuzhou Board Yao Tokushukai 1358m to General Hospital
医療法人徳洲会八尾徳洲会総合病院まで1358m
Post office郵便局  443m until Yao post office
八尾郵便局まで443m
Government office役所  798m to Yao City Hall
八尾市役所まで798m
Presentプレゼント ![Present. It can also be used in a family restaurant and convenience stores [Kuokado] Present! "Because precious vacation I want to go out to look for My Home, Not be able to convince the children that want to go to play, , , "Resolve those concerns! After the fun is waiting even after the tour of the boring home for the children ・ ・ ・ surely, You should be able to endure a little! ※ On the reservation by phone or e-mail, Attached to your family that had you coming to the store (1 family), We will consider it as 2000 yen.](/images/osaka/yao/8bdc6e0150.jpg) It can also be used in a family restaurant and convenience stores [Kuokado] Present! "Because precious vacation I want to go out to look for My Home, Not be able to convince the children that want to go to play, , , "Resolve those concerns! After the fun is waiting even after the tour of the boring home for the children ・ ・ ・ surely, You should be able to endure a little! ※ On the reservation by phone or e-mail, Attached to your family that had you coming to the store (1 family), We will consider it as 2000 yen.
ファミレスやコンビニでも使える【クオカード】プレゼント!「せっかくの休みだからマイホーム探しに出かけたいけど、遊びに行きたいお子様を説得できない、、、」そんな悩みを解決!お子様にとっては退屈な家の見学もそのあとに楽しみが待っているとしたら・・・きっと、少しはこらえてくれるはずです!※お電話またはメールにてご予約の上、ご来店いただきましたご家族(1家族)に付、2000円分とさせていただきます。
Location
|