New Homes » Kansai » Osaka prefecture » Yao City


Osaka Prefecture Yao City
Kintetsu Osaka line "Kawachi Yamamoto" walk 22 minutes
☆ There chambers 6 quires more! ☆ While protecting the family's privacy, Second floor of the LDK in the space of the family hearthstone! ☆ It is a blow with which there is light and airy!
☆ "If available good be home appliances" popular gift in! !
Features pickup
Pre-ground survey / Facing south / System kitchen / Bathroom Dryer / Yang per good / Flat to the station / A quiet residential area / Around traffic fewer / Shaping land / Washbasin with shower / Face-to-face kitchen / Barrier-free / Bathroom 1 tsubo or more / South balcony / Double-glazing / Warm water washing toilet seat / The window in the bathroom / Atrium / TV monitor interphone / Ventilation good / All living room flooring / Dish washing dryer / Three-story or more / City gas / Flat terrain
Price
23.8 million yen
Floor plan
4LDK
Units sold
1 units
Total units
1 units
Land area
69.64 sq m (registration)
Building area
98.82 sq m (registration)
Driveway burden-road
Nothing, South 4m width
Completion date
March 2014
Address
Osaka Prefecture Yao City Obata-cho 4
Traffic
Kintetsu Osaka line "Kawachi Yamamoto" walk 22 minutes
Related links
[Related Sites of this company]
Contact
TEL: 0800-602-6601 [Toll free] mobile phone ・ Also available from PHS
Caller ID is not notified
Please contact the "saw SUUMO (Sumo)"
If it does not lead, If the real estate company
Building coverage, floor area ratio
60% ・ 200%
Time residents
March 2014 schedule
Land of the right form
Ownership
Structure and method of construction
Wooden three-story (framing method)
Use district
Two mid-high
Overview and notices
Facilities: Public Water Supply, This sewage, City gas, Building confirmation number: RS, Parking: car space
Company profile
<Marketing alliance (mediated)> governor of Osaka (2) No. 051345 (Ltd.) World ・ Wan Yao shop Yubinbango581-0801 Osaka Yao City Yamashiro-cho, 1-2-8


Local appearance photo

Local appearance photo.  ☆ Rendering ☆ Facing south ・ Day is good!
☆ Rendering ☆ Facing south ・ Day is good!

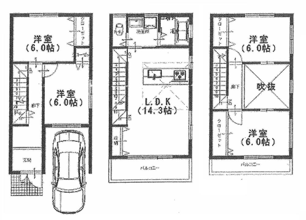
Floor plan

Floor plan. 23.8 million yen, 4LDK, Land area 69.64 sq m , Building area 98.82 sq m   ☆ Bright and airy with vaulted ceiling!
23.8 million yen, 4LDK, Land area 69.64 sq m , Building area 98.82 sq m ☆ Bright and airy with vaulted ceiling!

Primary school

Primary school. 700m until Yamamoto elementary school
700m until Yamamoto elementary school

Junior high school

Junior high school. Kaminoshima 1500m until junior high school
Kaminoshima 1500m until junior high school

Present

Present.  ☆ To those who gave contact us by phone, Your conclusion of a contract at the time [Futon dedicated mite cleaner of light clean mechanism equipped with a doctor has developed "Reikoppu BG-310JPW"] For free! 50 cars limited until end of January! !
☆ To those who gave contact us by phone, Your conclusion of a contract at the time [Futon dedicated mite cleaner of light clean mechanism equipped with a doctor has developed "Reikoppu BG-310JPW"] For free! 50 cars limited until end of January! !



Location