New Homes » Kanto » Saitama » Ageo
 
| | Saitama Prefecture Ageo 埼玉県上尾市 |
| JR Takasaki Line "Ageo" walk 19 minutes JR高崎線「上尾」歩19分 |
| [Newly built single-family all seven buildings sale! Was building completed! ! ! Preview available] Bathroom Dryer ・ Warm water washing toilet seat ・ Face-to-face counter system kitchen, etc., If available convenient facilities enhancement! Storage is also enhanced. 【新築戸建全7棟販売中!建物完成しました!!!内覧可能です】浴室乾燥機・温水洗浄便座・対面式カウンターシステムキッチンなど、あったら便利な設備充実!収納も充実です。 |
| Popular face-to-face counter kitchen to recommend is a wife who are looking for a single-family new construction, of course, Even your laundry on a rainy day with peace of mind bathroom dryer! Car space 2 cars. Located in a quiet residential area. Neighborhood shopping facility enhancement! In front the park living environment, It is the perfect property to the child-rearing environment. ※ Building 3, 5 Building was finished. 新築の戸建をお探しの方おすすめです奥様に人気の対面式カウンターキッチンはもちろん、雨の日のお洗濯も安心浴室乾燥機付!カースペース2台分。閑静な住宅街にあります。近隣買物施設充実!目の前は公園生活環境、子育て環境に最適な物件です。※3号棟、5号棟終了しました。 |
Features pickup 特徴ピックアップ | | Measures to conserve energy / Corresponding to the flat-35S / Airtight high insulated houses / Pre-ground survey / Seismic fit / Year Available / Parking three or more possible / Super close / It is close to the city / Facing south / System kitchen / Yang per good / All room storage / Flat to the station / Siemens south road / A quiet residential area / LDK15 tatami mats or more / Around traffic fewer / Or more before road 6m / Corner lot / Japanese-style room / Shaping land / Garden more than 10 square meters / garden / Washbasin with shower / Face-to-face kitchen / Wide balcony / 3 face lighting / Barrier-free / Toilet 2 places / Bathroom 1 tsubo or more / 2-story / 2 or more sides balcony / South balcony / Double-glazing / Otobasu / Warm water washing toilet seat / Nantei / Underfloor Storage / The window in the bathroom / TV monitor interphone / Leafy residential area / Urban neighborhood / Mu front building / Ventilation good / Good view / Walk-in closet / All room 6 tatami mats or more / Water filter / / All rooms are two-sided lighting / A large gap between the neighboring house / Fireworks viewing / Flat terrain / Development subdivision in / Readjustment land within 省エネルギー対策 /フラット35Sに対応 /高気密高断熱住宅 /地盤調査済 /耐震適合 /年内入居可 /駐車3台以上可 /スーパーが近い /市街地が近い /南向き /システムキッチン /陽当り良好 /全居室収納 /駅まで平坦 /南側道路面す /閑静な住宅地 /LDK15畳以上 /周辺交通量少なめ /前道6m以上 /角地 /和室 /整形地 /庭10坪以上 /庭 /シャワー付洗面台 /対面式キッチン /ワイドバルコニー /3面採光 /バリアフリー /トイレ2ヶ所 /浴室1坪以上 /2階建 /2面以上バルコニー /南面バルコニー /複層ガラス /オートバス /温水洗浄便座 /南庭 /床下収納 /浴室に窓 /TVモニタ付インターホン /緑豊かな住宅地 /都市近郊 /前面棟無 /通風良好 /眺望良好 /ウォークインクロゼット /全居室6畳以上 /浄水器 /都市ガス /全室2面採光 /隣家との間隔が大きい /花火大会鑑賞 /平坦地 /開発分譲地内 /区画整理地内 | Event information イベント情報 | | Local tours (please visitors to direct local) schedule / Every Saturday and Sunday time / 10:00 ~ 17:00 [Your visit Campaign] For those who come directly to the local, Present! Get answers to a questionnaire by the procedure are described in the dedicated card, 1,000 yen worth of gift certificate gift 現地見学会(直接現地へご来場ください)日程/毎週土日時間/10:00 ~ 17:00【ご来場キャンペーン実施中】現地に直接来られた方に、プレゼント!専用のカードに記載されている手順でアンケートにお答えいただくと、1,000円相当のギフト券プレゼント | Property name 物件名 | | Libre Garden S Ageo Asamadai リーブルガーデン S 上尾市浅間台 | Price 価格 | | 31,300,000 yen ~ 33,800,000 yen 3130万円 ~ 3380万円 | Floor plan 間取り | | 4LDK 4LDK | Units sold 販売戸数 | | 7 units 7戸 | Total units 総戸数 | | 8 units 8戸 | Land area 土地面積 | | 147.94 sq m ~ 165.25 sq m (44.75 tsubo ~ 49.98 square meters) 147.94m2 ~ 165.25m2(44.75坪 ~ 49.98坪) | Building area 建物面積 | | 104.33 sq m ~ 105.99 sq m (31.55 tsubo ~ 32.06 square meters) 104.33m2 ~ 105.99m2(31.55坪 ~ 32.06坪) | Driveway burden-road 私道負担・道路 | | Road width: 4m ~ 6m 道路幅:4m ~ 6m | Completion date 完成時期(築年月) | | 2013 late October 2013年10月下旬 | Address 住所 | | Saitama Prefecture Ageo Asamadai 3-12 No. part of the 10 and 8 埼玉県上尾市浅間台3-12番10及び8の一部 | Traffic 交通 | | JR Takasaki Line "Ageo" walk 19 minutes JR Takasaki Line "Kitaageo" walk 19 minutes JR Takasaki Line "Okegawa" walk 43 minutes JR高崎線「上尾」歩19分 JR高崎線「北上尾」歩19分 JR高崎線「桶川」歩43分
| Related links 関連リンク | | [Related Sites of this company] 【この会社の関連サイト】 | Contact お問い合せ先 | | TEL: 0800-601-3749 [Toll free] mobile phone ・ Also available from PHS Caller ID is not notified Please contact the "saw SUUMO (Sumo)" If it does not lead, If the real estate company TEL:0800-601-3749【通話料無料】携帯電話・PHSからもご利用いただけます 発信者番号は通知されません 「SUUMO(スーモ)を見た」と問い合わせください つながらない方、不動産会社の方は
| Building coverage, floor area ratio 建ぺい率・容積率 | | Kenpei rate: 60%, Volume ratio: 100% 建ペい率:60%、容積率:100% | Time residents 入居時期 | | Consultation 相談 | Land of the right form 土地の権利形態 | | Ownership 所有権 | Structure and method of construction 構造・工法 | | Wooden 2-story (slate 葺) 木造2階建(スレート葺) | Construction 施工 | | One construction Co., Ltd. 一建設株式会社 | Use district 用途地域 | | One low-rise 1種低層 | Land category 地目 | | Residential land 宅地 | Other limitations その他制限事項 | | Shade limit Yes, Corner-cutting Yes 日影制限有、隅切り有 | Overview and notices その他概要・特記事項 | | Building confirmation number: No. 13UDI3S Ken 00661 (1 Building) ~ No. 13UDI3S Ken 00667 (7 Building) 建築確認番号:第13UDI3S建00661号(1号棟) ~ 第13UDI3S建00667号(7号棟) | Company profile 会社概要 | | <Marketing alliance (agency)> Saitama Governor (5) No. 017042 (Corporation) All Japan Real Estate Association (Corporation) metropolitan area real estate Fair Trade Council member (with) hillocks Omiya Yubinbango331-0812 Saitama city north district Miyahara-cho 3-226-3 Kato building <販売提携(代理)>埼玉県知事(5)第017042号(公社)全日本不動産協会会員 (公社)首都圏不動産公正取引協議会加盟(有)ヒロックス大宮店〒331-0812 埼玉県さいたま市北区宮原町3-226-3 加藤ビル |
Local appearance photo現地外観写真  Dirt in rainwater, Forever keep the beautiful appearance "nano hydrophilic micro" use
雨水で汚れを落とし、いつまでも美しい外観を保つ「ナノ親水マイクロ」使用
 4 Building appearance! (2013 October shooting)
4号棟外観!(平成25年10月撮影)
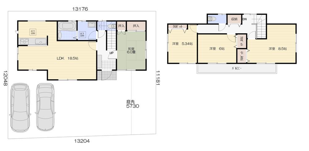
4 Building is a floor plan of the room. Each Building, Living measuring shape, It will vary such as the size of the room, Please contact us for more details. 4号棟お部屋の間取りです。各号棟、リビングの広さ形状、居室の広さなど異なりますので、詳細はお問い合わせください。  4 Building is a floor plan of the room.
4号棟お部屋の間取りです。
Kitchenキッチン  Indoor (2013 October shooting) 4 Building Kitchen photo
室内(2013年10月撮影)4号棟キッチン写真
 Indoor (2013 October shooting) 4 Building washroom photo
室内(2013年10月撮影)4号棟洗面所写真
Bathroom浴室  Indoor (2013 October shooting) 4 Building bathroom photo
室内(2013年10月撮影)4号棟浴室写真
Entrance玄関  Indoor (2013 October shooting) 4 Building LDK
室内(2013年10月撮影)4号棟 LDK
Balconyバルコニー  Balcony (October 2013) shooting 1 Building 2 Kaikyoshitsu 8.5 Pledge
バルコニー(2013年10月)撮影1号棟 2階居室 8.5帖
Non-living roomリビング以外の居室  Indoor (10 May 2013) shooting 4 Building Room 6 Pledge photo
室内(2013年10月)撮影4号棟 居室6帖写真
 Indoor (2013 October shooting) 4 Building Room 5.34 Pledge photo
室内(2013年10月撮影)4号棟 居室5.34帖写真
Livingリビング  Indoor (10 May 2013) shooting 1 Building Living photo
室内(2013年10月)撮影1号棟リビング写真
Floor plan間取り図  (1 Building), Price 33,800,000 yen, 4LDK, Land area 147.94 sq m , Building area 105.99 sq m
(1号棟)、価格3380万円、4LDK、土地面積147.94m2、建物面積105.99m2
 (Building 2), Price 32,300,000 yen, 4LDK, Land area 162.17 sq m , Building area 104.33 sq m
(2号棟)、価格3230万円、4LDK、土地面積162.17m2、建物面積104.33m2
 (6 Building), Price 31,800,000 yen, 4LDK, Land area 165.25 sq m , Building area 105.99 sq m
(6号棟)、価格3180万円、4LDK、土地面積165.25m2、建物面積105.99m2
 (7 Building), Price 31,300,000 yen, 4LDK, Land area 165.14 sq m , Building area 104.33 sq m
(7号棟)、価格3130万円、4LDK、土地面積165.14m2、建物面積104.33m2
Station駅  Access is a convenient Ageo Station in Tokyo to 1600m Omiya to JR Takasaki Line "Ageo Station".
JR高崎線「上尾駅」まで1600m 大宮にも都内にもアクセス便利な上尾駅です。
Supermarketスーパー  670m fresh ingredients is equipped to Berg. It is open until 12 pm.
ベルクまで670m 新鮮な食材が揃っています。夜12時まで営業しております。
Convenience storeコンビニ  230m 24-hour until Lawson, ATM is the installation of a convenience store.
ローソンまで230m 24時間営業、ATM設置のコンビニです。
Other Equipmentその他設備  To take full advantage of the dead space of the feet, The pursuit of storage capacity and ease of use "slide type"
足元のデッドスペースをフル活用し、収納力と使い勝手を追求した「スライドタイプ」
 ・ The height of the wash basin is 800mm. Washing the face can also be shampoo also in a comfortable position. ・ It is a bowl shape in pursuit of ease of use. ・ Freshly every type of toothbrush comes with. ・ It can be a wide range of storage from some of the height that you want to stock up small.
・洗面台の高さは800mm。洗顔もシャンプーも楽な姿勢でできます。・使いやすさを追求したボウル形状です。・置き型の歯ブラシ立てが付いています。・ストックしておきたい高さのあるものから小物まで幅広く収納することができます。
 ・ Borderless shape in consideration of the cleaning ease ・ Tornado cleaning to wash all over the inside of the toilet bowl in the double of water flow ・ The pottery surface was coated in slippery at the nano-level "Sefi on Detect" toilet bowl ・ Automatically from "deodorizing", Deodorizing in cooperation switches to suction weight of about 2 times the "power deodorizing"
・お掃除しやすさを考慮したフチなし形状・ダブルの水流で便器内をくまなく洗浄するトルネード洗浄・陶器表面をナノレベルでツルツルにコーティングした「セフィオンテクト」便器・自動で「脱臭」から、吸い込み量約2倍の「パワー脱臭」に切り替わり協力に脱臭
Cooling and heating ・ Air conditioning冷暖房・空調設備  Clean air 24-hour ventilation system which performs plan to the discharge of the supply air and dirty air. By moisture easily accumulate room also forced ventilation at all times, It is also effective in the suppression of condensation and mold.
きれいな空気の給気と汚れた空気の排出を計画的に行う24時間換気システム。湿気のたまりやすい部屋も常時強制的に換気することによって、結露やカビの抑制にも効果的です。
Security equipment防犯設備  Since the button to use the operation is divided into the four corners of the equipment, Press mistake there is less. LED lights slowly light and night of the visitor presses the call button, Also it made a friendly consideration to the eyes of visitors, You can check the firm visitors in color at night in the internal organs lighting
操作に使うボタンは機器の四隅に分けられているので、押し間違いが少なくなります。夜間の来客が呼び出しボタンを押すとLEDライトがゆっくり光り、訪問者の目にも優しい配慮をしましたまた、内臓照明で夜でもカラーでしっかり訪問者を確認することが出来ます
Other Equipmentその他設備  ・ Winding lid ・ Ceiling ventilation fan ・ counter ・ Round lighting one lamp (fluorescent light) ・ Grip bar ・ Towel rack ・ Bifold door
・巻きフタ・天井換気扇・カウンター・丸型照明1灯(蛍光灯)・握りバー・タオル掛け・折り戸
The entire compartment Figure全体区画図  All 7 compartment sectioning view
全7区画区割り図
Other Environmental Photoその他環境写真  340m dental until Kasuga Clinic Mall, pharmacy, Internal medicine, Orthopedics, Equipped dermatology.
春日クリニックモールまで340m 歯科、薬局、内科、整形外科、皮膚科揃っています。
Park公園  Asamadai 50m until the third park
浅間台第3公園まで50m
Station駅  JR Takasaki Line to "Kita-Ageo Station" 1520m
JR高崎線「北上尾駅」まで1520m
Post office郵便局  Asamadai 1240m until the post office
浅間台郵便局まで1240m
Kindergarten ・ Nursery幼稚園・保育園  Asamadai 240m to kindergarten
浅間台幼稚園まで240m
Primary school小学校  1610m to Oishi elementary school
大石小学校まで1610m
Location
|