New Homes » Kanto » Saitama » Asaka
 
| | Saitama Prefecture Asaka 埼玉県朝霞市 |
| Tobu Tojo Line "Asakadai" walk 17 minutes 東武東上線「朝霞台」歩17分 |
| Mom do a one 3 roles "Mam'idea". It was born from the idea of mom in child-rearing. Housework easier dwelling. Clean storage house. Happy Parenting residence. It is a dwelling to enjoy my likeness. 『Mam’idea』1人3役をこなすママ。子育て中のママのideaから生まれました。家事ラク住まい。スッキリ収納住まい。ハッピー子育て住まい。私らしを楽しむ住まいです。 |
| Every day mom busy. When was the housework and child-rearing are likely to ideas packed house ・ ・ ・ ・ . Have also been released from the chores of stress you think you can enjoy the free time of the time and the mom of gatherings with family. House building of such a Mom eyes. It is the "Mam'idea". ママは毎日大忙し。家事や子育てがしやすいアイデア満載の家だったら・・・・。家事のストレスからも解放されて家族との団欒の時間やママの自由時間を楽しむことが出来ますよね。そんなママ目線のお家造り。それが『Mam’idea』です。 |
Features pickup 特徴ピックアップ | | 2 along the line more accessible / Super close / It is close to the city / Yang per good / Flat to the station / Siemens south road / A quiet residential area / Around traffic fewer / Corner lot / City gas / Flat terrain / Development subdivision in / Building plan example there 2沿線以上利用可 /スーパーが近い /市街地が近い /陽当り良好 /駅まで平坦 /南側道路面す /閑静な住宅地 /周辺交通量少なめ /角地 /都市ガス /平坦地 /開発分譲地内 /建物プラン例有り | Event information イベント情報 | | (Please make a reservation beforehand) (事前に必ず予約してください) | Price 価格 | | 23.8 million yen ~ 26,800,000 yen 2380万円 ~ 2680万円 | Building coverage, floor area ratio 建ぺい率・容積率 | | Kenpei rate: 60%, Volume ratio: 200% 建ペい率:60%、容積率:200% | Sales compartment 販売区画数 | | 3 compartment 3区画 | Total number of compartments 総区画数 | | 7 compartment 7区画 | Land area 土地面積 | | 100.01 sq m ・ 122.81 sq m 100.01m2・122.81m2 | Land situation 土地状況 | | Not construction 未造成 | Construction completion time 造成完了時期 | | 2014/1/31 2014/1/31 | Address 住所 | | Saitama Prefecture Asaka Ichioka 1 埼玉県朝霞市岡1 | Traffic 交通 | | Tobu Tojo Line "Asakadai" walk 17 minutes JR Musashino Line "Kitaasaka" walk 17 minutes Tobu Tojo Line "Asaka" walk 17 minutes 東武東上線「朝霞台」歩17分 JR武蔵野線「北朝霞」歩17分東武東上線「朝霞」歩17分
| Related links 関連リンク | | [Related Sites of this company] 【この会社の関連サイト】 | Person in charge 担当者より | | Rep Koganezawa MegumiYu Age: We thought that if suggestions to only that of the 20 Daioie the looking residence eyes had gone from a different direction. Because fun is the motto, Thank you very much. 担当者小金澤 恵佑年齢:20代お家の事ばかりに目が行ってしまうお住まい探しを違った方面からご提案できればと思っております。楽しみながらがモットーですので、どうぞよろしくお願い致します。 | Contact お問い合せ先 | | TEL: 0800-601-4957 [Toll free] mobile phone ・ Also available from PHS Caller ID is not notified Please contact the "saw SUUMO (Sumo)" If it does not lead, If the real estate company TEL:0800-601-4957【通話料無料】携帯電話・PHSからもご利用いただけます 発信者番号は通知されません 「SUUMO(スーモ)を見た」と問い合わせください つながらない方、不動産会社の方は
| Land of the right form 土地の権利形態 | | Ownership 所有権 | Building condition 建築条件 | | With 付 | Time delivery 引き渡し時期 | | Consultation 相談 | Land category 地目 | | Residential land 宅地 | Use district 用途地域 | | One middle and high 1種中高 | Other limitations その他制限事項 | | Regulations have by the Law for the Protection of Cultural Properties, Regulations have by the Landscape Act, Height district, Irregular land 文化財保護法による規制有、景観法による規制有、高度地区、不整形地 | Overview and notices その他概要・特記事項 | | Contact: Koganezawa MegumiYu, Facilities: Public Water Supply, This sewage, City gas, Development permit number: Directive morning Kendai No. 2500230 担当者:小金澤 恵佑、設備:公営水道、本下水、都市ガス、開発許可番号:指令朝建第2500230号 | Company profile 会社概要 | | <Seller> Minister of Land, Infrastructure and Transport (1) No. 008078 (Corporation) Prefecture Building Lots and Buildings Transaction Business Association (Corporation) metropolitan area real estate Fair Trade Council member Mac Home Co., Ltd. Asaka head office Yubinbango351-0011 Saitama Prefecture Asaka Honcho 2-7-31 <売主>国土交通大臣(1)第008078号(公社)埼玉県宅地建物取引業協会会員 (公社)首都圏不動産公正取引協議会加盟マックホーム(株)朝霞本店〒351-0011 埼玉県朝霞市本町2-7-31 |
Otherその他  ~ Reveru ~ As "Mam'idea" Mom was born from, As a wife, And as a woman. Mom do a 3 roles. It is such a mom, As I live happily in the family and smile, It is full of stuffed home a twist.
~ レヴェール ~ から生まれた『Mam’idea』ママとして、妻として、そして一人の女性として。3役をこなすママ。そんなママが、家族と笑顔で楽しく暮らせるように、工夫をいっぱい詰め込んだ家です。
Building plan example (floor plan)建物プラン例(間取り図)  Building plan example (3 compartment) 4LDK, Land price 25,800,000 yen, Land area 100.01 sq m , Building price 13 million yen, Building area 99.78 sq m
建物プラン例(3区画)4LDK、土地価格2580万円、土地面積100.01m2、建物価格1300万円、建物面積99.78m2
Otherその他 ![Other. ~ Insulation was born from water, [Aqua form] ~ [Summer is cool ・ Winter warm] Proud of the high thermal insulation and confidentiality, By blowing houses also in the field of complex structure, You can construction without clearance from foaming. [Comfortable sleep] Aqua form without gaps](/images/saitama/asaka/c971af0021.jpg) ~ Insulation was born from water, [Aqua form] ~ [Summer is cool ・ Winter warm] Proud of the high thermal insulation and confidentiality, By blowing houses also in the field of complex structure, You can construction without clearance from foaming. [Comfortable sleep] Aqua form without gaps
~ 水から生まれた断熱材、【アクアフォーム】 ~ 【夏は涼・冬は暖】高い断熱性と機密性を誇り、複雑な構造の住宅も現場で吹付けて、発泡させるから隙間なく施工できます。 【快適安眠】アクアフォームは隙間なく
Building plan example (Perth ・ appearance)建物プラン例(パース・外観)  Building plan example
建物プラン例
Otherその他  ~ Outdoor outlet ~ Simple features that match abode ・ Outdoor outlet of design.
~ 屋外コンセント ~ 住まいにマッチしたシンプルな機能・デザインの屋外コンセント。
 ~ Eipia J sash ~
~ エイピアJサッシ ~
 ~ LOW-E glass ~
~ LOW-Eガラス ~
 Entrance card key
【玄関カードキー】
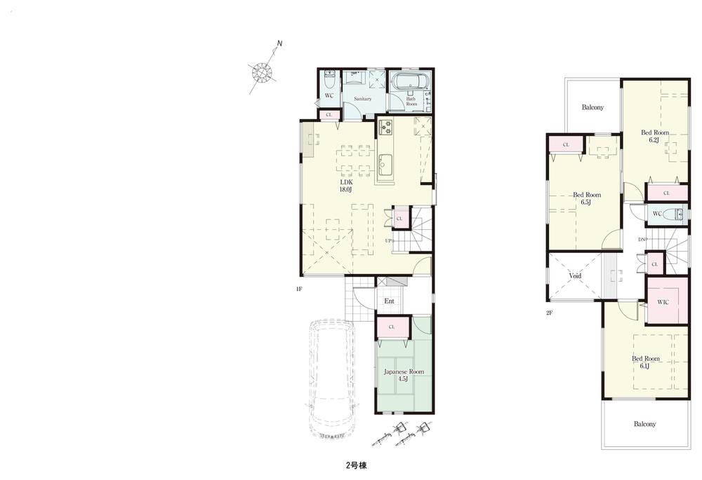
Building plan example (floor plan)建物プラン例(間取り図)  Building plan example (two-compartment) 4LDK, Land price 26,800,000 yen, Land area 100.01 sq m , Building price 13 million yen, Building area 99.78 sq m
建物プラン例(2区画)4LDK、土地価格2680万円、土地面積100.01m2、建物価格1300万円、建物面積99.78m2
Primary school小学校  Asaka Municipal Asaka 528m until the sixth elementary school
朝霞市立朝霞第六小学校まで528m
Junior high school中学校  Asaka Municipal Asaka 842m until the second junior high school
朝霞市立朝霞第二中学校まで842m
Park公園  845m until the waterfall of root park
滝の根公園まで845m
 761m to Shiroyama Park
城山公園まで761m
Convenience storeコンビニ  296m to Seven-Eleven Asaka Oka 3-chome
セブンイレブン朝霞岡3丁目店まで296m
Supermarketスーパー  Until Life Asaka shop 895m
ライフ朝霞店まで895m
Drug storeドラッグストア  drag ・ 70m to ace Oka shop
ドラッグ・エース岡店まで70m
Hospital病院  1018m until the medical corporation mountain willow Board salty hospital
医療法人山柳会塩味病院まで1018m
Otherその他  Please leave it to our Great of Asaka. Local information ・ Information of the Property, I will answer anything politely. Our Good Le Vert series by all means please see.
朝霞市のことなら弊社にお任せください。地域の情報・物件の情報、なんでも丁寧にお答えいたします。弊社こだわりのレヴェールシリーズ是非ご覧ください。
 Children's Playground So we also offer, Please visit us together with your children.
キッズスペースもご用意しておりますので、お子様とご一緒にご来店くださいませ。
 Family guys nailed!
ご家族みんな釘づけ!
Location
|