New Homes » Kanto » Saitama » Fujimino
 
| | Saitama Prefecture Fujimino 埼玉県ふじみ野市 |
| Tobu Tojo Line "Kamifukuoka" walk 26 minutes 東武東上線「上福岡」歩26分 |
| Popular Midorigaoka, Building 2 is a price change! 36,800,000 yen → is 32,800,000 yen Bibamoru doorstep! Kasumi, Super is also close to very convenient life, such as Berg! 人気の緑ヶ丘、2号棟は価格変更!3680万円→3280万円ですビバモールすぐそば!カスミ、ベルクなどのスーパーも近くにあり生活大変便利です! |
| ○ ● ○ ● ○ ● ○ ● ○ ● ○ ● ○ ● ○ ● ○ ● ○ ● ○ ● ○ ・ Site was to ensure the size of 45 square meters more than the ideal both! ・ Car space two Allowed, It is also useful to the second car! ・ LDK1 Building 21 Pledge, Building 2 18.8 Pledge, Both are wide of the room ・ With attic storage, Pat storage ・ Bathing time you can enjoy relaxing in the spacious 1 pyeong type of bathroom ・ With outside water, Care Ease of your garden or your car ・ It is maintenance-free city gas of happy ○ ● ○ ● ○ ● ○ ● ○ ● ○ ● ○ ● ○ ● ○ ● ○ ● ○ ● ○ Property Details, Document request, Inquiries about other real estate is free dial [0800-603-8292] Please feel free to contact us at! ○●○●○●○●○●○●○●○●○●○●○●○・敷地はどちらも45坪超と理想の広さを確保しました!・カースペース2台可、セカンドカーにも便利です!・LDK1号棟21帖、2号棟18.8帖、どちらもゆとりの広さです・小屋裏収納付きで、収納もバッチリ・広々1坪タイプの浴室でゆったり入浴タイムが楽しめます・外水道付きで、お庭やお車のお手入れがラクラク・メンテナンスフリーの都市ガスが嬉しいですね○●○●○●○●○●○●○●○●○●○●○●○物件の詳細、資料請求、その他不動産に関するお問い合わせはフリーダイヤル【0800-603-8292】までお気軽にご連絡くださいませ! |
Features pickup 特徴ピックアップ | | Parking two Allowed / LDK20 tatami mats or more / Facing south / System kitchen / Bathroom Dryer / Yang per good / All room storage / Flat to the station / A quiet residential area / Japanese-style room / Washbasin with shower / Face-to-face kitchen / Wide balcony / Barrier-free / Toilet 2 places / Bathroom 1 tsubo or more / 2-story / Warm water washing toilet seat / Underfloor Storage / The window in the bathroom / TV monitor interphone / Water filter / Attic storage 駐車2台可 /LDK20畳以上 /南向き /システムキッチン /浴室乾燥機 /陽当り良好 /全居室収納 /駅まで平坦 /閑静な住宅地 /和室 /シャワー付洗面台 /対面式キッチン /ワイドバルコニー /バリアフリー /トイレ2ヶ所 /浴室1坪以上 /2階建 /温水洗浄便座 /床下収納 /浴室に窓 /TVモニタ付インターホン /浄水器 /屋根裏収納 | Price 価格 | | 32,800,000 yen ・ 36,800,000 yen 3280万円・3680万円 | Floor plan 間取り | | 4LDK 4LDK | Units sold 販売戸数 | | 2 units 2戸 | Total units 総戸数 | | 2 units 2戸 | Land area 土地面積 | | 148.95 sq m ・ 148.96 sq m (registration) 148.95m2・148.96m2(登記) | Building area 建物面積 | | 99.22 sq m ・ 100.43 sq m (registration) 99.22m2・100.43m2(登記) | Completion date 完成時期(築年月) | | 2013 in late November 2013年11月下旬 | Address 住所 | | Saitama Prefecture Fujimino Midorigaoka 1 埼玉県ふじみ野市緑ケ丘1 | Traffic 交通 | | Tobu Tojo Line "Kamifukuoka" walk 26 minutes Tobu Tojo Line "Kamifukuoka" 10 minutes Midorigaoka one step 3 minutes by bus Tobu Tojo Line "Fujimino" walk 32 minutes 東武東上線「上福岡」歩26分 東武東上線「上福岡」バス10分緑ヶ丘1歩3分 東武東上線「ふじみ野」歩32分
| Related links 関連リンク | | [Related Sites of this company] 【この会社の関連サイト】 | Person in charge 担当者より | | Person in charge of Matsumoto Hiroki Age: 20 Daigyokai Experience: 5 years we are not in the Ruwake Toriharae the anxiety and your hesitation, We are trying to allow boost your even a little. We will do the cordial customer to enjoy the last to become a Manmen of smile. 担当者松本 裕樹年齢:20代業界経験:5年私達はお客様の迷いや不安を取り払えるわけではございませんが、少しでもお客様の後押しができるよう心掛けております。一番最後に満面の笑顔になって頂けるよう誠心誠意お客様に尽くします。 | Contact お問い合せ先 | | TEL: 0800-603-8292 [Toll free] mobile phone ・ Also available from PHS Caller ID is not notified Please contact the "saw SUUMO (Sumo)" If it does not lead, If the real estate company TEL:0800-603-8292【通話料無料】携帯電話・PHSからもご利用いただけます 発信者番号は通知されません 「SUUMO(スーモ)を見た」と問い合わせください つながらない方、不動産会社の方は
| Building coverage, floor area ratio 建ぺい率・容積率 | | Kenpei rate: 50%, Volume ratio: 80% 建ペい率:50%、容積率:80% | Time residents 入居時期 | | Consultation 相談 | Land of the right form 土地の権利形態 | | Ownership 所有権 | Use district 用途地域 | | One low-rise 1種低層 | Land category 地目 | | Residential land 宅地 | Overview and notices その他概要・特記事項 | | Contact: Matsumoto Hiroki, Building confirmation number: No. 13UDI2S Ken 00974 担当者:松本 裕樹、建築確認番号:第13UDI2S建00974号 | Company profile 会社概要 | | <Mediation> Minister of Land, Infrastructure and Transport (1) No. 008204 (Ltd.) Asia home sales Fujimino branch Yubinbango356-0050 Saitama Prefecture Fujimino Fujimino 1-7-1 <仲介>国土交通大臣(1)第008204号(株)アジア住宅販売ふじみ野支店〒356-0050 埼玉県ふじみ野市ふじみ野1-7-1 |
Local appearance photo現地外観写真  Local (12 May 2013) Shooting
現地(2013年12月)撮影
Livingリビング  Indoor (12 May 2013) Shooting
室内(2013年12月)撮影
Kitchenキッチン  Indoor (12 May 2013) Shooting
室内(2013年12月)撮影
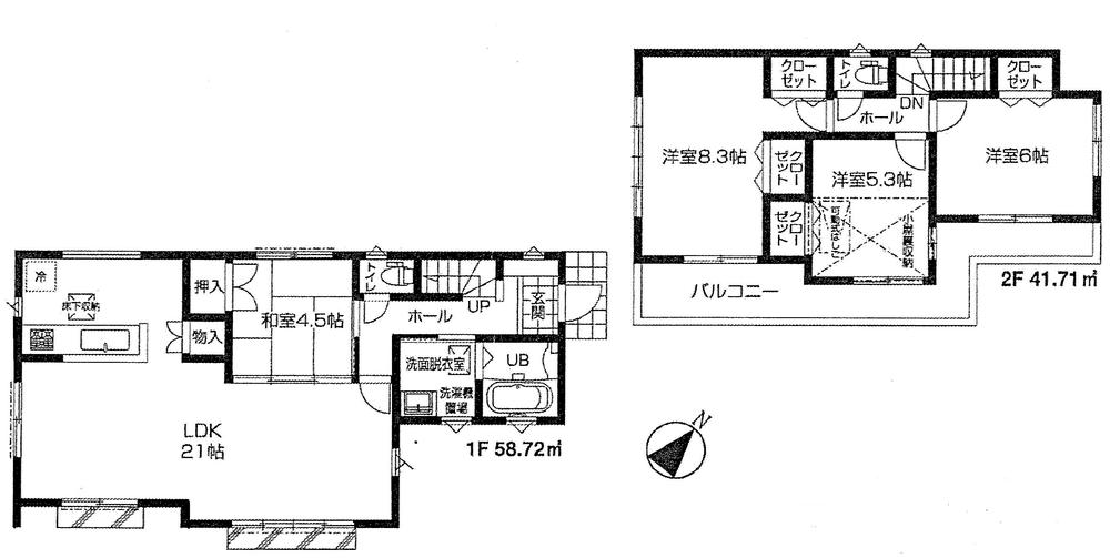
Floor plan間取り図  (1 Building), Price 36,800,000 yen, 4LDK, Land area 148.96 sq m , Building area 100.43 sq m
(1号棟)、価格3680万円、4LDK、土地面積148.96m2、建物面積100.43m2
Bathroom浴室  Indoor (12 May 2013) Shooting
室内(2013年12月)撮影
Non-living roomリビング以外の居室  Indoor (12 May 2013) Shooting
室内(2013年12月)撮影
Wash basin, toilet洗面台・洗面所  Indoor (12 May 2013) Shooting
室内(2013年12月)撮影
Local photos, including front road前面道路含む現地写真  Local (12 May 2013) Shooting
現地(2013年12月)撮影
Shopping centreショッピングセンター  Until Bibamoru Oi Saitama 419m
ビバモール埼玉大井まで419m
 The entire compartment Figure
全体区画図
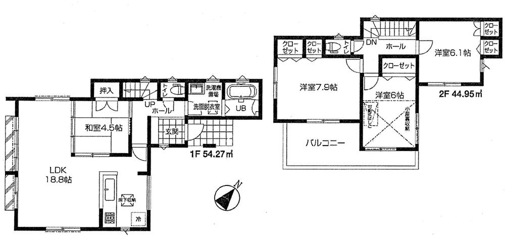
Floor plan間取り図  (Building 2), Price 32,800,000 yen, 4LDK, Land area 148.95 sq m , Building area 99.22 sq m
(2号棟)、価格3280万円、4LDK、土地面積148.95m2、建物面積99.22m2
Non-living roomリビング以外の居室  Indoor (12 May 2013) Shooting
室内(2013年12月)撮影
Supermarketスーパー  290m until Berg Oi Midorigaoka shop
ベルク大井緑ケ丘店まで290m
 468m to food Square Kasumi Fujimino shop
フードスクエアカスミふじみ野店まで468m
Kindergarten ・ Nursery幼稚園・保育園  Turtle stay 559m to nursery
亀居保育所まで559m
 626m to Bunkyo Gakuin University Fujimino kindergarten
文京学院大学ふじみ野幼稚園まで626m
Location
|