New Homes » Kanto » Saitama » Fujimino
 
| | Saitama Prefecture Fujimino 埼玉県ふじみ野市 |
| Tobu Tojo Line "Fujimino" walk 13 minutes 東武東上線「ふじみ野」歩13分 |
| [Seller agency sale] ■ All are 12 buildings of new construction condominiums. All sections of about 33 square meters or more of the site area ■ Model house (Fujimino Oi center) You can see! Front road is also easier than ever with the parking in the wide. 【売主代理販売】■全12棟の新築分譲住宅です。全区画約33坪以上の敷地面積■モデルハウス(ふじみ野市大井中央)がご覧いただけます! 前面道路も幅広で駐車も楽々。 |
| For those in the campaign !! end of the year your conclusion of a contract [LCD TV 40-inch + Blu-ray recorder] Or [JBC gift card 100,000 yen] Get the ◆ Or more before road 6m ◆ Corner lot ◆ Development subdivision in ◆ City gas, This sewage ◆ A quiet residential area ◆ Flat terrain キャンペーン実施中!! 年内ご成約の方に【液晶テレビ40型+ブルーレイレコーダー】もしくは【JBCギフトカード10万円分】をプレゼント◆前道6m以上◆角地◆開発分譲地内◆都市ガス、本下水◆閑静な住宅地◆平坦地 |
Local guide map 現地案内図 | | Local guide map 現地案内図 | Features pickup 特徴ピックアップ | | Corresponding to the flat-35S / Parking two Allowed / System kitchen / Bathroom Dryer / All room storage / A quiet residential area / LDK15 tatami mats or more / Or more before road 6m / Corner lot / Shaping land / Face-to-face kitchen / Toilet 2 places / 2-story / Double-glazing / Warm water washing toilet seat / Underfloor Storage / TV monitor interphone / City gas / Flat terrain / Development subdivision in フラット35Sに対応 /駐車2台可 /システムキッチン /浴室乾燥機 /全居室収納 /閑静な住宅地 /LDK15畳以上 /前道6m以上 /角地 /整形地 /対面式キッチン /トイレ2ヶ所 /2階建 /複層ガラス /温水洗浄便座 /床下収納 /TVモニタ付インターホン /都市ガス /平坦地 /開発分譲地内 | Event information イベント情報 | | Local sales meetings (please visitors to direct local) schedule / Every Saturday, Sunday and public holidays time / 10:00 ~ 17:00 ■ Detailed sales representatives to local information will be happy to support us. For well as the surrounding environment, Certainly question please. ■ Also available upon consultation, such as information about the latest interest rate. ■ Please contact us by all means If you would like to see the local. Also we will guide such as the surrounding environment. ■ Your replacement also those who study, Please tell us that effect. Available upon consultation. 現地販売会(直接現地へご来場ください)日程/毎週土日祝時間/10:00 ~ 17:00■地元の情報に詳しい営業担当者がご対応させていただきます。周辺環境などについても、是非ご質問下さい。■最新の金利の情報などもご相談承ります。■現地をご覧になりたい方は是非お問合せください。周辺環境などもご案内させて頂きます。■お買い替えもご検討の方は、その旨お申し付け下さい。ご相談承ります。 | Property name 物件名 | | Libre Garden Fujimino Naema [All 12 buildings / The remaining 11 buildings] リーブルガーデンふじみ野市苗間 【全12棟/残11棟】 | Price 価格 | | 31,800,000 yen ~ 36,300,000 yen 3180万円 ~ 3630万円 | Floor plan 間取り | | 4LDK 4LDK | Units sold 販売戸数 | | 12 units 12戸 | Total units 総戸数 | | 12 units 12戸 | Land area 土地面積 | | 110.01 sq m ~ 128.66 sq m (registration) 110.01m2 ~ 128.66m2(登記) | Building area 建物面積 | | 87.47 sq m ~ 100.84 sq m (measured) 87.47m2 ~ 100.84m2(実測) | Driveway burden-road 私道負担・道路 | | Road width: 6m ~ 6.1m, Asphaltic pavement 道路幅:6m ~ 6.1m、アスファルト舗装 | Completion date 完成時期(築年月) | | 2014 end of January schedule 2014年1月末予定 | Address 住所 | | Saitama Prefecture Fujimino Naema 565-1 埼玉県ふじみ野市苗間565-1 | Traffic 交通 | | Tobu Tojo Line "Fujimino" walk 13 minutes 東武東上線「ふじみ野」歩13分
| Person in charge 担当者より | | Rep Tsuneo Sakakibara 担当者榊原 経雄 | Contact お問い合せ先 | | Co., Ltd. Kanto Real Estate Information Center TEL: 0800-805-6559 [Toll free] mobile phone ・ Also available from PHS Caller ID is not notified Please contact the "saw SUUMO (Sumo)" If it does not lead, If the real estate company (株)関東不動産情報センターTEL:0800-805-6559【通話料無料】携帯電話・PHSからもご利用いただけます 発信者番号は通知されません 「SUUMO(スーモ)を見た」と問い合わせください つながらない方、不動産会社の方は
| Sale schedule 販売スケジュール | | Weekly, soil ・ Day ・ Holiday AM10: 00 ~ PM17:! 00 first arrival order application being accepted at the sale site please come feel free to. We will guide you on weekdays. Customers of hope, Feel free to contact us, Please make your reservation. 毎週、土・日・祝日AM10:00 ~ PM17:00販売現地にて先着順申込み受付中 !お気軽にお越しください。平日もご案内いたします。ご希望のお客様は、お気軽にご連絡、ご予約ください。 | Most price range 最多価格帯 | | 33 million yen (4 units) 3300万円台(4戸) | Building coverage, floor area ratio 建ぺい率・容積率 | | Kenpei rate: 50%, Volume ratio: 80% 建ペい率:50%、容積率:80% | Time residents 入居時期 | | February 2014 early schedule 2014年2月初旬予定 | Land of the right form 土地の権利形態 | | Ownership 所有権 | Structure and method of construction 構造・工法 | | Wooden 2-story (framing method) 木造2階建(軸組工法) | Use district 用途地域 | | One low-rise 1種低層 | Land category 地目 | | Residential land 宅地 | Overview and notices その他概要・特記事項 | | Contact: Tsuneo Sakakibara, Building confirmation number: SJK-KX1311032272 No. 担当者:榊原 経雄、建築確認番号:SJK-KX1311032272号 | Company profile 会社概要 | | <Marketing alliance (agency)> Saitama Governor (1) No. 022061 (Ltd.) Kanto Real Estate Information Center Yubinbango350-0274 Saitama Prefecture Sakado Mizobata-cho 2-4 Kameda Bill 102 <販売提携(代理)>埼玉県知事(1)第022061号(株)関東不動産情報センター〒350-0274 埼玉県坂戸市溝端町2-4 亀田ビル102 |
 Local guide map
現地案内図
Local appearance photo現地外観写真  Local (12 May 2013) Shooting (1 Building)
現地(2013年12月)撮影(1号棟)
 Local (12 May 2013), shooting (5 Building)
現地(2013年12月)撮影(5号棟)
 Local (12 May 2013), shooting (2 Building)
現地(2013年12月)撮影(2号棟)
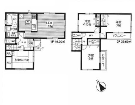
Floor plan間取り図  (6 Building), Price 32,800,000 yen, 4LDK, Land area 127.36 sq m , Building area 100.84 sq m
(6号棟)、価格3280万円、4LDK、土地面積127.36m2、建物面積100.84m2
Local appearance photo現地外観写真  Local (12 May 2013), shooting (11 Building)
現地(2013年12月)撮影(11号棟)
Construction ・ Construction method ・ specification構造・工法・仕様  In this listing is, Using a ceramic system of siding on the outer wall finish, Has adopted the "outer wall ventilation method" in which a ventilation space between the wall and the outer wall coverings. This, The moisture of the wall inside the body can be efficiently released into the outside air, To suppress the internal condensation, You can improve the durability. In the summer, The ventilation of the air layer, You can also expect the thermal barrier effect.
当物件では、外壁仕上材に窯業系のサイディングを使用して、壁と外壁仕上材の間に通気スペースを設けた「外壁通気工法」を採用しています。これにより、壁体内の湿気を効率よく外気に放出でき、内部結露を抑制して、耐久性を向上させることができます。夏季には、通気層内の通風により、遮熱効果も期待できます。
Other Equipmentその他設備  ・ Spare stocker that can be utilized without waste to feet. ・ Ensuring a sufficient height 2L PET bottles also fit neat. ・ The corners of the kick crowded part as a gentle curve safe feet of working.
・足元まで無駄なく活用できるスペアストッカー。・2Lのペットボトルもすっきりおさまる十分な高さを確保。・蹴りこみ部分の角をゆるやかな曲線とし作業中の足元も安全。
Local photos, including front road前面道路含む現地写真  Local (12 May 2013) Shooting (1 Building)
現地(2013年12月)撮影(1号棟)
Shopping centreショッピングセンター  Shopping center Soyo mosquitoes to Fujimino 1022m
ショッピングセンターソヨカふじみ野まで1022m
 The entire compartment Figure
全体区画図
 Local guide map
現地案内図
Floor plan間取り図  (1 Building), Price 36,300,000 yen, 4LDK, Land area 113.69 sq m , Building area 90.31 sq m
(1号棟)、価格3630万円、4LDK、土地面積113.69m2、建物面積90.31m2
Local appearance photo現地外観写真  Local (12 May 2013) shooting (3 Building)
現地(2013年12月)撮影(3号棟)
Construction ・ Construction method ・ specification構造・工法・仕様  To prevent the deterioration of the building, It is important the elimination of under the floor of the moisture that causes corrosion of the structural part.
建物の劣化を防ぐには、構造部の腐食の原因となる床下の湿気の排除が重要です。
Other Equipmentその他設備  ・ The height of the wash basin is 800mm. Washing the face can also be shampoo also in a comfortable position. ・ It is a bowl shape in pursuit of ease of use. ・ Freshly every type of toothbrush comes with. ・ It can be a wide range of storage from some of the height that you want to stock up small.
・洗面台の高さは800mm。洗顔もシャンプーも楽な姿勢でできます。・使いやすさを追求したボウル形状です。・置き型の歯ブラシ立てが付いています。・ストックしておきたい高さのあるものから小物まで幅広く収納することができます。
Local photos, including front road前面道路含む現地写真  Local (12 May 2013) Shooting
現地(2013年12月)撮影
Shopping centreショッピングセンター  1034m to Fujimino Nare
ふじみ野ナーレまで1034m
Floor plan間取り図  (Building 2), Price 35,300,000 yen, 4LDK, Land area 111.06 sq m , Building area 88.69 sq m
(2号棟)、価格3530万円、4LDK、土地面積111.06m2、建物面積88.69m2
Local appearance photo現地外観写真  Local (12 May 2013), shooting (8 Building)
現地(2013年12月)撮影(8号棟)
Construction ・ Construction method ・ specification構造・工法・仕様  Adopt a "seismic hardware" is at the junction anchoring the structure material.
構造材をつなぎとめる接合部には「耐震金物」を採用。
Power generation ・ Hot water equipment発電・温水設備  Enhance the thermal efficiency by effectively utilizing the waste heat that occurs when a boil water, If "energy-saving water heater" Eco Jaws, Herase the amount of gas, Since CO2 emissions also become less of, It can contribute to the prevention of global warming, In addition you can also save gas rates.
お湯を沸かすときに発生する排熱を有効利用して熱効率を高めた、“省エネ給湯器”エコジョーズなら、ガスの使用量を減らせ、CO2の排出も少なくなるので、地球温暖化防止に貢献でき、さらにガス料金の節約もできます。
Floor plan間取り図  Local guide map
現地案内図
 Local guide map
現地案内図
 Local guide map
現地案内図
 Local guide map
現地案内図
 Local guide map
現地案内図
Primary school小学校  Fujimino Municipal Higashihara to elementary school 1400m
ふじみ野市立東原小学校まで1400m
Other Equipmentその他設備  ・ Borderless shape in consideration of the cleaning ease ・ Tornado cleaning to wash all over the inside of the toilet bowl in the double of water flow ・ The pottery surface was coated in slippery at the nano-level "Sefi on Detect" toilet bowl ・ Automatically from "deodorizing", Deodorizing in cooperation switches to suction weight of about 2 times the "power deodorizing"
・お掃除しやすさを考慮したフチなし形状・ダブルの水流で便器内をくまなく洗浄するトルネード洗浄・陶器表面をナノレベルでツルツルにコーティングした「セフィオンテクト」便器・自動で「脱臭」から、吸い込み量約2倍の「パワー脱臭」に切り替わり協力に脱臭
 Clean air 24-hour ventilation system which performs plan to the discharge of the supply air and dirty air. By moisture easily accumulate room also forced ventilation at all times, It is also effective in the suppression of condensation and mold.
きれいな空気の給気と汚れた空気の排出を計画的に行う24時間換気システム。湿気のたまりやすい部屋も常時強制的に換気することによって、結露やカビの抑制にも効果的です。
 ・ Firm water-saving in the new shape that eliminates the waste. ・ In devising friendly body, Comfortable entering and relaxation. ・ Water-saving effect About 14%
・ムダをなくした新形状でしっかり節水。・身体にやさしい工夫で、くつろぎの入り心地。・節水効果 約14%
Floor plan間取り図  Shopping center Soyo mosquitoes to Fujimino 1022m
ショッピングセンターソヨカふじみ野まで1022m
 Shopping center Soyo mosquitoes to Fujimino 1022m
ショッピングセンターソヨカふじみ野まで1022m
 Shopping center Soyo mosquitoes to Fujimino 1022m
ショッピングセンターソヨカふじみ野まで1022m
Primary school小学校  Fujimi Municipal Katsuse to elementary school 1052m ※ You can commute.
富士見市立勝瀬小学校まで1052m ※通学可能です。
Junior high school中学校  Fujimino 2200m to stand Oi junior high school
ふじみ野市立大井中学校まで2200m
 Fujimi Municipal Katsuse until junior high school 1553m ※ You can commute.
富士見市立勝瀬中学校まで1553m ※通学可能です。
Kindergarten ・ Nursery幼稚園・保育園  62m to the kindergarten of Miho
みほの幼稚園まで62m
Location
|