New Homes » Kanto » Saitama » Fujimino
 
| | Saitama Prefecture Fujimino 埼玉県ふじみ野市 |
| Tobu Tojo Line "Kamifukuoka" walk 11 minutes 東武東上線「上福岡」歩11分 |
| All building LDK spacious is 16 quires more. We are living facilities enhancement within a 10-minute walk. It is a quiet residential area. Please feel free to contact us. 全棟LDK広々16帖以上です。徒歩10分圏内に生活施設充実しております。閑静な住宅街です。お気軽にお問い合わせ下さい。 |
| Super close, Yang per good, A quiet residential area, LDK15 tatami mats or moreese-style room, Toilet 2 places, 2-story, Ventilation good, Walk-in closet スーパーが近い、陽当り良好、閑静な住宅地、LDK15畳以上、和室、トイレ2ヶ所、2階建、通風良好、ウォークインクロゼット |
Features pickup 特徴ピックアップ | | Super close / Yang per good / A quiet residential area / LDK15 tatami mats or more / Japanese-style room / Toilet 2 places / 2-story / Ventilation good / Walk-in closet スーパーが近い /陽当り良好 /閑静な住宅地 /LDK15畳以上 /和室 /トイレ2ヶ所 /2階建 /通風良好 /ウォークインクロゼット | Price 価格 | | 32,800,000 yen ~ 36,800,000 yen 3280万円 ~ 3680万円 | Floor plan 間取り | | 4LDK 4LDK | Units sold 販売戸数 | | 4 units 4戸 | Land area 土地面積 | | 101.62 sq m ~ 105.42 sq m (30.73 tsubo ~ 31.88 square meters) 101.62m2 ~ 105.42m2(30.73坪 ~ 31.88坪) | Building area 建物面積 | | 98.53 sq m ~ 98.95 sq m (29.80 tsubo ~ 29.93 square meters) 98.53m2 ~ 98.95m2(29.80坪 ~ 29.93坪) | Driveway burden-road 私道負担・道路 | | North 4m public road, East 4m public road 北側4m公道、東側4m公道 | Completion date 完成時期(築年月) | | March 2014 in late schedule 2014年3月下旬予定 | Address 住所 | | Saitama Prefecture Fujimino Ohara 2 埼玉県ふじみ野市大原2 | Traffic 交通 | | Tobu Tojo Line "Kamifukuoka" walk 11 minutes 東武東上線「上福岡」歩11分
| Related links 関連リンク | | [Related Sites of this company] 【この会社の関連サイト】 | Person in charge 担当者より | | Person in charge of real-estate and building Uemura Takashi Age: 30 Daigyokai experience: This is Uemura was now to be entrusted with the 10-year Taisei housing Kawagoe housing gallery manager. To be able to introduce a customer satisfaction Property, Always we will continue to work hard at 120% of the force. Thank you. 担当者宅建上村 貴志年齢:30代業界経験:10年大成住宅川越ハウジングギャラリーの店長を任されることになりました上村です。お客様のご満足いただける物件をご紹介できるように、常に120%の力で頑張ってまいります。宜しくお願い致します。 | Contact お問い合せ先 | | TEL: 0800-805-5903 [Toll free] mobile phone ・ Also available from PHS Caller ID is not notified Please contact the "saw SUUMO (Sumo)" If it does not lead, If the real estate company TEL:0800-805-5903【通話料無料】携帯電話・PHSからもご利用いただけます 発信者番号は通知されません 「SUUMO(スーモ)を見た」と問い合わせください つながらない方、不動産会社の方は
| Most price range 最多価格帯 | | 32 million yen (2 units) 3200万円台(2戸) | Building coverage, floor area ratio 建ぺい率・容積率 | | Kenpei rate: 60%, Volume ratio: 200% 建ペい率:60%、容積率:200% | Time residents 入居時期 | | March 2014 in late schedule 2014年3月下旬予定 | Land of the right form 土地の権利形態 | | Ownership 所有権 | Structure and method of construction 構造・工法 | | Wooden 2-story 木造2階建 | Use district 用途地域 | | One middle and high 1種中高 | Land category 地目 | | Residential land 宅地 | Overview and notices その他概要・特記事項 | | Contact: Uemura Takashi, Building confirmation number: No. TKK 確済 25-1221 担当者:上村 貴志、建築確認番号:第TKK確済25-1221号 | Company profile 会社概要 | | <Mediation> Saitama Governor (4) No. 017756 No. Ltd. Taisei housing Kawagoe housing gallery Yubinbango350-1117 Kawagoe City Prefecture Koei-cho 10-6 <仲介>埼玉県知事(4)第017756号(株)大成住宅川越ハウジングギャラリー〒350-1117 埼玉県川越市広栄町10-6 |
Local appearance photo現地外観写真  Reference: construction cases
参考:施工例
Local photos, including front road前面道路含む現地写真  Reference: construction cases
参考:施工例
Kitchenキッチン  Reference: construction cases
参考:施工例
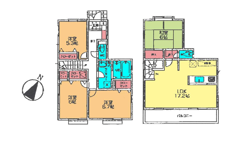
Floor plan間取り図  (1 Building), Price 35,800,000 yen, 4LDK, Land area 101.62 sq m , Building area 98.95 sq m
(1号棟)、価格3580万円、4LDK、土地面積101.62m2、建物面積98.95m2
Livingリビング  Reference: construction cases
参考:施工例
Bathroom浴室  Reference: construction cases
参考:施工例
Primary school小学校  Fujimino Municipal Uwanodai to elementary school 650m
ふじみ野市立上野台小学校まで650m
The entire compartment Figure全体区画図  Compartment figure
区画図
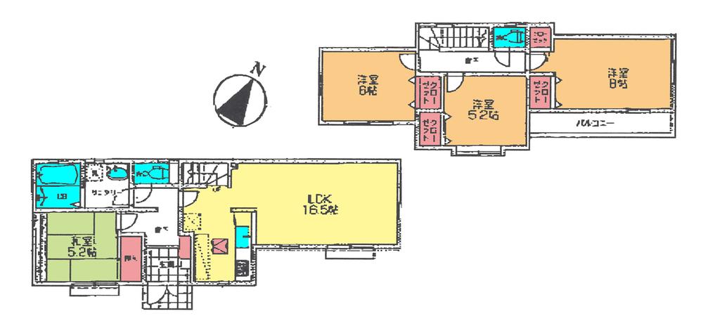
Floor plan間取り図  (Building 2), Price 36,800,000 yen, 4LDK, Land area 103.21 sq m , Building area 98.74 sq m
(2号棟)、価格3680万円、4LDK、土地面積103.21m2、建物面積98.74m2
Junior high school中学校  Fujimino 800m to stand Ashihara junior high school
ふじみ野市立葦原中学校まで800m
Floor plan間取り図  (3 Building), Price 32,800,000 yen, 4LDK, Land area 105.11 sq m , Building area 98.53 sq m
(3号棟)、価格3280万円、4LDK、土地面積105.11m2、建物面積98.53m2
Hospital病院  Kamifukuoka 2200m to General Hospital
上福岡総合病院まで2200m
Floor plan間取り図  (4 Building), Price 32,800,000 yen, 4LDK, Land area 105.42 sq m , Building area 98.95 sq m
(4号棟)、価格3280万円、4LDK、土地面積105.42m2、建物面積98.95m2
Station駅  Kamifukuoka Station
上福岡駅
Location
|