|
|
Saitama Prefecture Hasuda
埼玉県蓮田市
|
|
JR Utsunomiya Line "Hasuda" walk 28 minutes
JR宇都宮線「蓮田」歩28分
|
|
■ South Hirake and sunny! ■ Car space parallel two ■ Optimal living environment in the road opposite the child-rearing in the park ■ 24-hour super close and convenient location! ■ It is ready-to-move-in!
■南側ひらけて日当たり良好!■カースペース並列2台■道路向かいが公園で子育てに最適な住環境■24時間営業のスーパー近くて便利な立地!■即入居可能です!
|
|
■ Sunny ■ Two car space ■ Turnkey
■日当たり良好■カースペース2台■即入居可能
|
Features pickup 特徴ピックアップ | | Corresponding to the flat-35S / Pre-ground survey / Year Available / Parking two Allowed / Super close / Facing south / System kitchen / Yang per good / All room storage / A quiet residential area / LDK15 tatami mats or more / Around traffic fewer / Or more before road 6m / Japanese-style room / Shaping land / garden / Washbasin with shower / Face-to-face kitchen / Toilet 2 places / Bathroom 1 tsubo or more / 2-story / 2 or more sides balcony / South balcony / Double-glazing / Otobasu / Underfloor Storage / The window in the bathroom / TV monitor interphone / Leafy residential area / Ventilation good / All room 6 tatami mats or more / City gas / All rooms are two-sided lighting / Flat terrain フラット35Sに対応 /地盤調査済 /年内入居可 /駐車2台可 /スーパーが近い /南向き /システムキッチン /陽当り良好 /全居室収納 /閑静な住宅地 /LDK15畳以上 /周辺交通量少なめ /前道6m以上 /和室 /整形地 /庭 /シャワー付洗面台 /対面式キッチン /トイレ2ヶ所 /浴室1坪以上 /2階建 /2面以上バルコニー /南面バルコニー /複層ガラス /オートバス /床下収納 /浴室に窓 /TVモニタ付インターホン /緑豊かな住宅地 /通風良好 /全居室6畳以上 /都市ガス /全室2面採光 /平坦地 |
Event information イベント情報 | | Local sales meetings (please visitors to direct local) schedule / Every Saturday, Sunday and public holidays time / 10:00 ~ 17:00 現地販売会(直接現地へご来場ください)日程/毎週土日祝時間/10:00 ~ 17:00 |
Price 価格 | | 22,800,000 yen 2280万円 |
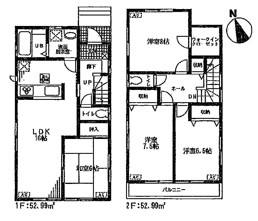
Floor plan 間取り | | 4LDK 4LDK |
Units sold 販売戸数 | | 1 units 1戸 |
Total units 総戸数 | | 2 units 2戸 |
Land area 土地面積 | | 131.78 sq m (39.86 tsubo) (measured) 131.78m2(39.86坪)(実測) |
Building area 建物面積 | | 105.98 sq m (32.05 square meters) 105.98m2(32.05坪) |
Driveway burden-road 私道負担・道路 | | Nothing, North 6m width 無、北6m幅 |
Completion date 完成時期(築年月) | | October 2013 2013年10月 |
Address 住所 | | Saitama Prefecture Hasuda Xicheng 2-106-1 埼玉県蓮田市西城2-106-1 |
Traffic 交通 | | JR Utsunomiya Line "Hasuda" walk 28 minutes JR宇都宮線「蓮田」歩28分
|
Related links 関連リンク | | [Related Sites of this company] 【この会社の関連サイト】 |
Contact お問い合せ先 | | (Ltd.) MAXS housing TEL: 0800-602-5730 [Toll free] mobile phone ・ Also available from PHS Caller ID is not notified Please contact the "saw SUUMO (Sumo)" If it does not lead, If the real estate company (株)MAXSハウジングTEL:0800-602-5730【通話料無料】携帯電話・PHSからもご利用いただけます 発信者番号は通知されません 「SUUMO(スーモ)を見た」と問い合わせください つながらない方、不動産会社の方は
|
Building coverage, floor area ratio 建ぺい率・容積率 | | 60% ・ Hundred percent 60%・100% |
Time residents 入居時期 | | Consultation 相談 |
Land of the right form 土地の権利形態 | | Ownership 所有権 |
Structure and method of construction 構造・工法 | | Wooden 2-story (framing method) 木造2階建(軸組工法) |
Use district 用途地域 | | One low-rise 1種低層 |
Overview and notices その他概要・特記事項 | | Facilities: Public Water Supply, This sewage, City gas, Building confirmation number: 00769, Parking: car space 設備:公営水道、本下水、都市ガス、建築確認番号:00769、駐車場:カースペース |
Company profile 会社概要 | | <Marketing alliance (agency)> Saitama Governor (1) No. 022029 (Ltd.) MAXS housing Yubinbango331-0812 Saitama city north district Miyahara-cho 3-392-3 <販売提携(代理)>埼玉県知事(1)第022029号(株)MAXSハウジング〒331-0812 埼玉県さいたま市北区宮原町3-392-3 |