New Homes » Kanto » Saitama » Hasuda
 
| | Saitama Prefecture Hasuda 埼玉県蓮田市 |
| JR Utsunomiya Line "Hasuda" walk 14 minutes JR宇都宮線「蓮田」歩14分 |
Property name 物件名 | | Season Promenade Hasuda [Certified low-carbon housing] Phase 1, Phase 2 シーズンプロムナード蓮田【認定低炭素住宅】1期、2期 | Price 価格 | | 34,300,000 yen ~ 39,600,000 yen 3430万円 ~ 3960万円 | Floor plan 間取り | | 3LDK ~ 4LDK (5LDK corresponding Allowed, For more information, please contact us) 3LDK ~ 4LDK(5LDK対応可、詳細はお問い合わせ下さい) | Units sold 販売戸数 | | 27 units 27戸 | Total units 総戸数 | | 48 units 48戸 | Land area 土地面積 | | 150.01 sq m ~ 192.21 sq m (45.37 tsubo ~ 58.14 tsubo) (measured) 150.01m2 ~ 192.21m2(45.37坪 ~ 58.14坪)(実測) | Building area 建物面積 | | 101.22 sq m ~ 106.82 sq m (30.61 tsubo ~ 32.31 tsubo) (measured) 101.22m2 ~ 106.82m2(30.61坪 ~ 32.31坪)(実測) | Driveway burden-road 私道負担・道路 | | North about 12.0m, West about 8.5 ~ 9.0m on public roads. Development road 5.0 ~ 5.5m. 北側約12.0m、西側約8.5 ~ 9.0m公道。開発道路5.0 ~ 5.5m。 | Completion date 完成時期(築年月) | | February 2014 late schedule 2014年2月下旬予定 | Address 住所 | | Saitama Prefecture Hasuda Yamanouchi 5-4 埼玉県蓮田市山ノ内5-4 | Traffic 交通 | | JR Utsunomiya Line "Hasuda" walk 14 minutes JR宇都宮線「蓮田」歩14分
| Related links 関連リンク | | [Related Sites of this company] 【この会社の関連サイト】 | Person in charge 担当者より | | [Regarding this property.] Cherish your life, This subdivision was considered. "Day, Parking, Sense of distance between the neighbor, Harmony with nature ", etc., Clearly I will explain. Please apologize for voice feel free to. 【この物件について】お客様の暮らしを大切に、と考えた分譲地です。「日当たり、駐車、お隣との距離感、自然との調和」等々、わかりやすくご説明致します。お気軽にお声掛けください。 | Contact お問い合せ先 | | TEL: 0800-809-8954 [Toll free] mobile phone ・ Also available from PHS Caller ID is not notified Please contact the "saw SUUMO (Sumo)" If it does not lead, If the real estate company TEL:0800-809-8954【通話料無料】携帯電話・PHSからもご利用いただけます 発信者番号は通知されません 「SUUMO(スーモ)を見た」と問い合わせください つながらない方、不動産会社の方は
| Sale schedule 販売スケジュール | | It is first-come application being accepted. 先着申込受付中です。 | Event information イベント情報 | | Local guide Board (please make a reservation beforehand) schedule / January 11 (Saturday) ・ January 12 (Sunday) ・ January 13 (Monday) ・ January 18 (Saturday) ・ January 19 (Sunday) ・ January 25 (Saturday) ・ January 26 (Sunday) ・ February 1 (Saturday) ・ February 2 (Sunday) ・ February 8 (Saturday) ・ February 9 (Sunday) ・ February 15 (Saturday) Time / 10:00 ~ It will be held 17:00 local sales meetings «appointment». We will introduce about the large-scale sale in local. In our company, During the tour of the local, Such as buildings and streets, We do a detailed description. So you do not like to wait, We will guide you in your appointment. Please note. [Announcement of the winter holiday] We received use our than patronage, Thank you. Actually without permission December 29 (Sunday) ~ January 4 until (Saturday), I will consider it as closed. Customers who have received inquiry during the period by e-mail, Simply send your reply on or after January 5 (Sunday). Your understanding, Thank you for your cooperation. 現地案内会(事前に必ず予約してください)日程/1月11日(土曜日)・1月12日(日曜日)・1月13日(月曜日)・1月18日(土曜日)・1月19日(日曜日)・1月25日(土曜日)・1月26日(日曜日)・2月1日(土曜日)・2月2日(日曜日)・2月8日(土曜日)・2月9日(日曜日)・2月15日(土曜日)時間/10:00 ~ 17:00現地販売会≪予約制≫を開催致します。現地で大規模分譲についてのご紹介を致します。 弊社では、現地での見学の際に、建物や街並みなど、詳しい説明を致します。 お待ちにならずに済むよう、ご予約制でのご案内をいたします。ご了承ください。 【冬季休業のお知らせ】平素より弊社をご利用いただきまして、有難うございます。誠に勝手ながら12月29日(日) ~ 1月4日(土)まで、休業とさせていただきます。期間中にメールにてお問い合わせ頂きましたお客様には、1月5日(日)以降にご返答差し上げます。何卒ご理解、ご協力のほど宜しくお願い申し上げます。 | Most price range 最多価格帯 | | 37 million yen (12 units) 3700万円台(12戸) | Expenses 諸費用 | | Other expenses ※ There dues autonomy 1500yen / Month (please contact us for more details) その他諸費用:※自治会費あり 1500円/月(詳細はお問合わせ下さい) | Building coverage, floor area ratio 建ぺい率・容積率 | | Building coverage: 60%, Volume ratio: 200% 建ぺい率:60%、容積率:200% | Time residents 入居時期 | | March 2014 in late schedule 2014年3月下旬予定 | Land of the right form 土地の権利形態 | | Ownership 所有権 | Structure and method of construction 構造・工法 | | Wooden conventional method of construction two-story (Hebel paste power board 37mm) 木造在来工法2階建て(ヘーベルパワーボード37mm貼り) | Construction 施工 | | Mitsui development 株式会社 三井開発 | Use district 用途地域 | | One middle and high 1種中高 | Land category 地目 | | Residential land 宅地 | Overview and notices その他概要・特記事項 | | Building confirmation number: No. SJK-KX1311020930 other , ● driveway burden / Footpath 48 minutes of 1 ● other equity / Greenbelt ・ Monument 1 of 48 minutes, Greenbelt ・ Monument ・ Village garbage collection point 1 of 12 minutes 建築確認番号:第 SJK-KX1311020930号 他 、●私道負担/フットパス 48分の1 ●その他の持分/緑地帯・モニュメント 48分の1、緑地帯・モニュメント・ゴミ集積場 12分の1 | Company profile 会社概要 | | <Seller> Saitama Governor (7) No. 012557 (Corporation) All Japan Real Estate Association (Corporation) metropolitan area real estate Fair Trade Council member Co., Ltd. Mitsui development Yubinbango337-0051 Saitama Minuma Ku Higashiomiya 1-30-15 <売主>埼玉県知事(7)第012557号(公社)全日本不動産協会会員 (公社)首都圏不動産公正取引協議会加盟(株)三井開発〒337-0051 埼玉県さいたま市見沼区東大宮1-30-15 |
Local photos, including front road前面道路含む現地写真  Local (10 May 2013) Shooting. JR "Hasuda" station, A 15-minute walk. Supermarket, Conveniently located in shopping adjacent to the Dorakkusutoa.
現地(2013年10月)撮影。JR「蓮田」駅、徒歩15分。スーパー、ドラックストアに隣接したお買いものに便利な立地。
Local appearance photo現地外観写真  Local (12 May 2013) Shooting. Model house 38 Building photo. Model house, We pre-open. Early January is the Grand Opening 2014. looking forward to!
現地(2013年12月)撮影。モデルハウス38号棟写真。モデルハウス、プレオープン致しました。2014年1月初旬グランドオープン予定です。お楽しみに!
Livingリビング  Indoor (12 May 2013) Shooting. Model house 28 Building LDK. In day preeminent, Spacious spacious, Space to gather in the family is now complete.
室内(2013年12月)撮影。モデルハウス28号棟LDK。日当たりばつぐんで、ゆったり広々、家族で集まる空間が完成しました。
Kitchenキッチン  Indoor (12 May 2013) Shooting. 38 Building Kitchen. System Kitchen made of Panasonic in the face-to-face, State of the family is safe design can be seen at a glance.
室内(2013年12月)撮影。38号棟キッチン。パナソニック製のシステムキッチンは対面式で、家族の様子が一目で分かる安心設計です。
Non-living roomリビング以外の居室  Indoor (12 May 2013) Shooting. Spacious Japanese-style room of 6 quires that is a living and Tsuzukiai. As a drawing room, The play space for children, To homework, How to use a variety.
室内(2013年12月)撮影。リビングと続き間になっている6帖の広々とした和室。客間として、お子様のプレイスペースに、宿題に、使い方いろいろです。
 Indoor (12 May 2013) Shooting. The main bedroom of storage space with plenty of husband and wife.
室内(2013年12月)撮影。ご夫婦の収納スペースたっぷりの主寝室。
Supermarketスーパー  Emphasis on 300m freshness to Mamimato. Community-based. "I'm happy every day" Super.
マミーマートまで300m 鮮度を重視。地域密着型。「毎日うれしい」スーパー。
Park公園  300m plaything rich to Minuma park, Spacious park. Children peace of mind even if the chasing.
見沼公園まで300m 遊具豊富な、広々とした公園。お子様が追いかけっこをしても安心。
Supermarketスーパー  Chock of goods to 1700m spacious space to Megadonki. If you go to Megadonki, It aligns anything.
メガドンキまで1700m 広々スペースにぎっしりの商品。メガドンキに行けば、なんでも揃います。
Library図書館  1100m rich library to Hasuda library charming library.
蓮田市図書館まで1100m 豊富な蔵書が魅力的な図書館。
Other Equipmentその他設備  Hebel power board sample in our showroom. Obvious to the touch of the thermal insulation properties differences!
弊社ショールーム内のヘーベルパワーボードサンプル。触ってみると断熱性の違いが一目瞭然!
Local guide map現地案内図  Hasuda 15-minute walk from the train station. If you use a car navigation system, Please enter "Hasuda Yamanouchi 5-4".
蓮田駅より徒歩15分。カーナビをご利用の方は、「蓮田市山ノ内5-4」とご入力下さい。
The entire compartment Figure全体区画図  Season Promenade compartment view.
シーズンプロムナード区画図。
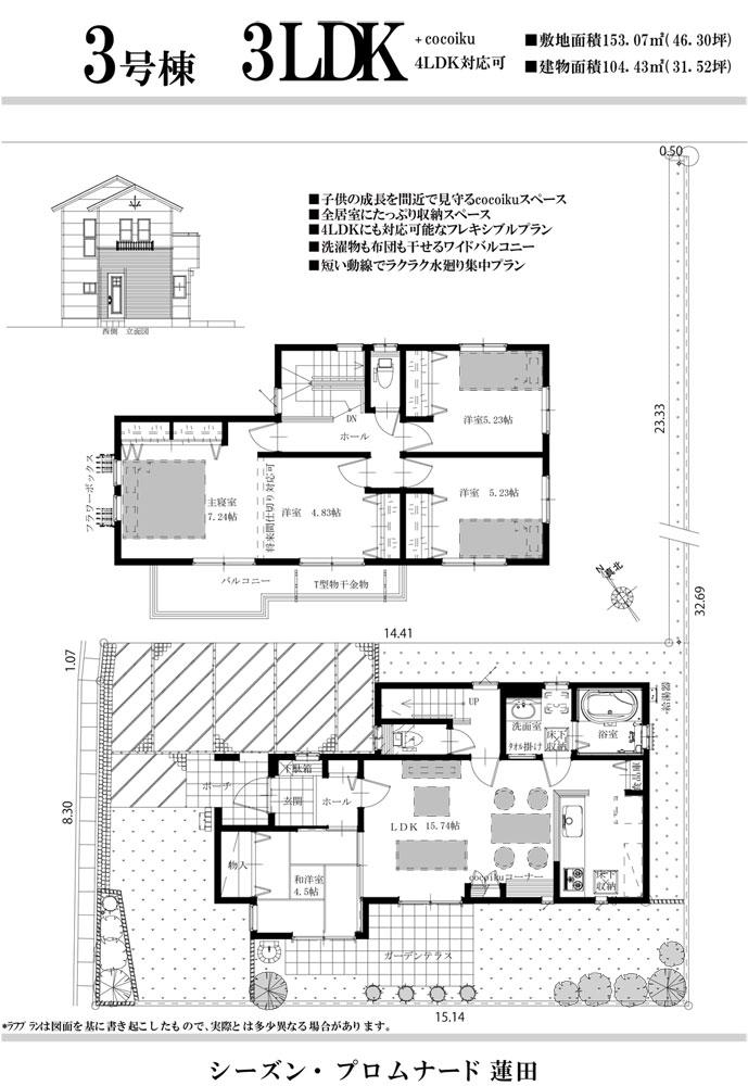
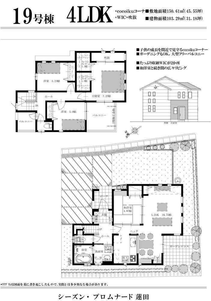
 Floor plan
間取り図
Other Equipmentその他設備  Our construction cases. In the living room the family spend the longest time, "Kokoiku - KokoroIku -" storage & the learning space was established that. Satchel here, textbook, If to put such a collectively notebook, Organized, home work, Such as reading habits will be easier for each body. further, Also easier per only habit that put away. From now on, Although housework conductor of the mother is also important, In "Children's learning leads", It is important that'll lead to the environment in which children are likely to study.
弊社施工例。家族が一番長い時間を過ごすリビングに、「ココイク-心育-」という収納&学習スペースを設置しました。ここにランドセル、教科書、ノートなどをまとめて置くようにすれば、整理整頓、宿題、読書習慣などが身につき易くなります。さらに、片付ける習慣も身につき易くなります。これからは、お母さんの家事導線も重要ですが、「こどもの学習導線」で、子どもが勉強しやすい環境に導いてあげることが大切です。
 Floor plan
間取り図
 Floor plan
間取り図
 Floor plan
間取り図
 Floor plan
間取り図
Local photos, including front road前面道路含む現地写真  In the November sale events 2013, Hasuda of mascot "Hasupyi" came to play.
2013年11月売り出しイベントでは、蓮田市のマスコット「はすぴぃ」が遊びに来てくれました。
 Local appearance photo
現地外観写真
 Other local
その他現地
 Floor plan
間取り図
Primary school小学校  1000m number of children up to Hasuda central elementary school is more than 500 people, Elementary school that does not constantly children of laughter.
蓮田中央小学校まで1000m 児童数が500名を超える、子供たちの笑い声が絶えない小学校。
Kindergarten ・ Nursery幼稚園・保育園  Hasuda kindergarten of 1000m 1949 founded until, History is a kindergarten.
蓮田幼稚園まで1000m 昭和24年設立の、歴史ある幼稚園です。
Other Equipmentその他設備  And Asahi Kasei Hebel power board that has been adopted by our company, It is the maintenance cost comparison graph of the siding.
弊社で採用している旭化成のヘーベルパワーボードと、サイディングとのメンテナンスコスト比較グラフです。
 Access view
交通アクセス図
 And Asahi Kasei Hebel power board that has been adopted by our company, It is a performance comparison chart of the siding.
弊社で採用している旭化成のヘーベルパワーボードと、サイディングとの性能比較グラフです。
 Some luster appears the taste to that knock down Asahi Wood Tech made of flooring "Live Natural".
朝日ウッドテック製のフローリング「Live Natural」使い込むことに味わいのある色艶が現れます。
Drug storeドラッグストア  Until Discount Center Japan is served in the 200m at any time an affordable price.
ディスカウントセンタージャパンまで200m いつでもお手頃価格で提供しています。
Shopping centreショッピングセンター  Until Shimamura 150m) avail, Chambre also adjacent. It aligns the family of casual clothing.
しまむらまで150m )アベイル、シャンブルも隣接。家族のカジュアル服が揃います。
Hospital病院  Kamii 300m internal medicine to clinic. Holiday is also a possible medical care hospital.
上井医院まで300m 内科。休日も診療可能な病院です。
Location
|