New Homes » Kanto » Saitama » Hiki-gun
 
| | Hiki-gun Prefecture Hatoyama-cho 埼玉県比企郡鳩山町 |
| Tobu Tojo Line "Sakado" 15 minutes Ayumi Imajuku 5 minutes by bus 東武東上線「坂戸」バス15分今宿歩5分 |
| [Final It became the 1 building] It is progressing your conclusion of a contract ・ Per day per south road good ((1) (7) Building) ・ LDK the wide windows that spread 【最終 1棟となりました】ご成約進んでおります・南側道路につき日当たり良好((1)(7)号棟)・ワイドな窓が広がるLDK |
| ・ Car space two possible / / / / / / / / / / / / / / / / / / / / New construction ・ Used Detached ・ Used apartment ・ I. A. Corporation home sales if it is a thing of the land Please leave Kawagoe head office please contact 0800-602-6558 / / / / / / / / / / / / / / / / / / / / ・カースペース2台可能////////////////////新築・中古戸建・中古マンション・土地の事ならアイエー住宅販売 川越本店にお任せ下さい0800-602-6558へお問い合わせ下さい//////////////////// |
Features pickup 特徴ピックアップ | | Parking two Allowed / 2 along the line more accessible / Land 50 square meters or more / Facing south / System kitchen / Bathroom Dryer / Yang per good / All room storage / A quiet residential area / Or more before road 6m / Japanese-style room / garden / Washbasin with shower / Face-to-face kitchen / Toilet 2 places / 2-story / South balcony / Underfloor Storage / TV monitor interphone / Ventilation good 駐車2台可 /2沿線以上利用可 /土地50坪以上 /南向き /システムキッチン /浴室乾燥機 /陽当り良好 /全居室収納 /閑静な住宅地 /前道6m以上 /和室 /庭 /シャワー付洗面台 /対面式キッチン /トイレ2ヶ所 /2階建 /南面バルコニー /床下収納 /TVモニタ付インターホン /通風良好 | Price 価格 | | 14.8 million yen 1480万円 | Floor plan 間取り | | 4LDK 4LDK | Units sold 販売戸数 | | 1 units 1戸 | Total units 総戸数 | | 8 units 8戸 | Land area 土地面積 | | 200.06 sq m (registration) 200.06m2(登記) | Building area 建物面積 | | 97.6 sq m (registration) 97.6m2(登記) | Driveway burden-road 私道負担・道路 | | Road width: 6m ~ 13m 道路幅:6m ~ 13m | Completion date 完成時期(築年月) | | July 2013 2013年7月 | Address 住所 | | Hiki-gun Prefecture Hatoyama-cho Oaza Imajuku 埼玉県比企郡鳩山町大字今宿 | Traffic 交通 | | Tobu Tojo Line "Sakado" 15 minutes Ayumi Imajuku 5 minutes by bus Ogosesen Tobu "Bushu Nagase" walk 47 minutes Ogosesen Tobu "Higashimoro" walk 50 minutes 東武東上線「坂戸」バス15分今宿歩5分 東武越生線「武州長瀬」歩47分 東武越生線「東毛呂」歩50分
| Related links 関連リンク | | [Related Sites of this company] 【この会社の関連サイト】 | Person in charge 担当者より | | Rep Enomoto Yosuke Age: 20 Daigyokai experience: you will be the utmost efforts toward the realization of one year your dream. Let's come true the dream together. 担当者榎本 陽介年齢:20代業界経験:1年お客様の夢の実現に向けて精一杯努力させて頂きます。一緒に夢を叶えましょう。 | Contact お問い合せ先 | | TEL: 0800-602-6558 [Toll free] mobile phone ・ Also available from PHS Caller ID is not notified Please contact the "saw SUUMO (Sumo)" If it does not lead, If the real estate company TEL:0800-602-6558【通話料無料】携帯電話・PHSからもご利用いただけます 発信者番号は通知されません 「SUUMO(スーモ)を見た」と問い合わせください つながらない方、不動産会社の方は
| Building coverage, floor area ratio 建ぺい率・容積率 | | Kenpei rate: 60%, Volume ratio: 200% 建ペい率:60%、容積率:200% | Time residents 入居時期 | | Consultation 相談 | Land of the right form 土地の権利形態 | | Ownership 所有権 | Structure and method of construction 構造・工法 | | Wooden slate mushroom 2-story 木造スレート茸2階建 | Use district 用途地域 | | One dwelling 1種住居 | Land category 地目 | | Residential land 宅地 | Overview and notices その他概要・特記事項 | | Contact: Enomoto Yosuke 担当者:榎本 陽介 | Company profile 会社概要 | | <Mediation> Saitama Governor (1) No. 022309 (Ltd.) I. A. Corporation home sales Kawagoe head office Yubinbango350-0024 Kawagoe City Prefecture Namikishin cho 8-11 <仲介>埼玉県知事(1)第022309号(株)アイエー住宅販売川越本店〒350-0024 埼玉県川越市並木新町8-11 |
Local appearance photo現地外観写真  New construction sale All eight buildings
新築分譲 全8棟
 Car space two possible Local (August 2013) Shooting
カースペース2台可能 現地(2013年8月)撮影
Local photos, including front road前面道路含む現地写真  Local (August 2013) Shooting
現地(2013年8月)撮影
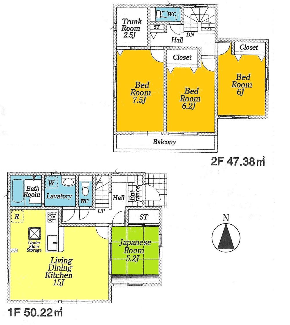
Floor plan間取り図  ((3) Building), Price 14.8 million yen, 4LDK, Land area 200.06 sq m , Building area 97.6 sq m
((3)号棟)、価格1480万円、4LDK、土地面積200.06m2、建物面積97.6m2
Local appearance photo現地外観写真  Local (August 2013) Shooting
現地(2013年8月)撮影
Livingリビング  Room (August 2013) Shooting
室内(2013年8月)撮影
Bathroom浴室  Room (August 2013) Shooting
室内(2013年8月)撮影
Kitchenキッチン  Room (August 2013) Shooting
室内(2013年8月)撮影
Non-living roomリビング以外の居室  Room (August 2013) Shooting
室内(2013年8月)撮影
Entrance玄関  Local (August 2013) Shooting
現地(2013年8月)撮影
Wash basin, toilet洗面台・洗面所  Room (August 2013) Shooting
室内(2013年8月)撮影
Balconyバルコニー  Local (August 2013) Shooting
現地(2013年8月)撮影
Supermarketスーパー  3234m to Seiyu Hatoyama New Town shop
西友鳩山ニュータウン店まで3234m
The entire compartment Figure全体区画図  Compartment figure
区画図
Non-living roomリビング以外の居室  Room (August 2013) Shooting
室内(2013年8月)撮影
Entrance玄関  Local (August 2013) Shooting
現地(2013年8月)撮影
Junior high school中学校  Hatoyama Municipal 2436m to Hatoyama junior high school
鳩山町立鳩山中学校まで2436m
Primary school小学校  785m until Hatoyama Municipal Imajuku elementary school
鳩山町立今宿小学校まで785m
Kindergarten ・ Nursery幼稚園・保育園  Hatoyama Municipal 1899m to Hatoyama kindergarten
鳩山町立鳩山幼稚園まで1899m
Hospital病院  Medical corporation Mami Kaiasa appeared to Hospital 3457m
医療法人眞美会麻見江ホスピタルまで3457m
Park公園  3450m to jumbo park
ジャンボ公園まで3450m
Location
|