New Homes » Kanto » Saitama » Iruma


Saitama Prefecture Iruma
Seibu Ikebukuro Line "Iruma" walk 20 minutes
Features pickup
Measures to conserve energy / Corresponding to the flat-35S / Pre-ground survey / Parking two Allowed / Energy-saving water heaters / Super close / It is close to the city / System kitchen / Bathroom Dryer / Yang per good / All room storage / A quiet residential area / Around traffic fewer / Shaping land / garden / Washbasin with shower / Face-to-face kitchen / Wide balcony / Barrier-free / Toilet 2 places / Bathroom 1 tsubo or more / 2-story / South balcony / Double-glazing / Warm water washing toilet seat / Nantei / Underfloor Storage / The window in the bathroom / TV monitor interphone / Leafy residential area / Ventilation good / Water filter / City gas / A large gap between the neighboring house / Maintained sidewalk / Flat terrain / Attic storage / Readjustment land within
Event information
Local tour dates / Every Saturday, Sunday and public holidays time / 10:00 ~ 17:00
Price
27,800,000 yen ~ 29,800,000 yen
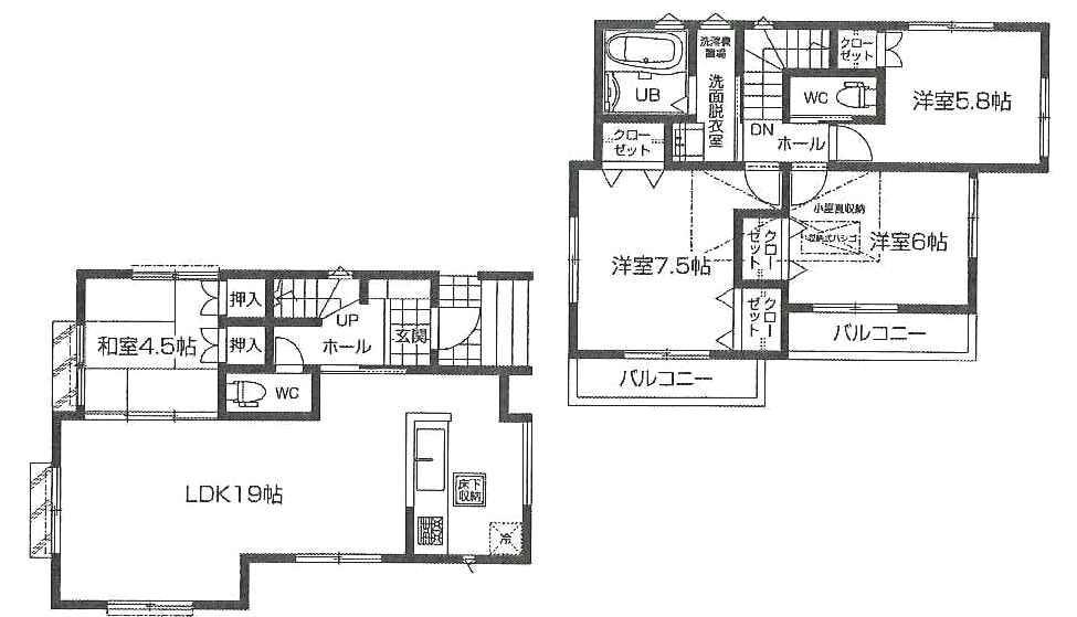
Floor plan
4LDK
Units sold
3 units
Total units
6 units
Land area
118 sq m (35.69 tsubo) (measured)
Building area
94.35 sq m (28.54 tsubo) (measured)
Driveway burden-road
Road width: 5.2m, Asphaltic pavement
Completion date
Mid-January 2014
Address
Saitama Prefecture Iruma Ogidai 4-1-42
Traffic
Seibu Ikebukuro Line "Iruma" walk 20 minutes
Related links
[Related Sites of this company]
Contact
TEL: 0800-603-0804 [Toll free] mobile phone ・ Also available from PHS
Caller ID is not notified
Please contact the "saw SUUMO (Sumo)"
If it does not lead, If the real estate company
Most price range
27 million yen ・ 29 million yen 29 million yen (each 2 units)
Building coverage, floor area ratio
Kenpei rate: 50%, Volume ratio: 80% (in the readjustment land)
Time residents
Consultation
Land of the right form
Ownership
Structure and method of construction
Wooden 2-story (framing method)
Use district
One low-rise
Land category
Residential land
Overview and notices
Building confirmation number: No. 13UDI2S Ken 02054
Company profile
<Mediation> Saitama Governor (10) No. 008534 (Corporation) Prefecture Building Lots and Buildings Transaction Business Association (Corporation) metropolitan area real estate Fair Trade Council member ERA Sayama Real Estate Co., Ltd. Iruma Yubinbango358-0003 Saitama Prefecture Iruma Toyooka 1-4-30 Castle Mansion Iruma Station first floor


Local photos, including front road

Local photos, including front road. Local (11 May 2013) Shooting
Local (11 May 2013) Shooting

Local appearance photo

Local appearance photo. Local (11 May 2013) Shooting
Local (11 May 2013) Shooting

Local appearance photo. Local (11 May 2013) Shooting
Local (11 May 2013) Shooting

Shopping centre

Shopping centre. Iruma 1116m until Shopping Plaza SIOS
Iruma 1116m until Shopping Plaza SIOS

Other introspection

Other introspection. Floor plan
Floor plan

Local guide map
Local guide map

Other

Other. The entire floor plan
The entire floor plan

Supermarket

Supermarket. York Mart Iruma until Ogidai shop 497m
York Mart Iruma until Ogidai shop 497m

Supermarket. 793m to Japan meat wholesale market Iruma
793m to Japan meat wholesale market Iruma

Home center

Home center. 1199m to Nitori Iruma
1199m to Nitori Iruma

Kindergarten ・ Nursery

kindergarten ・ Nursery. Iruma 836m to kindergarten
Iruma 836m to kindergarten

Bank

Bank. JA Iruma field Toyooka to branch 144m
JA Iruma field Toyooka to branch 144m

Park

park. Until Iruma Sports Park 851m
Until Iruma Sports Park 851m



Location