2013April
24,800,000 yen, 4LDK, 103.92 sq m
New Homes » Kanto » Saitama » Kasukabe
 
| | Kasukabe Prefecture 埼玉県春日部市 |
| Isesaki Tobu "Ichinowari" walk 8 minutes 東武伊勢崎線「一ノ割」歩8分 |
| "Ichinowari" Station 8-minute walk ・ LDK about 18 Pledge ・ 4LDK ・ Storage enhancement 「一ノ割」駅徒歩8分・LDK約18帖・4LDK・収納充実 |
| Tobu Sky Tree Line "Ichinowari" is the station 8-minute walk. Commute, Commute, It is convenient to go out. Spacious comfortable LDK is about 18 Pledge. Floor is 4LDK. Is your family everyone you can you live leisurely. It is easy to watch face-to-face kitchen one person play of children. There storage space. The room is likely to Katazuki clean. 東武スカイツリーライン「一ノ割」駅徒歩8分です。通勤、通学、お出かけに便利ですね。広々快適LDKは約18帖。間取りは4LDK。ご家族皆様がのんびりお暮らし頂けます。お子様の一人遊びを見守りやすい対面キッチンです。収納スペースございます。お部屋がスッキリ片付きそうです。 |
Price 価格 | | 24,800,000 yen 2480万円 | Floor plan 間取り | | 4LDK 4LDK | Units sold 販売戸数 | | 1 units 1戸 | Land area 土地面積 | | 81.24 sq m (measured) 81.24m2(実測) | Building area 建物面積 | | 103.92 sq m (measured) 103.92m2(実測) | Driveway burden-road 私道負担・道路 | | Nothing 無 | Completion date 完成時期(築年月) | | April 2013 2013年4月 | Address 住所 | | Kasukabe Prefecture Bingohigashi 2 埼玉県春日部市備後東2 | Traffic 交通 | | Isesaki Tobu "Ichinowari" walk 8 minutes 東武伊勢崎線「一ノ割」歩8分
| Related links 関連リンク | | [Related Sites of this company] 【この会社の関連サイト】 | Contact お問い合せ先 | | TEL: 0800-805-6282 [Toll free] mobile phone ・ Also available from PHS Caller ID is not notified Please contact the "saw SUUMO (Sumo)" If it does not lead, If the real estate company TEL:0800-805-6282【通話料無料】携帯電話・PHSからもご利用いただけます 発信者番号は通知されません 「SUUMO(スーモ)を見た」と問い合わせください つながらない方、不動産会社の方は
| Building coverage, floor area ratio 建ぺい率・容積率 | | 70% ・ 160% 70%・160% | Time residents 入居時期 | | Consultation 相談 | Land of the right form 土地の権利形態 | | Ownership 所有権 | Structure and method of construction 構造・工法 | | Wooden three-story 木造3階建 | Use district 用途地域 | | One dwelling 1種住居 | Overview and notices その他概要・特記事項 | | Facilities: Public Water Supply, This sewage, City gas, Building confirmation number: No. 112-3120-00340, Parking: No 設備:公営水道、本下水、都市ガス、建築確認番号:112-3120-00340号、駐車場:無 | Company profile 会社概要 | | <Mediation> Minister of Land, Infrastructure and Transport (3) No. 006,183 housing Information Center Kasukabe shop Seongnam Construction (Ltd.) Yubinbango344-0063 Kasukabe Prefecture Midoricho 5-8-24 <仲介>国土交通大臣(3)第006183号住宅情報館 春日部店城南建設(株)〒344-0063 埼玉県春日部市緑町5-8-24 |
Local appearance photo現地外観写真  Building appearance
建物外観
 Building appearance
建物外観
 Building appearance
建物外観
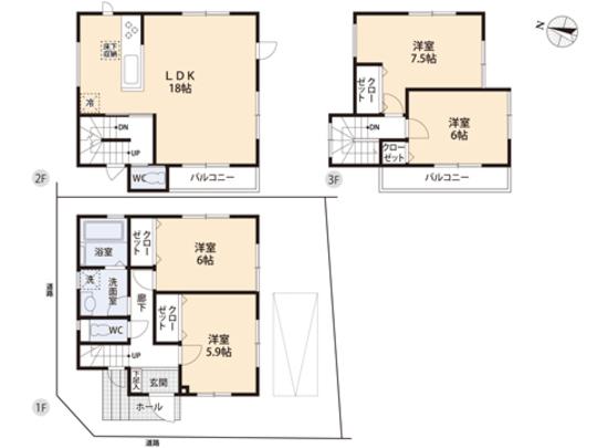
Floor plan間取り図  24,800,000 yen, 4LDK, Land area 81.24 sq m , Building area 103.92 sq m floor plan
2480万円、4LDK、土地面積81.24m2、建物面積103.92m2 間取り図
Otherその他  Maruetsu Ichinowari store a 4-minute walk (about 300m)
マルエツ 一ノ割店 徒歩4分(約300m)
 Ichinowari Station 8-minute walk (about 640m)
一ノ割駅 徒歩8分(約640m)
Location
|