New Homes » Kanto » Saitama » Kawagoe
 
| | Kawagoe City Prefecture 埼玉県川越市 |
| Tobu Tojo Line "Kawagoe" bus 18 minutes Ayumi Fukawa 4 minutes 東武東上線「川越」バス18分府川歩4分 |
| [Every Saturday, Sunday and public holidays 10:00 ~ 17:00 local sales events taking place!] Catch the ball and BBQ, etc. also enhance time the family of the site area 60 square meters !! children! Parallel two available parking room of car space !! 【毎週土日祝10:00 ~ 17:00現地販売会開催中!】敷地面積60坪!!お子様とのキャッチボールやBBQ等ご家族の時間も充実!並列2台駐車可能なゆとりのカースペース!! |
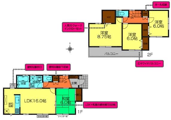
| Land 50 square meters or more, Shaping land, Development subdivision in, Long-term high-quality housing, Or more before road 6m, A quiet residential area, Construction housing performance with evaluation, Design house performance with evaluation, Parking two Allowed, Energy-saving water heaters, System kitchen, Bathroom Dryer, All room storage, LDK15 tatami mats or moreese-style room, Washbasin with shower, Toilet 2 places, Bathroom 1 tsubo or more, 2-story, Warm water washing toilet seat, Underfloor Storage, TV monitor interphone, Walk-in closet, All room 6 tatami mats or more 土地50坪以上、整形地、開発分譲地内、長期優良住宅、前道6m以上、閑静な住宅地、建設住宅性能評価付、設計住宅性能評価付、駐車2台可、省エネ給湯器、システムキッチン、浴室乾燥機、全居室収納、LDK15畳以上、和室、シャワー付洗面台、トイレ2ヶ所、浴室1坪以上、2階建、温水洗浄便座、床下収納、TVモニタ付インターホン、ウォークインクロゼット、全居室6畳以上 |
Features pickup 特徴ピックアップ | | Construction housing performance with evaluation / Design house performance with evaluation / Long-term high-quality housing / Parking two Allowed / Land 50 square meters or more / Energy-saving water heaters / System kitchen / Bathroom Dryer / All room storage / A quiet residential area / LDK15 tatami mats or more / Or more before road 6m / Japanese-style room / Shaping land / Washbasin with shower / Toilet 2 places / Bathroom 1 tsubo or more / 2-story / Warm water washing toilet seat / Underfloor Storage / TV monitor interphone / Walk-in closet / All room 6 tatami mats or more / Development subdivision in 建設住宅性能評価付 /設計住宅性能評価付 /長期優良住宅 /駐車2台可 /土地50坪以上 /省エネ給湯器 /システムキッチン /浴室乾燥機 /全居室収納 /閑静な住宅地 /LDK15畳以上 /前道6m以上 /和室 /整形地 /シャワー付洗面台 /トイレ2ヶ所 /浴室1坪以上 /2階建 /温水洗浄便座 /床下収納 /TVモニタ付インターホン /ウォークインクロゼット /全居室6畳以上 /開発分譲地内 | Event information イベント情報 | | Local sales meetings (please visitors to direct local) schedule / Every Saturday, Sunday and public holidays time / 10:00 ~ 17:00 現地販売会(直接現地へご来場ください)日程/毎週土日祝時間/10:00 ~ 17:00 | Property name 物件名 | | Kawagoe Fukawa second term 川越市府川2期 | Price 価格 | | 27.3 million yen 2730万円 | Floor plan 間取り | | 4LDK 4LDK | Units sold 販売戸数 | | 1 units 1戸 | Total units 総戸数 | | 2 units 2戸 | Land area 土地面積 | | 200.09 sq m (60.52 tsubo) (Registration) 200.09m2(60.52坪)(登記) | Building area 建物面積 | | 103.09 sq m (31.18 tsubo) (measured) 103.09m2(31.18坪)(実測) | Driveway burden-road 私道負担・道路 | | Asphaltic pavement アスファルト舗装 | Completion date 完成時期(築年月) | | December 2013 2013年12月 | Address 住所 | | Kawagoe City Prefecture, Oaza Fukawa 212-6, -7 埼玉県川越市大字府川212-6、-7 | Traffic 交通 | | Tobu Tojo Line "Kawagoe" bus 18 minutes Ayumi Fukawa 4 minutes 東武東上線「川越」バス18分府川歩4分
| Contact お問い合せ先 | | TEL: 0800-805-4398 [Toll free] mobile phone ・ Also available from PHS Caller ID is not notified Please contact the "saw SUUMO (Sumo)" If it does not lead, If the real estate company TEL:0800-805-4398【通話料無料】携帯電話・PHSからもご利用いただけます 発信者番号は通知されません 「SUUMO(スーモ)を見た」と問い合わせください つながらない方、不動産会社の方は
| Building coverage, floor area ratio 建ぺい率・容積率 | | Kenpei rate: 60%, Volume ratio: 200% 建ペい率:60%、容積率:200% | Time residents 入居時期 | | Mid-January 2014 2014年1月中旬予定 | Land of the right form 土地の権利形態 | | Ownership 所有権 | Use district 用途地域 | | Urbanization control area 市街化調整区域 | Overview and notices その他概要・特記事項 | | Building Permits reason: land sale by the development permit, etc., Building confirmation number: No. H25SHC113702 建築許可理由:開発許可等による分譲地、建築確認番号:第H25SHC113702号 | Company profile 会社概要 | | <Mediation> Saitama Governor (1) No. 022509 (Ltd.) Honami Yubinbango331-0815 Saitama city north district Taisei-cho 4-74 <仲介>埼玉県知事(1)第022509号(株)穂波〒331-0815 埼玉県さいたま市北区大成町4-74 |
 Local guide map
現地案内図
 Local (12 May 2013) Shooting
現地(2013年12月)撮影

Livingリビング  Indoor (12 May 2013) Shooting
室内(2013年12月)撮影
 Indoor (12 May 2013) Shooting
室内(2013年12月)撮影
 Other
その他
Non-living roomリビング以外の居室  Indoor (12 May 2013) Shooting
室内(2013年12月)撮影
 Indoor (12 May 2013) Shooting
室内(2013年12月)撮影
Kitchenキッチン  Indoor (12 May 2013) Shooting
室内(2013年12月)撮影
Wash basin, toilet洗面台・洗面所  Indoor (12 May 2013) Shooting
室内(2013年12月)撮影
Kitchenキッチン  Indoor (12 May 2013) Shooting
室内(2013年12月)撮影
Bathroom浴室  Indoor (12 May 2013) Shooting
室内(2013年12月)撮影
Toiletトイレ  Indoor (12 May 2013) Shooting
室内(2013年12月)撮影
Parking lot駐車場  Local (12 May 2013) Shooting
現地(2013年12月)撮影
Supermarketスーパー  Yaoko Co., Ltd. 1403m to Kawagoe Yamada shop
ヤオコー川越山田店まで1403m
Sale already cityscape photo分譲済街並み写真  Sale already the city average
分譲済街並
 Other
その他
Receipt収納  Indoor (12 May 2013) Shooting
室内(2013年12月)撮影
 Other Equipment
その他設備
 Other Equipment
その他設備
Convenience storeコンビニ  1039m until Thanksgiving Kawagoe Yamadahigashi shop
サンクス川越山田東店まで1039m
 FamilyMart 1106m to Kawagoe Prefecture River Takahata shop
ファミリーマート川越府川高畑店まで1106m
Drug storeドラッグストア  1397m until well Park Kawagoe Yamada shop
ウェルパーク川越山田店まで1397m
 Drag Seimusu Shinmei the town to the store 1991m
ドラッグセイムス神明町店まで1991m
Junior high school中学校  1459m to Kawagoe Tateyama Tanaka school
川越市立山田中学校まで1459m
Primary school小学校  976m to Kawagoe City Yamada Elementary School
川越市立山田小学校まで976m
Kindergarten ・ Nursery幼稚園・保育園  Shinmei-cho, 1581m up to nursery school
神明町保育園まで1581m
Government office役所  2658m to Kawagoe city hall
川越市役所まで2658m
Location
|