New Homes » Kanto » Saitama » Kawaguchi city
 
| | Kawaguchi City Prefecture 埼玉県川口市 |
| Nippori ・ Toneri liner "Tonerikoen" walk 22 minutes 日暮里・舎人ライナー「舎人公園」歩22分 |
| Yang per good by Southeast road! Spacious is a facility of enhancement, such as built-in garage to protect the 18 Pledge of LDK and the car from rain and wind. 東南道路により陽当り良好!ひろびろ18帖のLDKや愛車を雨風から守るビルトインガレージなど充実の設備です。 |
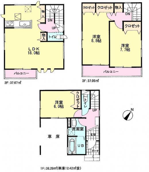
Features pickup 特徴ピックアップ | | LDK18 tatami mats or more / Bathroom Dryer / Yang per good / All room storage / Siemens south road / Shaping land / Toilet 2 places / Bathroom 1 tsubo or more / 2 or more sides balcony / South balcony / Underfloor Storage / TV monitor interphone / Built garage / All room 6 tatami mats or more / Three-story or more / All rooms are two-sided lighting LDK18畳以上 /浴室乾燥機 /陽当り良好 /全居室収納 /南側道路面す /整形地 /トイレ2ヶ所 /浴室1坪以上 /2面以上バルコニー /南面バルコニー /床下収納 /TVモニタ付インターホン /ビルトガレージ /全居室6畳以上 /3階建以上 /全室2面採光 | Price 価格 | | 26 million yen 2600万円 | Floor plan 間取り | | 3LDK 3LDK | Units sold 販売戸数 | | 1 units 1戸 | Total units 総戸数 | | 2 units 2戸 | Land area 土地面積 | | 63.52 sq m (registration) 63.52m2(登記) | Building area 建物面積 | | 113.01 sq m (registration), Among the first floor garage 12.42 sq m 113.01m2(登記)、うち1階車庫12.42m2 | Driveway burden-road 私道負担・道路 | | 15.17 sq m , Southeast 4m width 15.17m2、南東4m幅 | Completion date 完成時期(築年月) | | June 2013 2013年6月 | Address 住所 | | Kawaguchi City Prefecture Yahei 4 埼玉県川口市弥平4 | Traffic 交通 | | Nippori ・ Toneri liner "Tonerikoen" walk 22 minutes Nippori ・ Toneri liner "Toneri" walk 24 minutes 日暮里・舎人ライナー「舎人公園」歩22分 日暮里・舎人ライナー「舎人」歩24分
| Related links 関連リンク | | [Related Sites of this company] 【この会社の関連サイト】 | Person in charge 担当者より | | [Regarding this property.] ◇ ◆ Eidai House Minami Urawa store ◆ ◇ On the day of a possible guidance! ! ◎ until the toll-free 0120-344-546! We will consider property that matches your request even together to introduce! First, not please refer to the Listing Details! OK it is also only course document request! 【この物件について】◇◆永大ハウス南浦和店◆◇ 当日のご案内可能です!!◎フリーダイヤル0120-344-546まで!ご希望に合った物件もまとめてご紹介させて頂きます!まずは物件詳細をご覧下さいませ!もちろん資料請求だけでもOKです! | Contact お問い合せ先 | | TEL: 0120-344546 [Toll free] Please contact the "saw SUUMO (Sumo)" TEL:0120-344546【通話料無料】「SUUMO(スーモ)を見た」と問い合わせください | Building coverage, floor area ratio 建ぺい率・容積率 | | 60% ・ 200% 60%・200% | Time residents 入居時期 | | Consultation 相談 | Land of the right form 土地の権利形態 | | Ownership 所有権 | Structure and method of construction 構造・工法 | | Wooden three-story 木造3階建 | Use district 用途地域 | | Industry 工業 | Other limitations その他制限事項 | | Regulations have by the Landscape Act 景観法による規制有 | Overview and notices その他概要・特記事項 | | Facilities: Public Water Supply, This sewage, Building confirmation number: No. 12UDI2S Ken 03031, Parking: Garage 設備:公営水道、本下水、建築確認番号:第12UDI2S建03031号、駐車場:車庫 | Company profile 会社概要 | | <Marketing alliance (agency)> Saitama Governor (2) No. 021094 (Corporation) metropolitan area real estate Fair Trade Council member (Ltd.) Eidai House Minami Urawa store Yubinbango336-0018 Saitama Minami-ku Minamihon cho 2-2-2 <販売提携(代理)>埼玉県知事(2)第021094号(公社)首都圏不動産公正取引協議会会員 (株)永大ハウス南浦和店〒336-0018 埼玉県さいたま市南区南本町2-2-2 |
 Local appearance photo
現地外観写真
 Local appearance photo
現地外観写真
 Kitchen
キッチン
 Floor plan
間取り図
 Living
リビング
 Bathroom
浴室
 Wash basin, toilet
洗面台・洗面所
 Living
リビング
 Living
リビング
Otherその他  Proud of the company history for more than 30 years, Peace of mind, We have the motto of safe dealings.
社歴30年以上を誇り、安心、安全なお取引をモットーにしております。
 Proud of the company history for more than 30 years, Peace of mind, We have the motto of safe dealings.
社歴30年以上を誇り、安心、安全なお取引をモットーにしております。
 Proud of the company history for more than 30 years, Peace of mind, We have the motto of safe dealings.
社歴30年以上を誇り、安心、安全なお取引をモットーにしております。
 Proud of the company history for more than 30 years, Peace of mind, We have the motto of safe dealings.
社歴30年以上を誇り、安心、安全なお取引をモットーにしております。
 Proud of the company history for more than 30 years, Peace of mind, We have the motto of safe dealings.
社歴30年以上を誇り、安心、安全なお取引をモットーにしております。
 Proud of the company history for more than 30 years, Peace of mind, We have the motto of safe dealings.
社歴30年以上を誇り、安心、安全なお取引をモットーにしております。
 Proud of the company history for more than 30 years, Peace of mind, We have the motto of safe dealings.
社歴30年以上を誇り、安心、安全なお取引をモットーにしております。
Location
|