New Homes » Kanto » Saitama » Kawaguchi city
 
| | Kawaguchi City Prefecture 埼玉県川口市 |
| Saitama high-speed rail "Araijuku" walk 25 minutes 埼玉高速鉄道「新井宿」歩25分 |
| Spacious living space in all room 6 quires more! Bright house of all rooms dihedral daylighting. Only to customers who call or document request, Get the Kuokado of 10,000 yen for those of every month 10 pairs 全居室6帖以上で広々住空間!全室2面採光の明るい住まい。お電話または資料請求頂いたお客様に限り、毎月10組の方に10,000円のクオカードをプレゼント |
| ・ Also with Ease tableware washing dryer cleanup ・ Achieve a comfortable bath time dated bathroom dryer ・ Friendly household and environmental eco-Jaws-life high-quality housing, Pre-ground survey, Vibration Control ・ Seismic isolation ・ Earthquake resistant, Facing south, System kitchen, All room storage, Siemens south road, LDK15 tatami mats or more, Corner lotese-style room, Shaping land, Washbasin with shower, Face-to-face kitchen, Barrier-free, Toilet 2 places, Bathroom 1 tsubo or more, 2-story, South balcony, Double-glazing, Otobasu, Warm water washing toilet seat, Underfloor Storage, The window in the bathroom, TV monitor interphone, Located on a hill ・後片付けもラクラクな食器洗乾燥機付・浴室乾燥機付で心地よいバスタイムを実現・家計と環境にやさしいエコジョーズ期優良住宅、地盤調査済、制震・免震・耐震、南向き、システムキッチン、全居室収納、南側道路面す、LDK15畳以上、角地、和室、整形地、シャワー付洗面台、対面式キッチン、バリアフリー、トイレ2ヶ所、浴室1坪以上、2階建、南面バルコニー、複層ガラス、オートバス、温水洗浄便座、床下収納、浴室に窓、TVモニタ付インターホン、高台に立地 |
Features pickup 特徴ピックアップ | | Long-term high-quality housing / Pre-ground survey / Vibration Control ・ Seismic isolation ・ Earthquake resistant / Energy-saving water heaters / Facing south / System kitchen / Bathroom Dryer / All room storage / Siemens south road / LDK15 tatami mats or more / Corner lot / Japanese-style room / Shaping land / Washbasin with shower / Face-to-face kitchen / Barrier-free / Toilet 2 places / Bathroom 1 tsubo or more / 2-story / South balcony / Double-glazing / Otobasu / Warm water washing toilet seat / Underfloor Storage / The window in the bathroom / TV monitor interphone / Dish washing dryer / All room 6 tatami mats or more / All rooms are two-sided lighting / Located on a hill 長期優良住宅 /地盤調査済 /制震・免震・耐震 /省エネ給湯器 /南向き /システムキッチン /浴室乾燥機 /全居室収納 /南側道路面す /LDK15畳以上 /角地 /和室 /整形地 /シャワー付洗面台 /対面式キッチン /バリアフリー /トイレ2ヶ所 /浴室1坪以上 /2階建 /南面バルコニー /複層ガラス /オートバス /温水洗浄便座 /床下収納 /浴室に窓 /TVモニタ付インターホン /食器洗乾燥機 /全居室6畳以上 /全室2面採光 /高台に立地 | Price 価格 | | 25,900,000 yen 2590万円 | Floor plan 間取り | | 4LDK 4LDK | Units sold 販売戸数 | | 1 units 1戸 | Land area 土地面積 | | 95.86 sq m (registration) 95.86m2(登記) | Building area 建物面積 | | 95.64 sq m (registration) 95.64m2(登記) | Driveway burden-road 私道負担・道路 | | Road width: 4m ・ 5m 道路幅:4m・5m | Completion date 完成時期(築年月) | | January 2014 early schedule 2014年1月上旬予定 | Address 住所 | | Kawaguchi City Prefecture, Oaza Kobe 埼玉県川口市大字神戸 | Traffic 交通 | | Saitama high-speed rail "Araijuku" walk 25 minutes JR Musashino Line "Kazu Higashiura" walk 32 minutes JR Musashino Line "Kazu Higashiura" bus 13 minutes Kizoro MinamiAyumi 4 minutes 埼玉高速鉄道「新井宿」歩25分 JR武蔵野線「東浦和」歩32分JR武蔵野線「東浦和」バス13分木曽呂南歩4分 | Related links 関連リンク | | [Related Sites of this company] 【この会社の関連サイト】 | Person in charge 担当者より | | The person in charge Hosoya Takuji Age: 20's is a life of property "looking for My Home" is fine with any thing! First "consultation" Please! I will my best to help. 担当者細谷 卓司年齢:20代一生の財産である“マイホーム探し”どんな事でも結構です!まずは「ご相談」下さい! 精一杯お手伝いさせて頂きます。 | Contact お問い合せ先 | | TEL: 0800-603-8258 [Toll free] mobile phone ・ Also available from PHS Caller ID is not notified Please contact the "saw SUUMO (Sumo)" If it does not lead, If the real estate company TEL:0800-603-8258【通話料無料】携帯電話・PHSからもご利用いただけます 発信者番号は通知されません 「SUUMO(スーモ)を見た」と問い合わせください つながらない方、不動産会社の方は
| Building coverage, floor area ratio 建ぺい率・容積率 | | Kenpei rate: 50%, Volume ratio: 100% 建ペい率:50%、容積率:100% | Time residents 入居時期 | | January 2014 early schedule 2014年1月上旬予定 | Land of the right form 土地の権利形態 | | Ownership 所有権 | Structure and method of construction 構造・工法 | | Wooden 2-story 木造2階建 | Use district 用途地域 | | One low-rise 1種低層 | Land category 地目 | | Residential land 宅地 | Other limitations その他制限事項 | | On the day you can visit. 当日見学可能です。 | Overview and notices その他概要・特記事項 | | Contact: Hosoya Takuji, Building confirmation number: 13UDI1W Ken 02144 担当者:細谷 卓司、建築確認番号:13UDI1W建02144 | Company profile 会社概要 | | <Mediation> Saitama Governor (2) the first 021,116 No. Century 21 (Ltd.) House Navi Yubinbango333-0866 Kawaguchi City Prefecture, Oaza turf 4438-1 <仲介>埼玉県知事(2)第021116号センチュリー21(株)ハウスナビ〒333-0866 埼玉県川口市大字芝4438-1 |
Otherその他  This property is possible guidance on the day. 9 o'clock ~ If you can contact us at 23 o'clock, Please contact "0800-603-8258" so you can visit. It is also possible to ask to pick up your designated station. Also of interest you after work!
こちらの物件は当日ご案内が可能です。9時 ~ 23時までご連絡いただければ、見学できますのでお気軽に『0800-603-8258』までお問い合わせください。ご指定の駅までお迎えに伺うことも可能です。お仕事帰りにもどうぞ!
Local appearance photo現地外観写真  Local (10 May 2013) Shooting
現地(2013年10月)撮影
Local photos, including front road前面道路含む現地写真  Local (10 May 2013) Shooting
現地(2013年10月)撮影
Otherその他  Saitama high-speed rail "Araijuku" station
埼玉高速鉄道「新井宿」駅
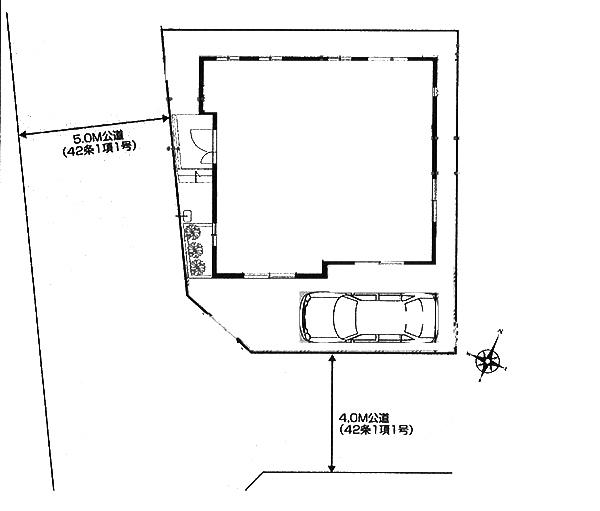
Floor plan間取り図  (1 Building), Price 25,900,000 yen, 4LDK, Land area 95.86 sq m , Building area 95.64 sq m
(1号棟)、価格2590万円、4LDK、土地面積95.86m2、建物面積95.64m2
Supermarketスーパー  Maruya until Sashima shop 1300m
マルヤさしま店まで1300m
 The entire compartment Figure
全体区画図
Junior high school中学校  1350m until Kawaguchi Tatsukita junior high school
川口市立北中学校まで1350m
Primary school小学校  1090m until Kawaguchi Tatsugami root Elementary School
川口市立神根小学校まで1090m
Kindergarten ・ Nursery幼稚園・保育園  Kizoro 968m to kindergarten
きぞろ幼稚園まで968m
 1000m until Kawaguchi Tatsugami root nursery
川口市立神根保育所まで1000m
Hospital病院  500m to Kawaguchi cherry hospital
川口さくら病院まで500m
 1200m to Saitama Cooperative Hospital
埼玉協同病院まで1200m
Presentプレゼント  Only to customers who call or document request, Get the Kuokado of 10,000 yen for those of every month 10 pairs ☆ Double chance! "I will present the Kuokado of 2,000 yen to all customers who fill out to visit us We questionnaire with your family" (I will consider it as a one-time set-like)
お電話または資料請求頂いたお客様に限り、毎月10組の方に10,000円のクオカードをプレゼント☆ダブルチャンス!「ご家族でご来店頂きアンケートにご記入頂いたお客様全員に2,000円のクオカードをプレゼント致します」(1組様1回限りとさせて頂きます)
Location
|