New Homes » Kanto » Saitama » Kawaguchi city
 
| | Kawaguchi City Prefecture 埼玉県川口市 |
| Saitama high-speed rail "Angyo Totsuka" walk 30 minutes 埼玉高速鉄道「戸塚安行」歩30分 |
| 39.92 square meters ~ 60.18 square meters of spacious 4LDK limited 4 buildings sale! ! All four buildings, LDK is spacious 15 quires more. Bright open kitchen ◎ Angyo east elementary school also bouncy conversation of family / Angyo junior high school 39.92坪 ~ 60.18坪の広々4LDK限定4棟販売開始!!全4棟、LDKは広々15帖以上。家族の会話も弾む明るいオープンキッチン◎安行東小学校/安行中学校 |
| LDK15 tatami mats or more, Flat to the station, Pre-ground survey, Corresponding to the flat-35S, Parking two Allowed, Barrier-free ◆ It is close to the city, System kitchen, Bathroom Dryer, Yang per good, All room storage, A quiet residential area ◆ Japanese-style room, Shaping land, Face-to-face kitchen, Toilet 2 places, Bathroom 1 tsubo or more, 2-story, Southeast direction, Double-glazing ◆ Underfloor Storage, TV monitor interphone, Urban neighborhood, Ventilation good, All room 6 tatami mats or more, Storeroom, Flat terrain ◆ The readjustment land ● ○ ● weekly Saturdays, Sundays, and holidays Local sales meetings being conducted ● ○ ● 10: 00 ~ 17:00! Please come directly to the local. Staff will guide you through the actual streets and buildings under construction ※ Weekday of guidance is also available. Please feel free to contact us. LDK15畳以上、駅まで平坦、地盤調査済、フラット35Sに対応、駐車2台可、バリアフリー◆市街地が近い、システムキッチン、浴室乾燥機、陽当り良好、全居室収納、閑静な住宅地◆和室、整形地、対面式キッチン、トイレ2ヶ所、浴室1坪以上、2階建、東南向き、複層ガラス◆床下収納、TVモニタ付インターホン、都市近郊、通風良好、全居室6畳以上、納戸、平坦地◆区画整理地内●○●毎週土日祝日 現地販売会実施中●○●10:00 ~ 17:00まで!直接現地へお越しください。実際の街並みや建築中の建物をスタッフがご案内いたします※平日のご案内も可能です。お気軽にお問合せください。 |
Features pickup 特徴ピックアップ | | Corresponding to the flat-35S / Pre-ground survey / Parking two Allowed / It is close to the city / System kitchen / Bathroom Dryer / Yang per good / All room storage / Flat to the station / A quiet residential area / LDK15 tatami mats or more / Japanese-style room / Shaping land / Face-to-face kitchen / Barrier-free / Toilet 2 places / Bathroom 1 tsubo or more / 2-story / Southeast direction / Double-glazing / Underfloor Storage / TV monitor interphone / Urban neighborhood / Ventilation good / All room 6 tatami mats or more / Storeroom / Flat terrain / Readjustment land within フラット35Sに対応 /地盤調査済 /駐車2台可 /市街地が近い /システムキッチン /浴室乾燥機 /陽当り良好 /全居室収納 /駅まで平坦 /閑静な住宅地 /LDK15畳以上 /和室 /整形地 /対面式キッチン /バリアフリー /トイレ2ヶ所 /浴室1坪以上 /2階建 /東南向き /複層ガラス /床下収納 /TVモニタ付インターホン /都市近郊 /通風良好 /全居室6畳以上 /納戸 /平坦地 /区画整理地内 | Property name 物件名 | | Livele Garden.S Kawaguchi ・ Angyoryoke Livele Garden.S 川口・安行領家 | Price 価格 | | 27,800,000 yen ~ 29,800,000 yen 2780万円 ~ 2980万円 | Floor plan 間取り | | 4LDK ~ 4LDK + S (storeroom) 4LDK ~ 4LDK+S(納戸) | Units sold 販売戸数 | | 4 units 4戸 | Land area 土地面積 | | 131.99 sq m ~ 198.97 sq m (registration) 131.99m2 ~ 198.97m2(登記) | Building area 建物面積 | | 101.02 sq m ~ 105.98 sq m (registration) 101.02m2 ~ 105.98m2(登記) | Completion date 完成時期(築年月) | | 2014 mid-January 2014年1月中旬 | Address 住所 | | Kawaguchi City Prefecture, Oaza Angyoryoke shaped Nitta 633 No. 埼玉県川口市大字安行領家字新田633番 | Traffic 交通 | | Saitama high-speed rail "Angyo Totsuka" walk 30 minutes Tobu Isesaki Line "Soka" 12 minutes Kawaguchi fruit and vegetable market walk 6 minutes by bus JR Keihin Tohoku Line "Kawaguchi" 25 minutes Angyohara Ayumi Sakashita 5 minutes by bus 埼玉高速鉄道「戸塚安行」歩30分 東武伊勢崎線「草加」バス12分川口青果市場歩6分 JR京浜東北線「川口」バス25分安行原坂下歩5分
| Related links 関連リンク | | [Related Sites of this company] 【この会社の関連サイト】 | Person in charge 担当者より | | Person in charge of Castle plant Naoki 担当者城所 直樹 | Contact お問い合せ先 | | TEL: 0800-808-9730 [Toll free] mobile phone ・ Also available from PHS Caller ID is not notified Please contact the "saw SUUMO (Sumo)" If it does not lead, If the real estate company TEL:0800-808-9730【通話料無料】携帯電話・PHSからもご利用いただけます 発信者番号は通知されません 「SUUMO(スーモ)を見た」と問い合わせください つながらない方、不動産会社の方は
| Land of the right form 土地の権利形態 | | Ownership 所有権 | Use district 用途地域 | | One low-rise 1種低層 | Overview and notices その他概要・特記事項 | | Contact: Kidokoro Naoki 担当者:城所 直樹 | Company profile 会社概要 | | <Marketing alliance (agency)> Saitama Governor (2) No. 021313 (Ltd.) income Yubinbango332-0017 Kawaguchi City Sakae 2-11-19 <販売提携(代理)>埼玉県知事(2)第021313号(株)インカム〒332-0017 埼玉県川口市栄町2-11-19 |
Local appearance photo現地外観写真  Rendering!
完成予想図!
 1 Building local photo (December 2013 shooting) currently under construction (January scheduled to be completed in 2014) 1 Building ・ 4LDK with a land 42 square meters The garden with the two garage space
1号棟現地写真(2013年12月撮影)現在建築中(2014年1月完成予定)1号棟・土地42坪付の4LDK 車庫スペース2台にお庭つき
 4 Building local photo (December 2013 shooting) Currently under construction (to be completed in January 2014) 4 Building ・ Of 3 direction land 4LDK There are two garage space
4号棟現地写真(2013年12月撮影) 現在建築中(2014年1月完成予定) 4号棟・3方角地の4LDK 車庫スペース2台あります
 3 Building local photo (December 2013 shooting) Currently under construction (to be completed in January 2014) Building 3 ・ 4LDK of two-way road with land 39 square meters The garden with the two garage space
3号棟現地写真(2013年12月撮影) 現在建築中(2014年1月完成予定) 3号棟・土地39坪付2方道路の4LDK 車庫スペース2台にお庭つき
 2 Building local photo (December 2013 shooting) Currently under construction (to be completed in January 2014) Building 2 ・ 4LDK of land with 60 square meters Garage space 3 ・ In four Allowed, Garden with
2号棟現地写真(2013年12月撮影) 現在建築中(2014年1月完成予定) 2号棟・土地60坪付の4LDK 車庫スペース3・4台可で、お庭つき
 Construction ・ Construction method ・ specification
構造・工法・仕様
 Other Equipment
その他設備
 3 Building local photo (December 2013 shooting) currently under construction (to be completed in January 2014) taken from Building 3 back road It is good per yang!
3号棟現地写真(2013年12月撮影)現在建築中(2014年1月完成予定)3号棟裏側道路からの撮影 陽当たり良好ですね!
Rendering (appearance)完成予想図(外観)  Image Rendering up 4 Building
イメージ完成予想図取り4号棟
 Construction ・ Construction method ・ specification
構造・工法・仕様
 Power generation ・ Hot water equipment
発電・温水設備
Local photos, including front road前面道路含む現地写真  4 Building local photo (December 2013 shooting) currently under construction (January scheduled to be completed in 2014) 1 Building ・ Loose in the corner lot
4号棟現地写真(2013年12月撮影)現在建築中(2014年1月完成予定)1号棟・角地でゆったり
 Construction ・ Construction method ・ specification
構造・工法・仕様
 Other Equipment
その他設備
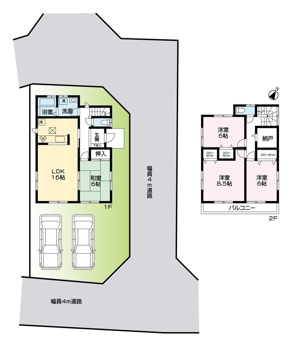
Otherその他  Floor 4 Building
間取り4号棟
 Construction ・ Construction method ・ specification
構造・工法・仕様
 Other Equipment
その他設備
 Construction ・ Construction method ・ specification
構造・工法・仕様
 Other Equipment
その他設備
 Construction ・ Construction method ・ specification
構造・工法・仕様
 Other Equipment
その他設備
Location
|