|
|
Kawaguchi City Prefecture
埼玉県川口市
|
|
Saitama high-speed rail "Angyo Totsuka" walk 7 minutes
埼玉高速鉄道「戸塚安行」歩7分
|
|
● ☆ Saitama high-speed rail "Angyo Totsuka" station 7-minute walk ☆ ●● ☆ Super convenience store near ☆ ●● ☆ Living environment favorable ☆ ●● ☆ Streets clean ☆ ●
●☆埼玉高速鉄道「戸塚安行」駅徒歩7分☆●●☆スーパーコンビニ近く☆●●☆生活環境良好☆●●☆街並みキレイ☆●
|
|
Saitama high-speed rail "Angyo Totsuka" station 7-minute walk! Cityscape is located in the beautiful land readjustment land, Supermarket, Convenience store is also near the living environment is very good. All the living room facing south, Parking space two Allowed bathroom wide mirror, Wide balcony. or, Bathroom Dryer with unit bus, Bidet with toilet, Pair glass in all room, Intercom with TV monitor has been attached. At any time so you can guide you, Why not try once made us a look. We will wait for your contact.
埼玉高速鉄道「戸塚安行」駅徒歩7分!街並みがキレイな区画整理地内であり、スーパー、コンビニも近くにあり生活環境は大変良好であります。全居室南向き、駐車スペース2台可浴室ワイドミラー、ワイドバルコニーです。又、浴室乾燥つきユニットバス、ウォシュレットつきトイレ、全居室にペアガラス、TVモニター付インターホンがついております。いつでもご案内できますので、一度ぜひご覧になってみてはいかがでしょうか。ご連絡お待ち致しております。
|
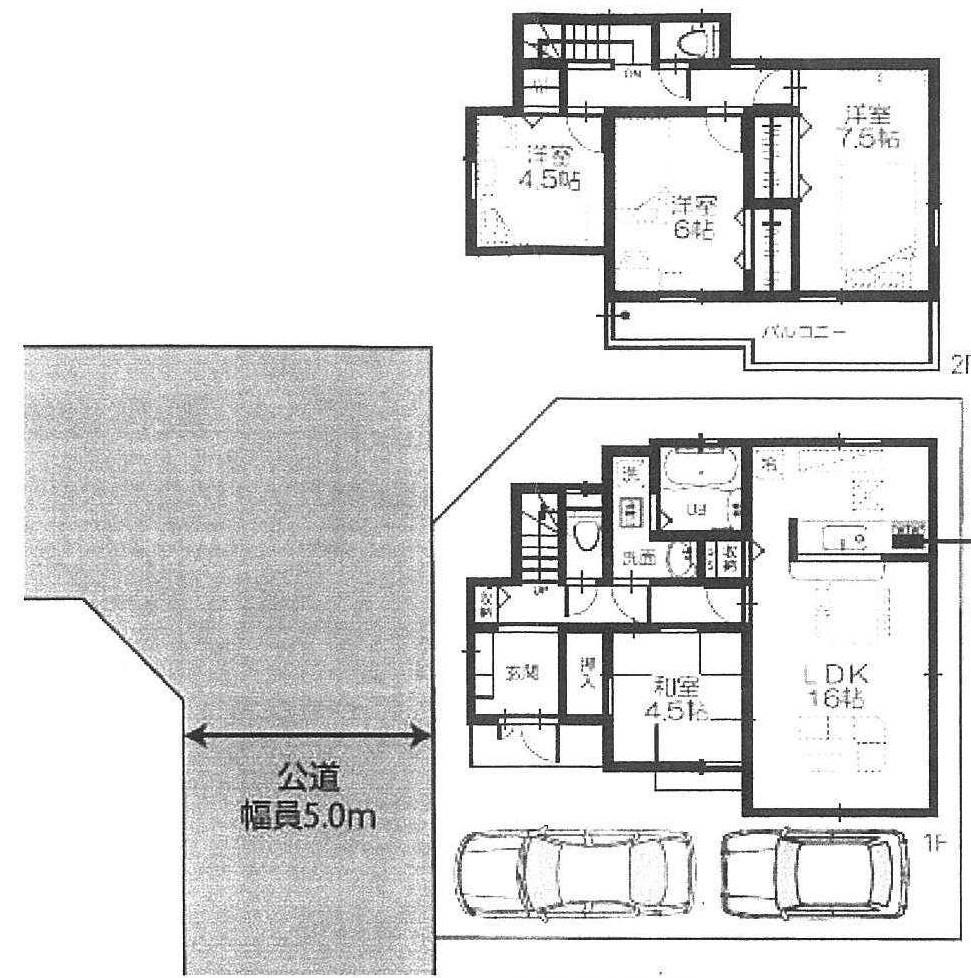
Features pickup 特徴ピックアップ | | Parking two Allowed / Super close / Facing south / System kitchen / Bathroom Dryer / Yang per good / All room storage / A quiet residential area / LDK15 tatami mats or more / Japanese-style room / Shaping land / Wide balcony / Toilet 2 places / Bathroom 1 tsubo or more / South balcony / Zenshitsuminami direction / Warm water washing toilet seat / Underfloor Storage / The window in the bathroom / TV monitor interphone / Or more ceiling height 2.5m 駐車2台可 /スーパーが近い /南向き /システムキッチン /浴室乾燥機 /陽当り良好 /全居室収納 /閑静な住宅地 /LDK15畳以上 /和室 /整形地 /ワイドバルコニー /トイレ2ヶ所 /浴室1坪以上 /南面バルコニー /全室南向き /温水洗浄便座 /床下収納 /浴室に窓 /TVモニタ付インターホン /天井高2.5m以上 |
Price 価格 | | 37,800,000 yen 3780万円 |
Floor plan 間取り | | 4LDK 4LDK |
Units sold 販売戸数 | | 1 units 1戸 |
Total units 総戸数 | | 1 units 1戸 |
Land area 土地面積 | | 109.25 sq m (registration) 109.25m2(登記) |
Building area 建物面積 | | 96.35 sq m (registration) 96.35m2(登記) |
Driveway burden-road 私道負担・道路 | | Nothing, East 5m width 無、東5m幅 |
Completion date 完成時期(築年月) | | February 2014 2014年2月 |
Address 住所 | | Kawaguchi City Prefecture, Oaza Angyotohachi 埼玉県川口市大字安行藤八 |
Traffic 交通 | | Saitama high-speed rail "Angyo Totsuka" walk 7 minutes 埼玉高速鉄道「戸塚安行」歩7分
|
Person in charge 担当者より | | Rep Kimura Naoto Age: 20 Daigyokai Experience: 1 year rookie of Kimura Naoto is. Your correspondence to quickly to customer requests, Please let me help you are looking for house come true to hope. 担当者木村 直登年齢:20代業界経験:1年新人の きむら なおと です。お客様のご要望にスピーディーにご対応し、ご希望に叶ったお住まい探しのお手伝いをさせて頂きます。 |
Contact お問い合せ先 | | TEL: 0800-603-0722 [Toll free] mobile phone ・ Also available from PHS Caller ID is not notified Please contact the "saw SUUMO (Sumo)" If it does not lead, If the real estate company TEL:0800-603-0722【通話料無料】携帯電話・PHSからもご利用いただけます 発信者番号は通知されません 「SUUMO(スーモ)を見た」と問い合わせください つながらない方、不動産会社の方は
|
Building coverage, floor area ratio 建ぺい率・容積率 | | Fifty percent ・ Hundred percent 50%・100% |
Time residents 入居時期 | | March 2014 schedule 2014年3月予定 |
Land of the right form 土地の権利形態 | | Ownership 所有権 |
Structure and method of construction 構造・工法 | | Wooden 2-story 木造2階建 |
Use district 用途地域 | | One low-rise 1種低層 |
Overview and notices その他概要・特記事項 | | Contact: Kimura Naoto, Facilities: Public Water Supply, This sewage, City gas, Building confirmation number: SJK-KY 1311020271, Parking: car space 担当者:木村 直登、設備:公営水道、本下水、都市ガス、建築確認番号:SJK-KY 1311020271、駐車場:カースペース |
Company profile 会社概要 | | <Mediation> Minister of Land, Infrastructure and Transport (11) No. 002401 (Corporation) Prefecture Building Lots and Buildings Transaction Business Association (Corporation) metropolitan area real estate Fair Trade Council member (Ltd.) a central residential Porras residence of Information Center Higashikawaguchi office Yubinbango333-0802 Kawaguchi City Prefecture Tozukahigashi 1-5-27 <仲介>国土交通大臣(11)第002401号(公社)埼玉県宅地建物取引業協会会員 (公社)首都圏不動産公正取引協議会加盟(株)中央住宅ポラス住まいの情報館東川口営業所〒333-0802 埼玉県川口市戸塚東1-5-27 |