New Homes » Kanto » Saitama » Kawaguchi city
 
| | Kawaguchi City Prefecture 埼玉県川口市 |
| Saitama high-speed rail "Araijuku" walk 3 minutes 埼玉高速鉄道「新井宿」歩3分 |
| [Kawaguchi Red Mount housing Sale !!! at the new price] Before change "33,800,000 yen" → after the change "29,800,000 yen" ○ flat 35S corresponding! ● bathroom with heating dryer! ○ popular station near property! 【川口市赤山住宅 新価格にて販売開始!!!】変更前「3380万円」 → 変更後「2980万円」○フラット35S対応!●暖房乾燥機付バスルーム!○人気の駅近物件! |
| ● There is parking space can not be put to much hand in the neighboring! ○ neighborhood facilities also enhance! ● floor plan is 4LDK + garage ○ all the living room window: adopt a pair glass sash! ● Site area: about 35.12 square meters, Building area: about 33.81 square meters -------------------------------------------- . Want all means look for people who think of new construction within 5% of pre-tax increase. If you can still raise taxes before you buy now! Come once, Please consider. ※ Building and mortgage, If there such as any questions in it about other housing, Please feel free to contact us. ●近隣ではあまり手に入れる事のできない駐車スペース有り!○近隣施設も充実!●間取りは4LDK+車庫○全居室窓:ペアガラスサッシを採用!●敷地面積:約35.12坪、建物面積:約33.81坪---------------------------------------------------来年4月より消費税は8%へ…。増税前の5%のうちに新築をお考えの方に是非ともご覧頂きたい。今ならまだ増税前のご購入が可能です!是非一度、ご検討下さいませ。※建物や住宅ローン、その他の住宅に関する事で何かご不明な点など御座いましたら、お気軽にお問合せ下さいませ。 |
Features pickup 特徴ピックアップ | | Corresponding to the flat-35S / Pre-ground survey / LDK18 tatami mats or more / Energy-saving water heaters / Super close / System kitchen / Bathroom Dryer / Yang per good / All room storage / A quiet residential area / Around traffic fewer / Japanese-style room / Washbasin with shower / Wide balcony / Toilet 2 places / Bathroom 1 tsubo or more / 2-story / 2 or more sides balcony / Double-glazing / The window in the bathroom / Atrium / Ventilation good / Built garage / Southwestward / All room 6 tatami mats or more / Water filter / City gas / All rooms are two-sided lighting / Movable partition フラット35Sに対応 /地盤調査済 /LDK18畳以上 /省エネ給湯器 /スーパーが近い /システムキッチン /浴室乾燥機 /陽当り良好 /全居室収納 /閑静な住宅地 /周辺交通量少なめ /和室 /シャワー付洗面台 /ワイドバルコニー /トイレ2ヶ所 /浴室1坪以上 /2階建 /2面以上バルコニー /複層ガラス /浴室に窓 /吹抜け /通風良好 /ビルトガレージ /南西向き /全居室6畳以上 /浄水器 /都市ガス /全室2面採光 /可動間仕切り | Event information イベント情報 | | Local tours (please visitors to direct local) schedule / Every Saturday, Sunday and public holidays time / 10:00 ~ 17:00 Address [Kawaguchi Oaza Red Mount 1199-6] Saturdays, Sundays, and holidays are staff on site will guide. If you have any that you do not know in the building that, Please feel free to ask. Other, If there such as anxiety point also for the mortgage or loan deduction, Please tell us. On weekdays, so we have also the guidance of (every week except Wednesday), Please not hesitate to contact us. 現地見学会(直接現地へご来場ください)日程/毎週土日祝時間/10:00 ~ 17:00住所【川口市大字赤山1199-6】土日祝日は現地にてスタッフがご案内致します。建物の事でわからない事などありましたら、お気軽にお尋ね下さい。その他、住宅ローンやローン控除についても不安な点など御座いましたら、お申し付け下さいませ。平日(毎週水曜除く)のご案内もしておりますので、お気軽にお問い合わせ下さいませ。 | Price 価格 | | 29,800,000 yen 2980万円 | Floor plan 間取り | | 4LDK 4LDK | Units sold 販売戸数 | | 1 units 1戸 | Land area 土地面積 | | 116.12 sq m (35.12 tsubo) (measured) 116.12m2(35.12坪)(実測) | Building area 建物面積 | | 111.77 sq m (33.81 square meters), Of underground garage 9.93 sq m 111.77m2(33.81坪)、うち地下車庫9.93m2 | Driveway burden-road 私道負担・道路 | | Share equity 183.76 sq m × (1 / 24), East 3.8m width 共有持分183.76m2×(1/24)、東3.8m幅 | Completion date 完成時期(築年月) | | August 2013 2013年8月 | Address 住所 | | Kawaguchi City Prefecture, Oaza Red Mount 埼玉県川口市大字赤山 | Traffic 交通 | | Saitama high-speed rail "Araijuku" walk 3 minutes Saitama high-speed rail "Hatogaya" walk 22 minutes Saitama high-speed rail "Angyo Totsuka" walk 29 minutes 埼玉高速鉄道「新井宿」歩3分 埼玉高速鉄道「鳩ヶ谷」歩22分 埼玉高速鉄道「戸塚安行」歩29分
| Related links 関連リンク | | [Related Sites of this company] 【この会社の関連サイト】 | Person in charge 担当者より | | Rep Yoshimoto 担当者吉本 | Contact お問い合せ先 | | (Ltd.) Isle TEL: 0800-809-8355 [Toll free] mobile phone ・ Also available from PHS Caller ID is not notified Please contact the "saw SUUMO (Sumo)" If it does not lead, If the real estate company (株)アイルTEL:0800-809-8355【通話料無料】携帯電話・PHSからもご利用いただけます 発信者番号は通知されません 「SUUMO(スーモ)を見た」と問い合わせください つながらない方、不動産会社の方は
| Building coverage, floor area ratio 建ぺい率・容積率 | | 60% ・ 160% 60%・160% | Time residents 入居時期 | | Consultation 相談 | Land of the right form 土地の権利形態 | | Ownership 所有権 | Structure and method of construction 構造・工法 | | Wooden second floor underground 1 story (framing method) some RC 木造2階地下1階建(軸組工法)一部RC | Construction 施工 | | (Ltd.) Nana Home (株)ナナホーム | Use district 用途地域 | | One dwelling 1種住居 | Overview and notices その他概要・特記事項 | | Contact: Yoshimoto, Facilities: Public Water Supply, Individual septic tank, City gas, Parking: Garage 担当者:吉本、設備:公営水道、個別浄化槽、都市ガス、駐車場:車庫 | Company profile 会社概要 | | <Marketing alliance (agency)> Saitama Governor (1) No. 021657 (Ltd.) Isle Yubinbango350-0823 Kawagoe City Prefecture Shinmei-cho, 23-1 <販売提携(代理)>埼玉県知事(1)第021657号(株)アイル〒350-0823 埼玉県川越市神明町23-1 |
Local appearance photo現地外観写真  Local (12 May 2013) Shooting ・ First floor part is ordered and garage space. ・ We also now become popular modern design with respect to appearance.
現地(2013年12月)撮影・1階部分は車庫スペースとなっております。・外観に関しても今人気のモダンなデザインとなっております。
Livingリビング  Indoor (12 May 2013) Shooting ・ Living is spacious space of about 18.5 quires ・ Since we have connected with Japanese-style room, It spreads the width of the use of the.
室内(2013年12月)撮影 ・リビングは約18.5帖の広々スペース ・和室とも繋がっておりますので、活用の幅が広がります。
Non-living roomリビング以外の居室  Indoor (12 May 2013) Shooting ・ Facing the road side, Sunny. ・ You also can take advantage of to the customer ever been.
室内(2013年12月)撮影 ・道路側に面しており、日当たり良好。 ・お客様がいらっしゃった際にも活用できます。
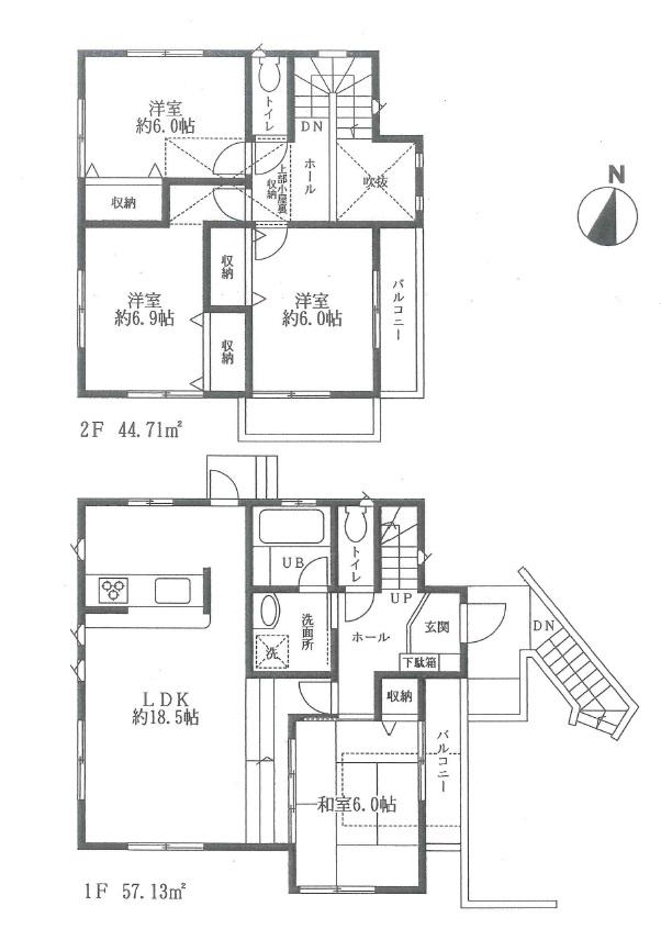
Floor plan間取り図  29,800,000 yen, 4LDK, Land area 116.12 sq m , Building area 111.77 sq m ・ Kawaguchi Red Mount housing Floor plan
2980万円、4LDK、土地面積116.12m2、建物面積111.77m2 ・川口市赤山住宅 間取り図
Bathroom浴室  Indoor (12 May 2013) Shooting ・ About 2 Pledge worth of bathroom space. ・ Also it has become a simple specification care.
室内(2013年12月)撮影 ・約2帖分の浴室スペース。 ・お手入れも簡単な仕様となっております。
Non-living roomリビング以外の居室  Indoor (12 May 2013) Shooting
室内(2013年12月)撮影
Other introspectionその他内観  Indoor (12 May 2013) Shooting
室内(2013年12月)撮影
Station駅  Local nearest station: Saitama high-speed rail "Araijuku" ・ Walk about 3 minutes
現地最寄駅:埼玉高速鉄道「新井宿」・徒歩約3分
Kitchenキッチン  Indoor (12 May 2013) Shooting
室内(2013年12月)撮影
Non-living roomリビング以外の居室  Indoor (12 May 2013) Shooting
室内(2013年12月)撮影
Location
|