New Homes » Kanto » Saitama » Kawaguchi city


Kawaguchi City Prefecture
Saitama high-speed rail, "Kawaguchi Motogo" walk 10 minutes
◆ Station 11 minutes' walk ◆ Wide balcony two places
◆ design ・ Construction housing performance evaluation report income plan ◆ Earthquake-proof ◆ Peace of mind guarantee ・ insurance
Features pickup
Construction housing performance with evaluation / Design house performance with evaluation / Pre-ground survey / 2 along the line more accessible / System kitchen / Bathroom Dryer / Yang per good / Or more before road 6m / Shaping land / Washbasin with shower / Face-to-face kitchen / Barrier-free / Toilet 2 places / Bathroom 1 tsubo or more / 2 or more sides balcony / Double-glazing / Warm water washing toilet seat / The window in the bathroom / TV monitor interphone / Urban neighborhood / Water filter / Three-story or more / City gas / Flat terrain
Price
31,800,000 yen
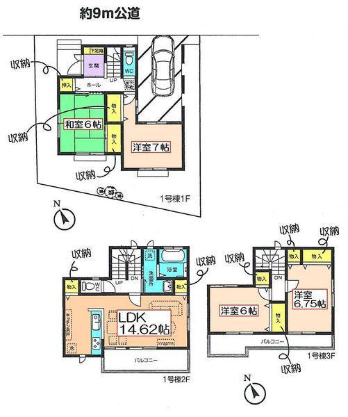
Floor plan
4LDK
Units sold
1 units
Land area
76.17 sq m (registration)
Building area
116.54 sq m (measured)
Driveway burden-road
Nothing, North 9m width
Completion date
January 2014
Address
Kawaguchi City Prefecture Motogo 5-3-12
Traffic
Saitama high-speed rail, "Kawaguchi Motogo" walk 10 minutes
JR Keihin Tohoku Line "Kawaguchi" walk 24 minutes
Tokyo Metro Nanboku Line "Akabaneiwabuchi" walk 37 minutes
Related links
[Related Sites of this company]
Person in charge
Rep Watanabe Hiroshi Age: 50 Daigyokai experience: This is Watanabe of 20 years store manager. We look forward to experienced veteran staff.
Contact
TEL: 0800-603-1338 [Toll free] mobile phone ・ Also available from PHS
Caller ID is not notified
Please contact the "saw SUUMO (Sumo)"
If it does not lead, If the real estate company
Building coverage, floor area ratio
80% ・ 200%
Time residents
Three months after the contract
Land of the right form
Ownership
Structure and method of construction
Wooden three-story (2 × 4 construction method)
Use district
Residential
Overview and notices
Contact: Watanabe Hiroshi, Facilities: Public Water Supply, This sewage, City gas, Building confirmation number: No. 13UDI1C Ken 01313
Company profile
<Mediation> Saitama Governor (10) Article 008812 No. Century 21 Ltd. Nikken Ju販 Yubinbango335-0034 Toda City Prefecture Sasame 1-15-10


Floor plan

Floor plan. 31,800,000 yen, 4LDK, Land area 76.17 sq m , Building area 116.54 sq m
31,800,000 yen, 4LDK, Land area 76.17 sq m , Building area 116.54 sq m

Local appearance photo

Local appearance photo. Local (12 May 2013) Shooting
Local (12 May 2013) Shooting

Local photos, including front road

Local photos, including front road. Local (12 May 2013) Shooting
Local (12 May 2013) Shooting

Local photos, including front road. Local (12 May 2013) Shooting
Local (12 May 2013) Shooting

Supermarket

Supermarket. Maruetsu until Motogo shop 639m
Maruetsu until Motogo shop 639m

Primary school

Primary school. 499m until Kawaguchi Municipal Motogo Elementary School
499m until Kawaguchi Municipal Motogo Elementary School

Kindergarten ・ Nursery

kindergarten ・ Nursery. Akebono to nursery school 410m
Akebono to nursery school 410m

Supermarket

Supermarket. 901m to Summit Kawaguchi Elsa Tower store
901m to Summit Kawaguchi Elsa Tower store



Location