New Homes » Kanto » Saitama » Kawaguchi city


Kawaguchi City Prefecture
JR Musashino Line "Higashikawaguchi" walk 28 minutes
South road ・ In Zenshitsuminami orientation, Balcony is 7 Pledge of large! Housing wealth also with loft! Consult your Relocation is, Please feel free to contact us to Porras Group Headquarters Sales Section
Features pickup
Measures to conserve energy / Immediate Available / Bathroom Dryer / Siemens south road / LDK15 tatami mats or more / Or more before road 6m / Washbasin with shower / Face-to-face kitchen / Toilet 2 places / 2-story / 2 or more sides balcony / South balcony / Zenshitsuminami direction / The window in the bathroom / TV monitor interphone / Walk-in closet / Water filter / City gas
Price
31,800,000 yen
Floor plan
4LDK
Units sold
1 units
Total units
1 units
Land area
101.22 sq m (30.61 tsubo) (Registration)
Building area
103.5 sq m (31.30 tsubo) (Registration)
Driveway burden-road
Nothing, South 6.1m width
Completion date
October 2013
Address
Kawaguchi City Prefecture Kitaharadai 3
Traffic
JR Musashino Line "Higashikawaguchi" walk 28 minutes
Related links
[Related Sites of this company]
Person in charge
Person in charge of real-estate and building oxalis I in Koshigaya Akira is local, Purchase ・ Anything please consult sale. We respond wholeheartedly to your consultation. Please contact us. We look forward to.
Contact
TEL: 0800-603-0709 [Toll free] mobile phone ・ Also available from PHS
Caller ID is not notified
Please contact the "saw SUUMO (Sumo)"
If it does not lead, If the real estate company
Building coverage, floor area ratio
60% ・ 200%
Time residents
Immediate available
Land of the right form
Ownership
Structure and method of construction
Wooden 2-story
Use district
Two mid-high
Other limitations
Regulations have by the Landscape Act, Mid-to-high-rise floor exclusive residential district
Overview and notices
Contact: oxalis Akira, Facilities: Public Water Supply, City gas, Parking: car space
Company profile
<Mediation> Minister of Land, Infrastructure and Transport (11) No. 002401 (Corporation) Prefecture Building Lots and Buildings Transaction Business Association (Corporation) metropolitan area real estate Fair Trade Council member (Ltd.) a central residential real estate Solutions Division Division Sales Section Yubinbango343-0845 Saitama Prefecture Koshigaya Minami Koshigaya 1-21-2


Local appearance photo
Local appearance photo

Local photos, including front road
Local photos, including front road

Living
Living

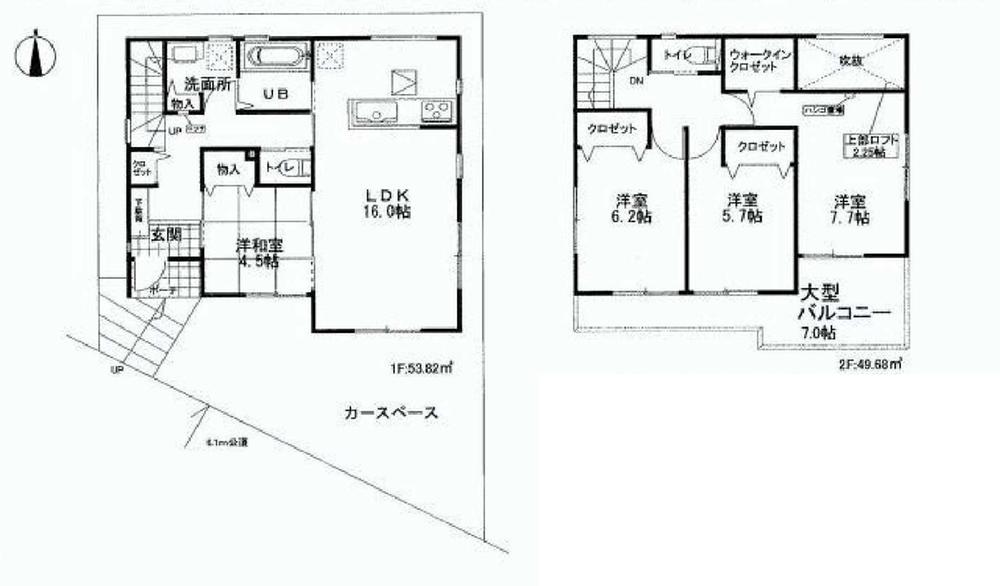
Floor plan

Floor plan. 31,800,000 yen, 4LDK, Land area 101.22 sq m , Building area 103.5 sq m
31,800,000 yen, 4LDK, Land area 101.22 sq m , Building area 103.5 sq m

Bathroom
Bathroom

Kitchen
Kitchen

Non-living room
Non-living room

Entrance
Entrance

Wash basin, toilet
Wash basin, toilet

Toilet
Toilet

Parking lot
Parking lot

Balcony
Balcony

Supermarket

Supermarket. Maruya until Sashima shop 1100m
Maruya until Sashima shop 1100m

Other introspection
Other introspection

Junior high school

Junior high school. 2530m until Kawaguchi Tatsugami root junior high school
2530m until Kawaguchi Tatsugami root junior high school

Other introspection
Other introspection

Primary school

Primary school. 640m until Kawaguchi Municipal actively Elementary School
640m until Kawaguchi Municipal actively Elementary School

Park

park. 380m until Kitaharadai park
380m until Kitaharadai park



Location