New Homes » Kanto » Saitama » Kawaguchi city
 
| | Kawaguchi City Prefecture 埼玉県川口市 |
| Saitama high-speed rail, "Kawaguchi Motogo" walk 14 minutes 埼玉高速鉄道「川口元郷」歩14分 |
| 2 wayside Available, Southeast, Leafy residential area, Ventilation good, Corner lot, Three-story, City Chikashi, System kitchen, Yang per good, A quiet residential areaese-style room, Toilet 2 places, Bathroom 1 tsubo or more, Two-sided balcony 2沿線利用可、南東向き、緑豊かな住宅地、通風良好、角地、3階建、市街地近し、システムキッチン、陽当り良好、閑静な住宅地、和室、トイレ2ヶ所、浴室1坪以上、2面バルコニー |
| Internet special price 35,800,000 yen What but 34,800,000 yen! ! New construction 4LDKP Nice three-story Corner lot! ! Live in a living environment good Kawaguchi city! ! ! Tokyo Chikashi! ! インターネット特別価格 3580万円 がなんと 3480万円!!新築4LDKP 素敵な3階建 角地!!住環境良好なKawaguchi cityに住む!!!都内近し!! |
Features pickup 特徴ピックアップ | | 2 along the line more accessible / Super close / It is close to the city / System kitchen / Bathroom Dryer / Yang per good / A quiet residential area / Corner lot / Japanese-style room / Washbasin with shower / Face-to-face kitchen / Barrier-free / Toilet 2 places / Bathroom 1 tsubo or more / 2 or more sides balcony / Southeast direction / Warm water washing toilet seat / Nantei / The window in the bathroom / TV monitor interphone / Leafy residential area / Ventilation good / Built garage / Dish washing dryer / Three-story or more / City gas / Flat terrain 2沿線以上利用可 /スーパーが近い /市街地が近い /システムキッチン /浴室乾燥機 /陽当り良好 /閑静な住宅地 /角地 /和室 /シャワー付洗面台 /対面式キッチン /バリアフリー /トイレ2ヶ所 /浴室1坪以上 /2面以上バルコニー /東南向き /温水洗浄便座 /南庭 /浴室に窓 /TVモニタ付インターホン /緑豊かな住宅地 /通風良好 /ビルトガレージ /食器洗乾燥機 /3階建以上 /都市ガス /平坦地 | Event information イベント情報 | | (Please visitors to direct local) time / 10:00 ~ Do keep in uniform, please visit your family in the 17:00 time! ! (直接現地へご来場ください)時間/10:00 ~ 17:00いつでご見学くださいご家族揃っておいで下さい!! | Price 価格 | | 34,800,000 yen 3480万円 | Floor plan 間取り | | 4LDK 4LDK | Units sold 販売戸数 | | 1 units 1戸 | Total units 総戸数 | | 1 units 1戸 | Land area 土地面積 | | 66.43 sq m 66.43m2 | Building area 建物面積 | | 109.74 sq m , Among the first floor garage 11.34 sq m 109.74m2、うち1階車庫11.34m2 | Driveway burden-road 私道負担・道路 | | Nothing, Southeast 4m width, Northeast 5.9m width 無、南東4m幅、北東5.9m幅 | Completion date 完成時期(築年月) | | March 2014 2014年3月 | Address 住所 | | Kawaguchi City Prefecture Suehiro 2 埼玉県川口市末広2 | Traffic 交通 | | Saitama high-speed rail, "Kawaguchi Motogo" walk 14 minutes JR Keihin Tohoku Line "Kawaguchi" 12 minutes Asahi 1-chome, walk 3 minutes by bus 埼玉高速鉄道「川口元郷」歩14分 JR京浜東北線「川口」バス12分朝日1丁目歩3分
| Person in charge 担当者より | | [Regarding this property.] I will help my home your dream. Yes funding plan, Yes loan plan, Please consult! ! ! 【この物件について】夢のマイホーム御手伝いいたします。資金プランあり、ローンプランあり、ご相談ください!!! | Contact お問い合せ先 | | Excel Home (Ltd.) TEL: 0120-562363 [Toll free] Please contact the "saw SUUMO (Sumo)" エクセルホーム(株)TEL:0120-562363【通話料無料】「SUUMO(スーモ)を見た」と問い合わせください | Building coverage, floor area ratio 建ぺい率・容積率 | | 60% ・ 200% 60%・200% | Time residents 入居時期 | | March 2014 schedule 2014年3月予定 | Land of the right form 土地の権利形態 | | Ownership 所有権 | Structure and method of construction 構造・工法 | | Wooden three-story (2 × 4 construction method) 木造3階建(2×4工法) | Construction 施工 | | (Ltd.) Excel Home (株)エクセルホーム | Use district 用途地域 | | Two dwellings 2種住居 | Overview and notices その他概要・特記事項 | | Facilities: Public Water Supply, This sewage, City gas, Building confirmation number: SJK-KX1311061059 No., Parking: Garage 設備:公営水道、本下水、都市ガス、建築確認番号:SJK-KX1311061059号、駐車場:車庫 | Company profile 会社概要 | | <Seller> Minister of Land, Infrastructure and Transport (2) No. 007324 (Corporation) Prefecture Building Lots and Buildings Transaction Business Association (Corporation) metropolitan area real estate Fair Trade Council member Excel Home Co., Ltd. Yubinbango332-0021 Kawaguchi City Prefecture Nishikawaguchi 1-28-1 <売主>国土交通大臣(2)第007324号(公社)埼玉県宅地建物取引業協会会員 (公社)首都圏不動産公正取引協議会加盟エクセルホーム(株)〒332-0021 埼玉県川口市西川口1-28-1 |
Rendering (appearance)完成予想図(外観)  Southeast Image Rendering
南東イメージ 完成予想図
 Rendering
完成予想図
Other localその他現地  Local (11 May 2013) Shooting
現地(2013年11月)撮影
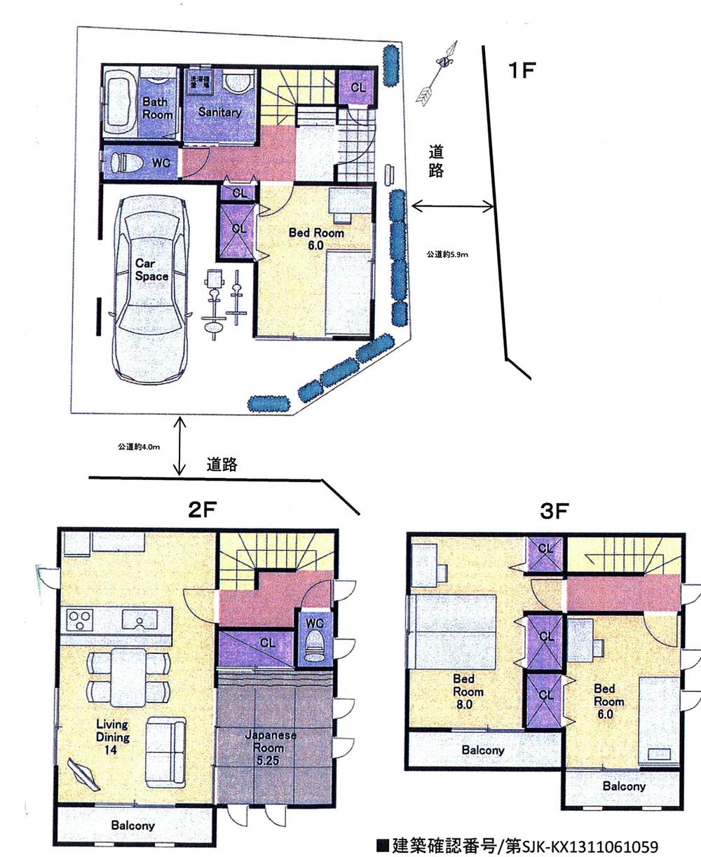
Floor plan間取り図  34,800,000 yen, 4LDK, Land area 66.43 sq m , Building area 109.74 sq m
3480万円、4LDK、土地面積66.43m2、建物面積109.74m2
Compartment figure区画図  34,800,000 yen, 4LDK, Land area 66.43 sq m , Building area 109.74 sq m Saitama high-speed rail Kawaguchi-Motogō Station
3480万円、4LDK、土地面積66.43m2、建物面積109.74m2 埼玉高速鉄道 川口元郷駅
 Other local
その他現地
Other Environmental Photoその他環境写真  Ten Futada elementary school
十二田小学校
 Twelve Tanaka school
十二田中学校
 Seven-Eleven
セブンイレブン
 OK Super
OKスーパー
Bank銀行  Kawaguchishin'yokinko
川口信用金庫
Location
|