New Homes » Kanto » Saitama » Kita-Adachi District
 
| | Saitama Prefecture Kita-Adachi District Ina-machi 埼玉県北足立郡伊奈町 |
| Saitama new urban transportation Inasen "Inachuo" walk 5 minutes 埼玉新都市交通伊奈線「伊奈中央」歩5分 |
| 12 / 2 has been price changes! We will deliver the latest information. Only to customers who call or document request, Get the Kuokado of 10,000 yen for those of every month 10 pairs 12/2価格変更しました!最新情報をお届けします。お電話または資料請求頂いたお客様に限り、毎月10組の方に10,000円のクオカードをプレゼント |
| ・ Walk-in closet that can clothes be neat storage of seasonal ・ Convenient parking two Allowed to second car ・ Face-to-face kitchen is already directing ground survey the warm time of your family, Vibration Control ・ Seismic isolation ・ Earthquake resistant, Facing south, System kitchen, All room storage, LDK15 tatami mats or moreese-style room, Shaping land, Barrier-free, Toilet 2 places, 2-story, South balcony, Double-glazing, Otobasu, Underfloor Storage, The window in the bathroom, All rooms are two-sided lighting, Attic storage ・季節物の衣類もスッキリ収納できるウォークインクロゼット・セカンドカーにも便利な駐車2台可・対面キッチンがご家族の温かい時間を演出地盤調査済、制震・免震・耐震、南向き、システムキッチン、全居室収納、LDK15畳以上、和室、整形地、バリアフリー、トイレ2ヶ所、2階建、南面バルコニー、複層ガラス、オートバス、床下収納、浴室に窓、全室2面採光、屋根裏収納 |
Features pickup 特徴ピックアップ | | Pre-ground survey / Vibration Control ・ Seismic isolation ・ Earthquake resistant / Parking two Allowed / Facing south / System kitchen / All room storage / LDK15 tatami mats or more / Japanese-style room / Shaping land / Face-to-face kitchen / Barrier-free / Toilet 2 places / 2-story / South balcony / Double-glazing / Otobasu / Underfloor Storage / The window in the bathroom / Walk-in closet / All rooms are two-sided lighting / Attic storage 地盤調査済 /制震・免震・耐震 /駐車2台可 /南向き /システムキッチン /全居室収納 /LDK15畳以上 /和室 /整形地 /対面式キッチン /バリアフリー /トイレ2ヶ所 /2階建 /南面バルコニー /複層ガラス /オートバス /床下収納 /浴室に窓 /ウォークインクロゼット /全室2面採光 /屋根裏収納 | Price 価格 | | 22,800,000 yen ・ 27,800,000 yen 2280万円・2780万円 | Floor plan 間取り | | 4LDK 4LDK | Units sold 販売戸数 | | 2 units 2戸 | Land area 土地面積 | | 120 sq m ・ 122 sq m (36.29 tsubo ・ 36.90 tsubo) (Registration) 120m2・122m2(36.29坪・36.90坪)(登記) | Building area 建物面積 | | 95.63 sq m ・ 97.5 sq m (28.92 tsubo ・ 29.49 tsubo) (Registration) 95.63m2・97.5m2(28.92坪・29.49坪)(登記) | Driveway burden-road 私道負担・道路 | | Road width: 6m, 12m, Alley-like area: C Building 37.28 sq m 道路幅:6m、12m、路地状面積:C号棟37.28m2 | Completion date 完成時期(築年月) | | November 2013 2013年11月 | Address 住所 | | Oaza Komuro Prefecture, Kita-Adachi District Ina-machi 埼玉県北足立郡伊奈町大字小室 | Traffic 交通 | | Saitama new urban transportation Inasen "Inachuo" walk 5 minutes Saitama new urban transportation Inasen "Sik" walk 14 minutes Saitama new urban transportation Inasen "Hanuki" walk 20 minutes 埼玉新都市交通伊奈線「伊奈中央」歩5分 埼玉新都市交通伊奈線「志久」歩14分 埼玉新都市交通伊奈線「羽貫」歩20分
| Related links 関連リンク | | [Related Sites of this company] 【この会社の関連サイト】 | Person in charge 担当者より | | Rep Hagiwara Kunihiko Age: 40 Daigyokai Experience: 13 years customers will be opinions widely suggestions are not on who to ask. Please tell us please feel free to. 担当者萩原 邦彦年齢:40代業界経験:13年お客様のご意見をお聞きした上で幅広くご提案させていただきます。どうぞお気軽にお申し付け下さい。 | Contact お問い合せ先 | | TEL: 0800-603-8258 [Toll free] mobile phone ・ Also available from PHS Caller ID is not notified Please contact the "saw SUUMO (Sumo)" If it does not lead, If the real estate company TEL:0800-603-8258【通話料無料】携帯電話・PHSからもご利用いただけます 発信者番号は通知されません 「SUUMO(スーモ)を見た」と問い合わせください つながらない方、不動産会社の方は
| Building coverage, floor area ratio 建ぺい率・容積率 | | Kenpei rate: 50%, Volume ratio: 80% 建ペい率:50%、容積率:80% | Time residents 入居時期 | | Consultation 相談 | Land of the right form 土地の権利形態 | | Ownership 所有権 | Structure and method of construction 構造・工法 | | Wooden 2-story 木造2階建 | Use district 用途地域 | | One low-rise 1種低層 | Other limitations その他制限事項 | | On the day you can visit. 当日見学可能です。 | Overview and notices その他概要・特記事項 | | Contact: Hagiwara Kunihiko, Building confirmation number: No. SJK-KX1311031150 ・ The SJK-KX1311031151 No. ・ The SJK-KX1311031749 No. 担当者:萩原 邦彦、建築確認番号:第SJK-KX1311031150号・第SJK-KX1311031151号・第SJK-KX1311031749号 | Company profile 会社概要 | | <Mediation> Saitama Governor (2) the first 021,116 No. Century 21 (Ltd.) House Navi Yubinbango333-0866 Kawaguchi City Prefecture, Oaza turf 4438-1 <仲介>埼玉県知事(2)第021116号センチュリー21(株)ハウスナビ〒333-0866 埼玉県川口市大字芝4438-1 |
Otherその他  This property is possible guidance on the day. 9 o'clock ~ If you can contact us at 23 o'clock, Please contact "0800-603-8258" so you can visit. It is also possible to ask to pick up your designated station. Also of interest you after work!
こちらの物件は当日ご案内が可能です。9時 ~ 23時までご連絡いただければ、見学できますのでお気軽に『0800-603-8258』までお問い合わせください。ご指定の駅までお迎えに伺うことも可能です。お仕事帰りにもどうぞ!
Local appearance photo現地外観写真  Warmth space full of local feel the blessing of the sun (11 May 2013) Shooting C Building
太陽の恵みを感じる温もりあふれる空間現地(2013年11月)撮影 C号棟
Livingリビング  Conversation of your family is lively, Open-minded LDK Indoor (11 May 2013) Shooting C Building
ご家族の会話がはずむ、開放的なLDK 室内(2013年11月)撮影 C号棟
Kitchenキッチン  Face-to-face kitchen where you can enjoy a conversation with your family, even while cooking Indoor (11 May 2013) Shooting C Building
料理をしながらでもご家族との会話を楽しめる対面キッチン 室内(2013年11月)撮影 C号棟
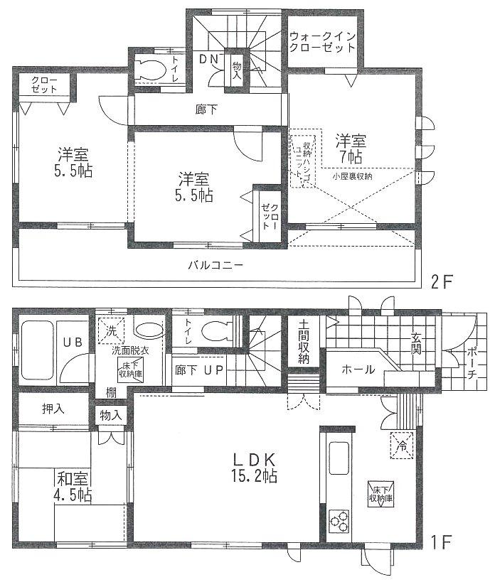
Floor plan間取り図  (C Building), Price 22,800,000 yen, 4LDK, Land area 122 sq m , Building area 97.5 sq m
(C号棟)、価格2280万円、4LDK、土地面積122m2、建物面積97.5m2
Livingリビング  Indoor (11 May 2013) Shooting C Building
室内(2013年11月)撮影 C号棟
Bathroom浴室  Indoor (11 May 2013) Shooting C Building
室内(2013年11月)撮影 C号棟
Non-living roomリビング以外の居室  Indoor (11 May 2013) Shooting C Building
室内(2013年11月)撮影 C号棟
Local photos, including front road前面道路含む現地写真  Local (11 May 2013) Shooting
現地(2013年11月)撮影
Hospital病院  806m until the medical corporation mind Association Ina hospital
医療法人一心会伊奈病院まで806m
The entire compartment Figure全体区画図  Compartment figure
区画図
Otherその他  New shuttle "Inachuo" station
ニューシャトル「伊奈中央」駅
Floor plan間取り図  (A Building), Price 27,800,000 yen, 4LDK, Land area 120 sq m , Building area 95.63 sq m
(A号棟)、価格2780万円、4LDK、土地面積120m2、建物面積95.63m2
Non-living roomリビング以外の居室  Indoor (11 May 2013) Shooting C Building
室内(2013年11月)撮影 C号棟
Park公園  2503m to Hiratsuka park
平塚公園まで2503m
Otherその他  Compartment figure
区画図
Presentプレゼント  Only to customers who call or document request, Get the Kuokado of 10,000 yen for those of every month 10 pairs ☆ Double chance! "I will present the Kuokado of 2,000 yen to all customers who fill out to visit us We questionnaire with your family" (I will consider it as a one-time set-like)
お電話または資料請求頂いたお客様に限り、毎月10組の方に10,000円のクオカードをプレゼント☆ダブルチャンス!「ご家族でご来店頂きアンケートにご記入頂いたお客様全員に2,000円のクオカードをプレゼント致します」(1組様1回限りとさせて頂きます)
Location
|