New Homes » Kanto » Saitama » Minami-ku
 
| | Saitama Minami-ku 埼玉県さいたま市南区 |
| JR Keihin Tohoku Line "Minami Urawa" walk 12 minutes JR京浜東北線「南浦和」歩12分 |
| this week, soil ・ Day [Local selling ・ It will be held a consultation meeting] The strength of the local sales company! ! (Car navigation input: Minami-ku, Buzo 34-3) school / Buzo elementary school ・ Minami Urawa junior high school 今週、土・日 【現地販売・相談会を開催致します】 現地販売会社の強み!!(カーナビ入力:南区文蔵34-3)学校/文蔵小学校・南浦和中学校 |
| Construction housing performance with evaluation, Measures to conserve energy, Corresponding to the flat-35S, Pre-ground survey, LDK20 tatami mats or more, LDK18 tatami mats or more, Super close, It is close to the city, Facing south, System kitchen, Bathroom Dryer, Yang per good, All room storage, Flat to the station, Siemens south road, A quiet residential area, LDK15 tatami mats or more, Around traffic fewer, Corner lotese-style room, Shaping land, Washbasin with shower, Face-to-face kitchen, Security enhancement, Wide balcony, Barrier-free, Toilet 2 places, Bathroom 1 tsubo or more, 2-story, 2 or more sides balcony, Southeast direction, South balcony, Double-glazing, Otobasu, Warm water washing toilet seat, loft, Underfloor Storage, The window in the bathroom, TV monitor interphone, Mu front building, Ventilation good, Walk-in closet, Kiyoshi 建設住宅性能評価付、省エネルギー対策、フラット35Sに対応、地盤調査済、LDK20畳以上、LDK18畳以上、スーパーが近い、市街地が近い、南向き、システムキッチン、浴室乾燥機、陽当り良好、全居室収納、駅まで平坦、南側道路面す、閑静な住宅地、LDK15畳以上、周辺交通量少なめ、角地、和室、整形地、シャワー付洗面台、対面式キッチン、セキュリティ充実、ワイドバルコニー、バリアフリー、トイレ2ヶ所、浴室1坪以上、2階建、2面以上バルコニー、東南向き、南面バルコニー、複層ガラス、オートバス、温水洗浄便座、ロフト、床下収納、浴室に窓、TVモニタ付インターホン、前面棟無、通風良好、ウォークインクロゼット、浄 |
Features pickup 特徴ピックアップ | | Construction housing performance with evaluation / Measures to conserve energy / Corresponding to the flat-35S / Pre-ground survey / LDK20 tatami mats or more / Super close / It is close to the city / Facing south / System kitchen / Bathroom Dryer / Yang per good / All room storage / Flat to the station / Siemens south road / A quiet residential area / Around traffic fewer / Corner lot / Japanese-style room / Shaping land / Washbasin with shower / Face-to-face kitchen / Security enhancement / Wide balcony / Barrier-free / Toilet 2 places / Bathroom 1 tsubo or more / 2-story / 2 or more sides balcony / South balcony / Double-glazing / Otobasu / Warm water washing toilet seat / loft / Underfloor Storage / The window in the bathroom / TV monitor interphone / Mu front building / Ventilation good / Walk-in closet / Water filter / Three-story or more / Living stairs / City gas / Flat terrain 建設住宅性能評価付 /省エネルギー対策 /フラット35Sに対応 /地盤調査済 /LDK20畳以上 /スーパーが近い /市街地が近い /南向き /システムキッチン /浴室乾燥機 /陽当り良好 /全居室収納 /駅まで平坦 /南側道路面す /閑静な住宅地 /周辺交通量少なめ /角地 /和室 /整形地 /シャワー付洗面台 /対面式キッチン /セキュリティ充実 /ワイドバルコニー /バリアフリー /トイレ2ヶ所 /浴室1坪以上 /2階建 /2面以上バルコニー /南面バルコニー /複層ガラス /オートバス /温水洗浄便座 /ロフト /床下収納 /浴室に窓 /TVモニタ付インターホン /前面棟無 /通風良好 /ウォークインクロゼット /浄水器 /3階建以上 /リビング階段 /都市ガス /平坦地 | Event information イベント情報 | | Local sales meetings (please visitors to direct local) schedule / Every Saturday, Sunday and public holidays time / 10:00 ~ 16:30 this week, soil ・ Day [Local selling ・ It will be held a consultation meeting] The strength of the local sales company! ! (Car navigation input: Minami-ku, Buzo 34-3) shopping ・ Strolling Temple, Please come with your family. Because of the local sales company, Available upon consultation of the price. 現地販売会(直接現地へご来場ください)日程/毎週土日祝時間/10:00 ~ 16:30今週、土・日 【現地販売・相談会を開催致します】 現地販売会社の強み!!(カーナビ入力:南区文蔵34-3)お買い物・お散歩がてら、ご家族でお越しください。現地販売会社のため、お値段のご相談承ります。 | Price 価格 | | 38,800,000 yen ~ 45,800,000 yen consultation of price, Upon you! 3880万円 ~ 4580万円お値段の相談、承ります! | Floor plan 間取り | | 3LDK ~ 4LDK 3LDK ~ 4LDK | Units sold 販売戸数 | | 5 units 5戸 | Total units 総戸数 | | 5 units 5戸 | Land area 土地面積 | | 66.1 sq m ~ 80.5 sq m (19.99 tsubo ~ 24.35 tsubo) (Registration) 66.1m2 ~ 80.5m2(19.99坪 ~ 24.35坪)(登記) | Building area 建物面積 | | 92.93 sq m ~ 123.92 sq m (28.11 tsubo ~ 37.48 tsubo) (Registration) 92.93m2 ~ 123.92m2(28.11坪 ~ 37.48坪)(登記) | Completion date 完成時期(築年月) | | March 2014 in late schedule 2014年3月下旬予定 | Address 住所 | | Saitama Minami-ku Buzo 3-34-3 埼玉県さいたま市南区文蔵3-34-3 | Traffic 交通 | | JR Keihin Tohoku Line "Minami Urawa" walk 12 minutes JR Saikyo Line "Toda north" walk 27 minutes JR京浜東北線「南浦和」歩12分 JR埼京線「北戸田」歩27分
| Related links 関連リンク | | [Related Sites of this company] 【この会社の関連サイト】 | Contact お問い合せ先 | | (Ltd.) Portland TEL: 0800-603-5099 [Toll free] mobile phone ・ Also available from PHS Caller ID is not notified Please contact the "saw SUUMO (Sumo)" If it does not lead, If the real estate company (株)ポートランドTEL:0800-603-5099【通話料無料】携帯電話・PHSからもご利用いただけます 発信者番号は通知されません 「SUUMO(スーモ)を見た」と問い合わせください つながらない方、不動産会社の方は
| Building coverage, floor area ratio 建ぺい率・容積率 | | Kenpei rate: 60%, Volume ratio: 200% (urban areas) 建ペい率:60%、容積率:200%(市街化区域) | Time residents 入居時期 | | Mid-April, 2016 2016年4月中旬予定 | Land of the right form 土地の権利形態 | | Ownership 所有権 | Structure and method of construction 構造・工法 | | Wooden 2-story (framing method), Wooden three-story (framing method) 木造2階建(軸組工法)、木造3階建(軸組工法) | Use district 用途地域 | | One dwelling 1種住居 | Other limitations その他制限事項 | | Shade limit Yes, Corner-cutting Yes 日影制限有、隅切り有 | Overview and notices その他概要・特記事項 | | Building confirmation number: 13UDI2S Ken No. 02453 ~ 02456 No. 建築確認番号:13UDI2S建02453号 ~ 02456号 | Company profile 会社概要 | | <Marketing alliance (mediated)> Governor of Tokyo (2) No. 083307 (Ltd.) Portland Yubinbango151-0053, Shibuya-ku, Tokyo Yoyogi 2-23-1-1007 <販売提携(媒介)>東京都知事(2)第083307号(株)ポートランド〒151-0053 東京都渋谷区代々木2-23-1-1007 |
Local photos, including front road前面道路含む現地写真  4LDK + P (There are two units of building) Living 20 quires more! !
4LDK+P(2台の棟有り)リビング20帖以上!!
 South road: 4M (Public road) East road: 7.3M (public road)
南道路:4M (公道) 東道路:7.3M(公道)
 Buzo elementary school / Minami Urawa junior high school
文蔵小学校/南浦和中学校
Same specifications photos (living)同仕様写真(リビング)  Same specifications
同仕様
Same specifications photo (kitchen)同仕様写真(キッチン)  Same specifications
同仕様
Same specifications photos (Other introspection)同仕様写真(その他内観)  Same specifications
同仕様
 Same specifications
同仕様
Same specifications photo (bathroom)同仕様写真(浴室)  Same specifications
同仕様
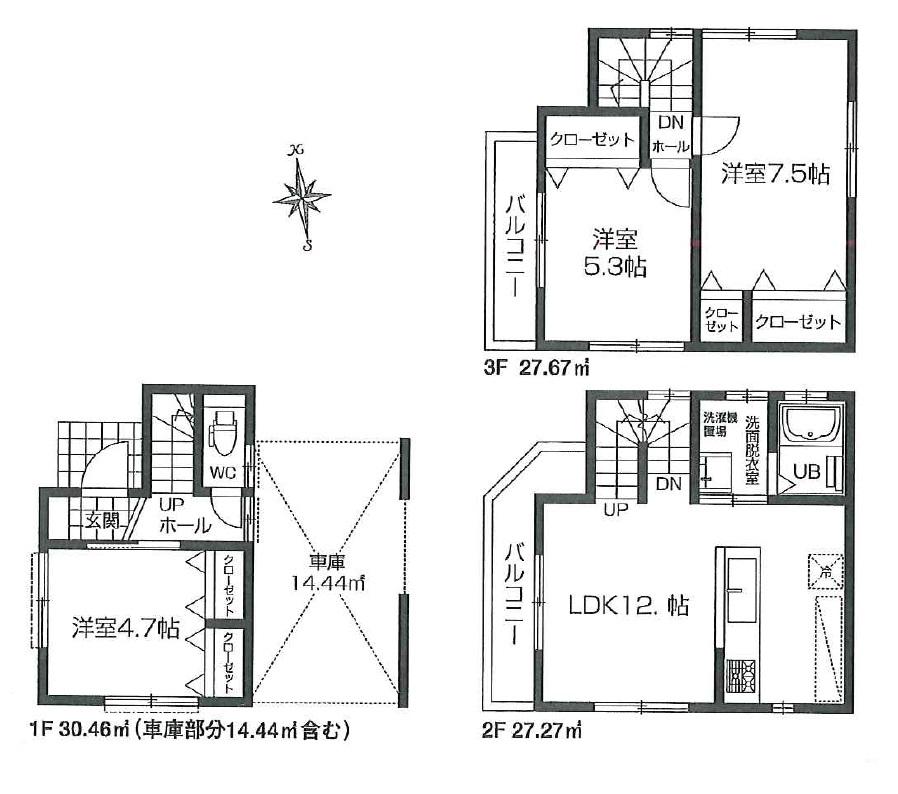
Floor plan間取り図  (1 Building), Price 38,800,000 yen, 3LDK, Land area 76.83 sq m , Building area 92.93 sq m
(1号棟)、価格3880万円、3LDK、土地面積76.83m2、建物面積92.93m2
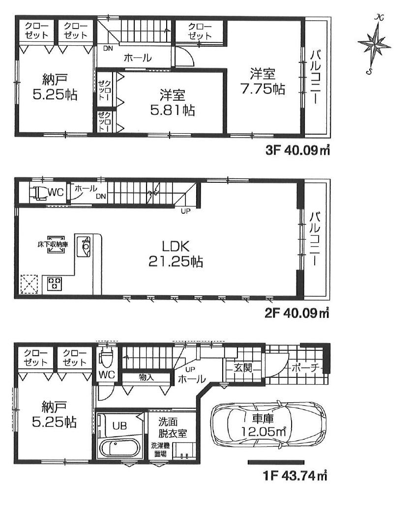
 (Building 2), Price 41,800,000 yen, 4LDK, Land area 68.19 sq m , Building area 123.92 sq m
(2号棟)、価格4180万円、4LDK、土地面積68.19m2、建物面積123.92m2
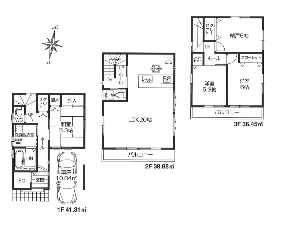
 (3 Building), Price 42,800,000 yen, 4LDK, Land area 66.1 sq m , Building area 116.64 sq m
(3号棟)、価格4280万円、4LDK、土地面積66.1m2、建物面積116.64m2
 (4 Building), Price 42,800,000 yen, 4LDK, Land area 66.1 sq m , Building area 116.64 sq m
(4号棟)、価格4280万円、4LDK、土地面積66.1m2、建物面積116.64m2
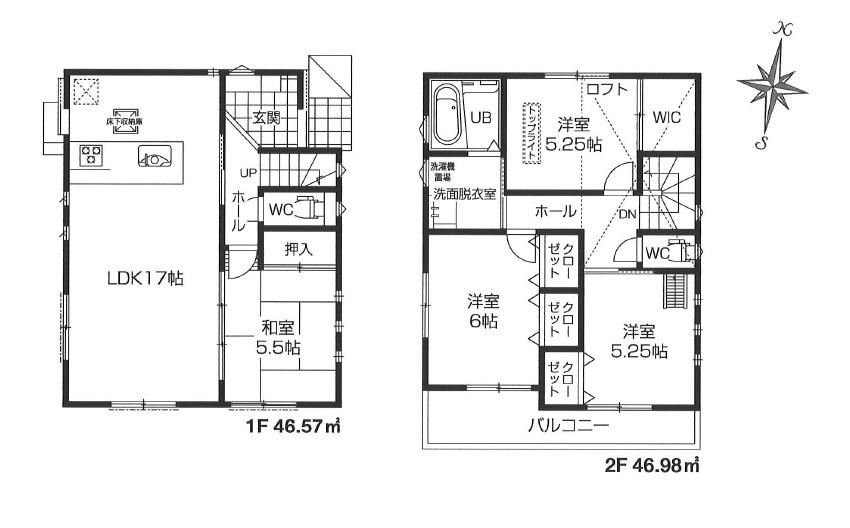
 (5 Building), Price 45,800,000 yen, 4LDK, Land area 80.5 sq m , Building area 93.55 sq m
(5号棟)、価格4580万円、4LDK、土地面積80.5m2、建物面積93.55m2
Rendering (appearance)完成予想図(外観)  (1 Building) Rendering
(1号棟)完成予想図
 (Building 2) Rendering
(2号棟)完成予想図
 (3 Building) Rendering
(3号棟)完成予想図
 (4 Building) Rendering
(4号棟)完成予想図
 (5 Building) is in Rendering preparation.
(5号棟)完成予想図準備中です。
The entire compartment Figure全体区画図  5 Building only two-storey
5号棟のみ2階建て
Park公園  453m until Rokutsuji waterfront park
六辻水辺公園まで453m
Primary school小学校  567m until the Saitama Municipal Buzo Elementary School
さいたま市立文蔵小学校まで567m
Kitchenキッチン  Also mise en place of the tool, Of cooking utensils also quickly access a push open. Plenty from Maeru to suspend the tool to use everyday, You can out in a comfortable position. Strong gas stove also used to easily scratches repels dirt
下ごしらえの道具も、加熱調理の道具もプッシュオープンでさっとアクセス。普段使う道具を中断にたっぷりしまえるから、ラクな姿勢で出し入れできます。汚れをはじきやすくキズにも強いガスコンロ採用
Bathroom浴室  Is a bathtub that was aligned also serves as a breadth that can comfortably bathe the bench where you can enjoy a sitz bath.
半身浴を楽しめるベンチとゆったり入浴できる広さを兼ね揃えた浴槽です。
Security equipment防犯設備  The key is replication is difficult dimple key. Thumb turn with peace of mind features that detached at the touch of a button.
鍵は複製が困難なディンプルキー。ワンタッチで取り外せる安心機能付サムターン。
Construction ・ Construction method ・ specification構造・工法・仕様  Shaking of earthquake, It has a good strength of the balance to withstand the pressure of the typhoon.
地震の揺れ、台風の圧力にも耐えるバランスのよい強度を備えています。
Otherその他  Ground guaranteed by a third party mechanism (10 years)
第三者機構による地盤保証(10年)
 Ground guaranteed by a third party mechanism (10 years)
第三者機構による地盤保証(10年)
Location
|