New Homes » Kanto » Saitama » Minuma Ku
 
| | Saitama Minuma Ku 埼玉県さいたま市見沼区 |
| JR Utsunomiya Line "Higashiomiya" walk 21 minutes JR宇都宮線「東大宮」歩21分 |
| Produce a warm time face-to-face kitchen of your family! Only to customers who call or document request, Get the Kuokado of 10,000 yen for those of every month 10 pairs 対面キッチンがご家族の温かい時間を演出!お電話または資料請求頂いたお客様に限り、毎月10組の方に10,000円のクオカードをプレゼント |
| ・ Consideration to security aspects in the TV monitor interphone ・ Spacious living space with all the living room storage space ・ LDK ground survey the already increasing number of likely relaxation time of family reunion, Vibration Control ・ Seismic isolation ・ Earthquake resistant, Parking two Allowed, System kitchen, LDK15 tatami mats or more, A quiet residential areaese-style room, Shaping land, Face-to-face kitchen, Barrier-free, Toilet 2 places, 2-story, Southeast direction, Double-glazing, Otobasu, Warm water washing toilet seat, Underfloor Storage, The window in the bathroom, Walk-in closet, All room 6 tatami mats or more, All rooms are two-sided lighting, Maintained sidewalk, All rooms facing southeast ・TVモニタ付インタホンでセキュリティ面にも配慮・全居室収納スペース付で広々住空間・家族団らんの時間も増えそうなくつろぎのLDK地盤調査済、制震・免震・耐震、駐車2台可、システムキッチン、LDK15畳以上、閑静な住宅地、和室、整形地、対面式キッチン、バリアフリー、トイレ2ヶ所、2階建、東南向き、複層ガラス、オートバス、温水洗浄便座、床下収納、浴室に窓、ウォークインクロゼット、全居室6畳以上、全室2面採光、整備された歩道、全室東南向き |
Features pickup 特徴ピックアップ | | Pre-ground survey / Vibration Control ・ Seismic isolation ・ Earthquake resistant / Parking two Allowed / System kitchen / All room storage / A quiet residential area / LDK15 tatami mats or more / Japanese-style room / Shaping land / Face-to-face kitchen / Barrier-free / Toilet 2 places / 2-story / Southeast direction / Double-glazing / Otobasu / Warm water washing toilet seat / Underfloor Storage / The window in the bathroom / TV monitor interphone / Walk-in closet / All room 6 tatami mats or more / All rooms are two-sided lighting / Maintained sidewalk / All rooms facing southeast 地盤調査済 /制震・免震・耐震 /駐車2台可 /システムキッチン /全居室収納 /閑静な住宅地 /LDK15畳以上 /和室 /整形地 /対面式キッチン /バリアフリー /トイレ2ヶ所 /2階建 /東南向き /複層ガラス /オートバス /温水洗浄便座 /床下収納 /浴室に窓 /TVモニタ付インターホン /ウォークインクロゼット /全居室6畳以上 /全室2面採光 /整備された歩道 /全室東南向き | Price 価格 | | 23.8 million yen ・ 26,800,000 yen 2380万円・2680万円 | Floor plan 間取り | | 4LDK 4LDK | Units sold 販売戸数 | | 2 units 2戸 | Total units 総戸数 | | 2 units 2戸 | Land area 土地面積 | | 100.08 sq m ・ 119.92 sq m (30.27 tsubo ・ 36.27 tsubo) (Registration) 100.08m2・119.92m2(30.27坪・36.27坪)(登記) | Building area 建物面積 | | 99.37 sq m (30.05 tsubo) (Registration) 99.37m2(30.05坪)(登記) | Driveway burden-road 私道負担・道路 | | Road width: 4m ~ 6m, Alley-like parts: Building 2 31% including 道路幅:4m ~ 6m、路地状部分:2号棟31%含 | Completion date 完成時期(築年月) | | Mid-January 2014 2014年1月中旬予定 | Address 住所 | | Saitama Minuma Ku Oaza Marukesaki 埼玉県さいたま市見沼区大字丸ヶ崎 | Traffic 交通 | | JR Utsunomiya Line "Higashiomiya" walk 21 minutes Tobu Noda line "Shichiri" walk 39 minutes JR宇都宮線「東大宮」歩21分 東武野田線「七里」歩39分
| Related links 関連リンク | | [Related Sites of this company] 【この会社の関連サイト】 | Person in charge 担当者より | | Rep Arai Hideki Age: hope of the 40's customers ・ With an emphasis on demand We want to go from corner to corner! We aim customer satisfaction 100%! Saitama Prefecture Born and raised in local! Who will explain to the small place than. 担当者荒井 秀樹年齢:40代お客様の御希望・要望を重視して 隅から隅までお探しします! お客様の満足度100%を目指しております!埼玉県は 生まれ育った地元です!誰よりも細かなところまでご説明いたします。 | Contact お問い合せ先 | | TEL: 0800-603-8258 [Toll free] mobile phone ・ Also available from PHS Caller ID is not notified Please contact the "saw SUUMO (Sumo)" If it does not lead, If the real estate company TEL:0800-603-8258【通話料無料】携帯電話・PHSからもご利用いただけます 発信者番号は通知されません 「SUUMO(スーモ)を見た」と問い合わせください つながらない方、不動産会社の方は
| Building coverage, floor area ratio 建ぺい率・容積率 | | Kenpei rate: 60%, Volume ratio: 200% 建ペい率:60%、容積率:200% | Time residents 入居時期 | | January 2014 2014年1月 | Land of the right form 土地の権利形態 | | Ownership 所有権 | Structure and method of construction 構造・工法 | | Wooden 2-story 木造2階建 | Use district 用途地域 | | One middle and high 1種中高 | Other limitations その他制限事項 | | On the day you can visit. 当日見学可能です。 | Overview and notices その他概要・特記事項 | | Contact: Arai Hideki, Building confirmation number: No. SJK-KX1311020873 ・ The SJK-KX1311020874 No. 担当者:荒井 秀樹、建築確認番号:第SJK-KX1311020873号・第SJK-KX1311020874号 | Company profile 会社概要 | | <Mediation> Saitama Governor (2) the first 021,116 No. Century 21 (Ltd.) House Navi Yubinbango333-0866 Kawaguchi City Prefecture, Oaza turf 4438-1 <仲介>埼玉県知事(2)第021116号センチュリー21(株)ハウスナビ〒333-0866 埼玉県川口市大字芝4438-1 |
Otherその他  This property is possible guidance on the day. 9 o'clock ~ If you can contact us at 23 o'clock, Please contact "0800-603-8258" so you can visit. It is also possible to ask to pick up your designated station. Also of interest you after work!
こちらの物件は当日ご案内が可能です。9時 ~ 23時までご連絡いただければ、見学できますのでお気軽に『0800-603-8258』までお問い合わせください。ご指定の駅までお迎えに伺うことも可能です。お仕事帰りにもどうぞ!
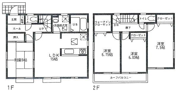
Floor plan間取り図  (1 Building), Price 26,800,000 yen, 4LDK, Land area 100.08 sq m , Building area 99.37 sq m
(1号棟)、価格2680万円、4LDK、土地面積100.08m2、建物面積99.37m2
Otherその他  Tohoku Line "Higashiomiya" station
東北本線「東大宮」駅
 Haruno junior high school
春野中学校
 Haruoka elementary school
春岡小学校
Supermarketスーパー  Bergs until Higashiomiya shop 947m
ベルクス東大宮店まで947m
The entire compartment Figure全体区画図  Compartment figure
区画図
Floor plan間取り図  (Building 2), Price 23.8 million yen, 4LDK, Land area 119.92 sq m , Building area 99.37 sq m
(2号棟)、価格2380万円、4LDK、土地面積119.92m2、建物面積99.37m2
Supermarketスーパー  Yaoko Co., Ltd. 1377m to Omiya Island cho shop
ヤオコー大宮島町店まで1377m
Kindergarten ・ Nursery幼稚園・保育園  336m until the Saitama Municipal Higashiomiya nursery
さいたま市立東大宮保育園まで336m
 Haruoka 503m to kindergarten
春岡幼稚園まで503m
Hospital病院  1474m until the medical corporation Association center of the bonds Hasuda Yotsuba hospital
医療法人社団心の絆蓮田よつば病院まで1474m
Park公園  Higashiomiya to Central Park 1279m
東大宮中央公園まで1279m
Presentプレゼント  Only to customers who call or document request, Get the Kuokado of 10,000 yen for those of every month 10 pairs ☆ Double chance! "I will present the Kuokado of 2,000 yen to all customers who fill out to visit us We questionnaire with your family" (I will consider it as a one-time set-like)
お電話または資料請求頂いたお客様に限り、毎月10組の方に10,000円のクオカードをプレゼント☆ダブルチャンス!「ご家族でご来店頂きアンケートにご記入頂いたお客様全員に2,000円のクオカードをプレゼント致します」(1組様1回限りとさせて頂きます)
Location
|